Vente appartement 2 pièces, 45.00m², Annecy
- 45.00m²
- 2 pièces
- 1 chambre
Appartement Annecy 2 pièce(s) 45 m2
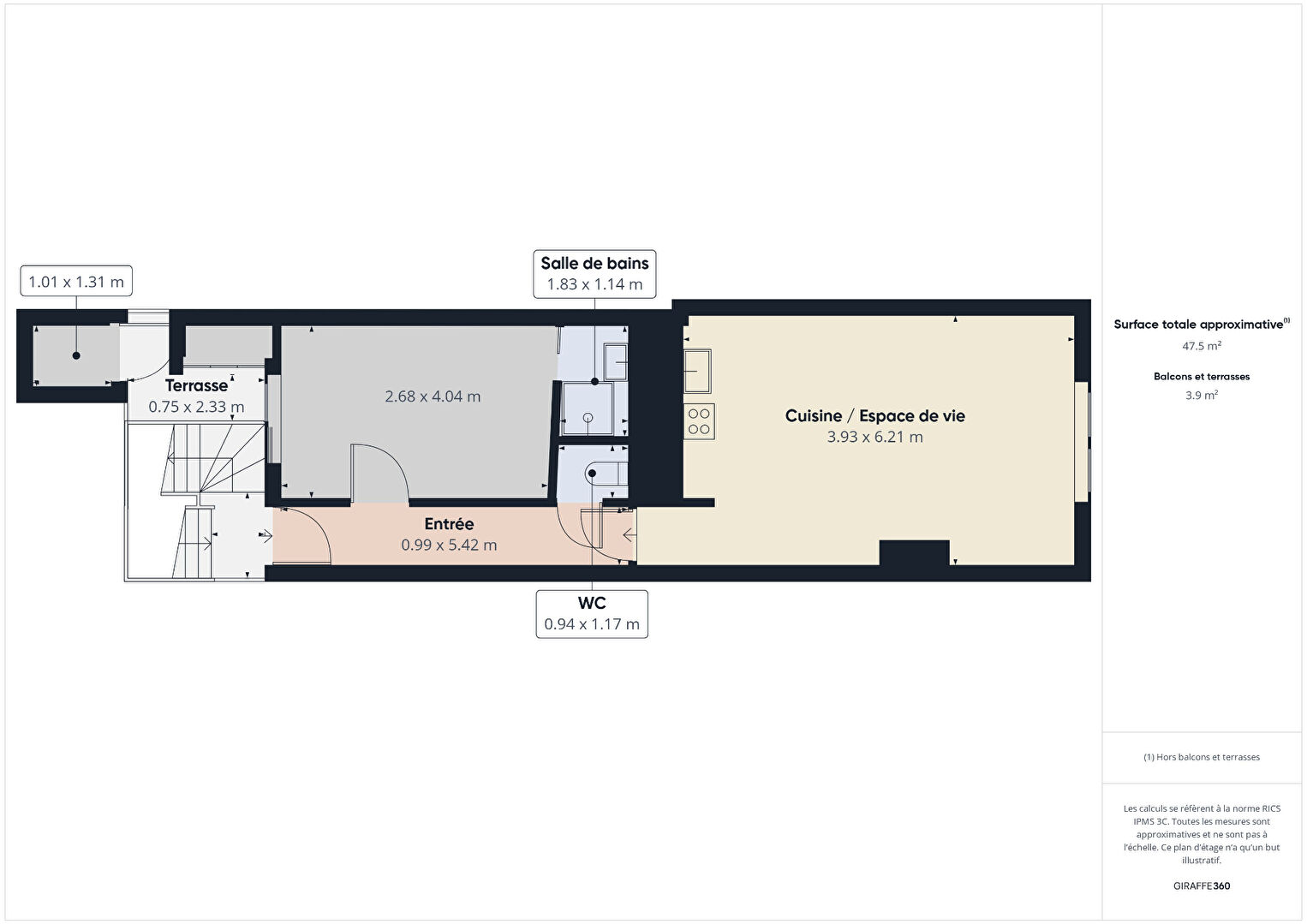
ANNECY - Avenue de Loverchy, à proximité immédiate de la Porte Sainte-Claire, cet appartement situé au deuxième étage sur trois d'un immeuble historique, comprend une entrée, pièce de vie de 25 m² avec cuisine ouverte, chambre avec salle d'eau, et WC indépendants. Sur le pallier, deux celliers vous offrent un espace de stockage supplémentaire. Les huisseries, les radiateurs et l'installation électrique ont été refaits.
Il est idéalement situé à l'entrée de la vieille ville d'Annecy et à proximité des écoles, des commerces, des lignes de bus et des accès routiers et autoroutiers A41 sur l'axe Lyon/Chambéry/Aix-les-Bains/Annecy/Genève.
Sécurisez votre achat immobilier grâce à notre Garantie Revente. Voir conditions en agence.
À noter : à compter du 1er janvier 2026, l'évolution du mode de calcul du DPE permettra à ce logement chauffé à l'électricité de bénéficier d'une étiquette énergétique plus favorable.
Cet appartement vous est proposé en exclusivité par L'Adresse. Une visite ? Contactez votre conseillère immobilier Emilie MORDACQ au 06 14 60 25 18, elle vous accompagnera dans votre projet d'achat immobilier.
Les informations sur les risques auxquels ce bien est exposé sont disponibles sur le site Géorisques : www.georisques.gouv.fr
Les informations sur les risques auxquels ce bien est exposé sont disponibles sur le site Géorisques : www.georisques.gouv.fr
Emilie MORDACQ (EI) Agent commercial - Numéro RSAC : 904488640 - ANNECY.
2608
8Montant estimé des dépenses annuelles d'énergie pour un usage standard :
Entre 920.00€ et 1280.00€ par an
-
Les essentiels
- 2 pièces
- 45.00 m²
- 1 chambre
-
Intérieur
- 2 Caves
-
Copropriété
- Bien en copropriété
- 10 lots
- Charges annuelles (ALUR) : 0.00€
- Pas de procédure en cours
-
Autres
- Etat général : Travaux à prévoir
- Etage 2
- Construit en 1800
- Immeuble de 3 étages
Vous souhaitez visiter l'Appartement
l'Adresse Annecy
74000 Annecy
Transaction :
04 50 24 45 96
Location :
04 50 64 64 13
Nos honoraires
- l'Adresse Annecy
- 3000 euros
- Michel IELO
- 822679072
- ANNECY
- FR74822679072
- CPI 7400 1201 600 001 3157
- HAUTE-SAVOIE
- GALIAN-SMABTP
- 120'000 €
- 89 rue de la boetie 75008 Paris
- ANM CONSO
Mentions légales
Les appartements similaires
Annecy (74)
Exclusif390 000 €Appartement3 pièces , 2 chambres
61.64 m²
Avec terrassegarage/box
Annecy (74)
449 000 €Appartement3 pièces , 2 chambres
70.66 m²
Avec terrasse
Chamonix-Mont-Blanc (74)
326 415 €Appartement3 pièces , 2 chambres
46.00 m²
Annecy (74)
Exclusif440 000 €Appartement5 pièces , 3 chambres
116.19 m²
Avec balcon
Annecy (74)
Exclusif1 350 000 €Appartement8 pièces , 7 chambres
196.00 m²
Annecy (74)
Exclusif170 000 €Appartement1 pièce
24.84 m²
Annecy (74)
Exclusif419 000 €Appartement4 pièces , 3 chambres
88.34 m²
Avec balcon, garage/box
Châtel (74)
130 512 €Appartement2 pièces , 1 chambre
28.70 m²
Avec balcon
- Achat appartement
- Auvergne-Rhône-Alpes
- Haute-Savoie (74)
- Annecy (74000)
- Vente appartement 2 pièces, 45.00m², Annecy











