Vente immeuble 5 pièces, 142.00m², Chartres
- 142.00m²
- 5 pièces
- 2 chambres
Immeuble Chartres 9,5% de rentabilité, secteur recherché
Votre agence L'Adresse Chartres vous propose en EXCLUSIVITÉ, en plein coeur de Chartres, un immeuble à usage mixte.
Idéalement situé à proximité immédiate de la place Billard et de son marché, cet immeuble se compose :
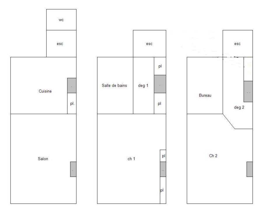
Au rez-de-chaussée :
Un local commercial d'environ 50 m², comprenant une pièce principale d'environ 40 m², complétée par une salle de soins ainsi qu'un WC.
Aux étages :
Un appartement de 92 m², loué avec le local par un seul et même locataire, réparti comme suit :
1er étage : un débarras, une cuisine avec placard et un séjour de 20 m²
2ème étage : un couloir desservant une salle d'eau et une chambre
3ème étage : un bureau ainsi qu'une seconde chambre
En sous-sol :
Une cave vient compléter ce bien.
Investissement clé en main :
L'ensemble est loué à un locataire unique pour un montant mensuel de 1 980 € hors charges, soit une rentabilité brute de 9,5 %.
La taxe foncière est prise en charge sur le local commercial.
Atout majeur :
Des travaux importants ont été réalisés en 2023 (toiture, façade et sanitaires), vous garantissant aucun gros oeuvre à prévoir.
Les informations sur les risques auxquels ce bien est exposé sont disponibles sur le site Géorisques : www.georisques.gouv.fr
1837
7Montant estimé des dépenses annuelles d'énergie pour un usage standard :
Entre 1570.00€ et 2140.00€ par an
-
Les essentiels
- 5 pièces
- 142.00 m²
- 2 chambres
-
Autres
- Immeuble de 4 étages
Vous souhaitez visiter l'Immeuble
l'Adresse Chartres
28000 Chartres
02 46 56 66 66
Nos honoraires
- l'Adresse Chartres
- 10000
- Véronique COUBELLE & Pierre CHAMOULEAU
- CHARTRES
- CHARTRES
- FR51829683499
- CPI28012017000021381
- 5 bis avenue Marcel Proust 28000 Chartres
- Gallian
- 120 000€
Mentions légales
Les immeubles similaires
- Achat immeuble
- Centre-Val de Loire
- Eure-et-Loir (28)
- Chartres (28000)
- Vente immeuble 5 pièces, 142.00m², Chartres


