Vente appartement 4 pièces, 77.00m², Antony
- 77.00m²
- 4 pièces
- 3 chambres
- 1 SDB
Appartement Antony 4 pièce(s)
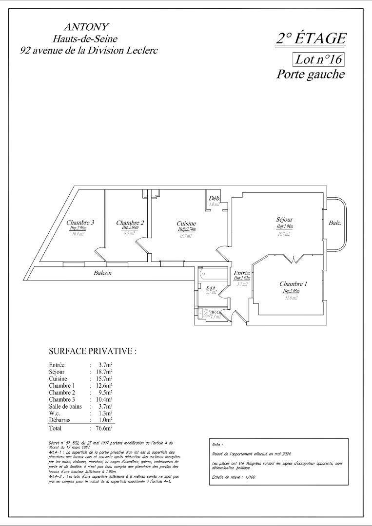
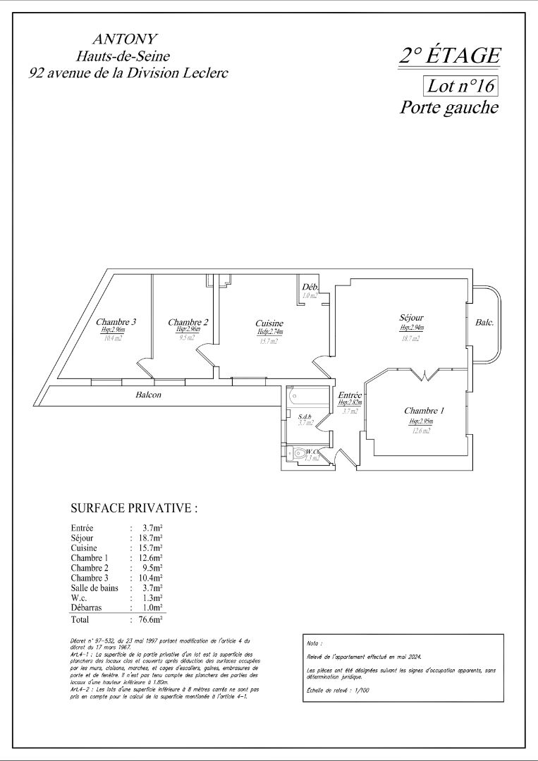
ATYPIQUE PROCHE CENTRE VILLE : A seulement 600 mètres du marché d'Antony, découvrez cet appartement 4 pièces d'environ 77 m² habitables mêlant charme de l'ancien et rénovation moderne avec prestation soignées. L'appartement comprend : Une Entrée sur dégagement, un séjour avec accès à un balcon exposé Est, une salle de bains (rénovation de 2022), un WC indépendants, une belle chambre de 16 m², une cuisine dinatoire avec accès à un second balcon filant exposé plein Sud, un cellier/buanderie et deux chambres en enfilade de 10 m² chacune. Une cave en sous-sol est vendue avec l'appartement, stationnement libre dans la cour de la résidence. Fenêtres en double vitrage PVC. Petite copropriété à taille humaine de seulement 7 lots d'habitations. Chauffage collectif inclus dans les charges. Sectorisation scolaire : école Jules FERRY et collège DESCARTES.
RER B Antony centre à 10 minutes à pieds et toutes les commodités à proximité immédiate.
Bien coup de coeur! Appelez nous pour une visite!
Les informations sur les risques auxquels ce bien est exposé sont disponibles sur le site Géorisques : www.georisques.gouv.fr
32558
58Montant estimé des dépenses annuelles d'énergie pour un usage standard :
Entre 1450.00€ et 2020.00€ par an
-
Les essentiels
- 4 pièces
- 77.00 m²
- 3 chambres
- 1 salle de bain
-
Intérieur
- Cuisine IndependanteAmenageeEquipee
- Gardien : Non
- Interphone : Non
- Digicode : Oui
- 1 Cave
-
Extérieur
- 2 Balcons
-
Copropriété
- Bien en copropriété
- 20 lots
- Charges annuelles (ALUR) : 3664.00€
- Pas de procédure en cours
-
Autres
- Etat général : Bon Etat
- Etage 2
- Construit en 1960
- Immeuble de 4 étages
Vous souhaitez visiter l'Appartement
l'Adresse - Agence Antony N20
92160 ANTONY
01 84 19 80 90
Nos honoraires
- l'Adresse - Agence Antony N20
- 3000 €
- SIMONIN Philippe
- Nanterre B 839 650 322
- CPI 9201 2018 000 035 801
- CCI de
Mentions légales
Les appartements similaires
Puteaux (92)
Exclusif349 000 €Appartement2 pièces , 1 chambre
53.00 m²
Courbevoie (92)
825 000 €Appartement6 pièces , 3 chambres
166.00 m²
Suresnes (92)
Exclusif850 000 €Appartement5 pièces , 4 chambres
103.00 m²
Avec balconterrasse
Villeneuve-la-Garenne (92)
270 000 €Appartement3 pièces , 2 chambres
60.75 m²
Avec terrasse
Puteaux (92)
395 000 €Appartement3 pièces , 2 chambres
76.00 m²
Suresnes (92)
836 000 €Appartement5 pièces
111.26 m²
Avec balcon, terrasse, garage/box
Suresnes (92)
480 000 €Appartement3 pièces , 2 chambres
79.36 m²
Avec jardin
Garches (92)
Exclusif570 000 €Appartement5 pièces , 3 chambres
117.00 m²
Avec garage/box
- Achat appartement
- Île-de-France
- Hauts-de-Seine (92)
- Antony (92160)
- Vente appartement 4 pièces, 77.00m², Antony

















