Vente appartement 3 pièces, 56.64m², Aulnay-sous-Bois
- 56.64m²
- 3 pièces
- 2 chambres
- 1 SDB
Emplacement idéal - CENTRE VILLE
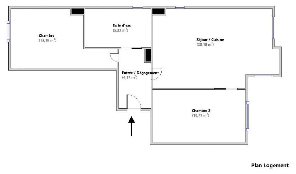
Appartement F3 de 57 m² - Le Parc, Aulnay-sous-Bois (93600)
Situé dans le secteur recherché LE PARC, au 1er étage sur 4 avec ascenseur d'une copropriété sécurisée récente (2013), cet appartement F3 de 57 m² vous séduira par son confort et sa luminosité.
Il se compose :
- Entrée
- Pièce de vie de 23 m² donnant sur une TERRASSE exposée sud-est, avec cuisine aménagée ouverte
- 2 chambres, dont une de 13 m² avec BALCON et l'autre avec accès direct à la TERRASSE
- Salle d'eau moderne avec toilettes
** Atouts de l'appartement **
- Aucun travaux à prévoir, prêt à vivre
- Emplacement idéal en plein centre-ville, à seulement 7 minutes du RER et du
- Établissements scolaires à deux pas
- Terrasse et balcon pour profiter des beaux jours
Un appartement LUMINEUX et FONCTIONNEL, idéal pour un couple ou une famille souhaitant vivre au coeur d'Aulnay-sous-Bois, avec toutes les commodités à proximité.
Idéalement situé, à découvrir sans tarder !
Contactez votre conseillère Céline HERVÉ : 06.80.46.31.82
Entrepreneur individuel immatriculé au RSAC N° 901337972 Tribunal de Commerce de Bobigny.
Les informations sur les risques auxquels ce bien est exposé sont disponibles sur le site Géorisques : www.georisques.gouv.fr
Céline HERVÉ (EI) Agent commercial - Numéro RSAC : 901337972 - Bobigny (93).
11321
21Montant estimé des dépenses annuelles d'énergie pour un usage standard :
Entre 710.00€ et 1000.00€ par an
-
Les essentiels
- 3 pièces
- 56.64 m²
- 2 chambres
- Ascenseur : Oui
- Accès PMR : Oui
- 1 salle d'eau
-
Intérieur
- Cuisine Ouverte Aménagée Equipée
- Interphone : Oui
- Digicode : Oui
-
Extérieur
- 1 Balcon
-
Copropriété
- Bien en copropriété
- 42 lots
- Charges annuelles (ALUR) : 1980.00€
- Pas de procédure en cours
-
Autres
- Etat général : Bon Etat
- Fibre : Oui
- Etage 1
- Construit en 2013
- Immeuble de 4 étages
Vous souhaitez visiter l'Appartement
l'Adresse Serris - Success immobilier
77700 SERRIS
01 64 17 87 38
Nos honoraires
- l'Adresse Serris - Success immobilier
- 235000
- Yann VETTRAINO
- 853375681
- Meaux (77)
- CPI 7701 2019 000 043 194
- Seine et Marne
Mentions légales
Les appartements similaires
Gagny (93)
130 000 €Appartement3 pièces , 2 chambres
54.00 m²
Noisy-le-Grand (93)
Exclusif169 000 €Appartement1 pièce
33.00 m²
Avec balcon
Noisy-le-Grand (93)
179 000 €Appartement1 pièce
30.00 m²
Aubervilliers (93)
Exclusif195 000 €Appartement3 pièces , 2 chambres
58.00 m²
Avec balcon
Aubervilliers (93)
126 000 €Appartement2 pièces , 1 chambre
30.45 m²
Les Lilas (93)
Exclusif320 000 €Appartement3 pièces , 2 chambres
60.08 m²
Aubervilliers (93)
Exclusif126 500 €Appartement2 pièces , 1 chambre
25.84 m²
Le Bourget (93)
188 000 €Appartement3 pièces , 2 chambres
59.70 m²
Avec balcon
- Achat appartement
- Île-de-France
- Seine-Saint-Denis (93)
- Aulnay-sous-Bois (93600)
- Vente appartement 3 pièces, 56.64m², Aulnay-sous-Bois








