Vente appartement 2 pièces, 54.00m², Bastia
- 54.00m²
- 2 pièces
- 1 chambre
- 1 SDB
BASTIA : Appartement 2/3 pièces
Dans un secteur recherché pour la location, à proximité immédiate du centre hospitalier et à quelques minutes du centre-ville de Bastia.
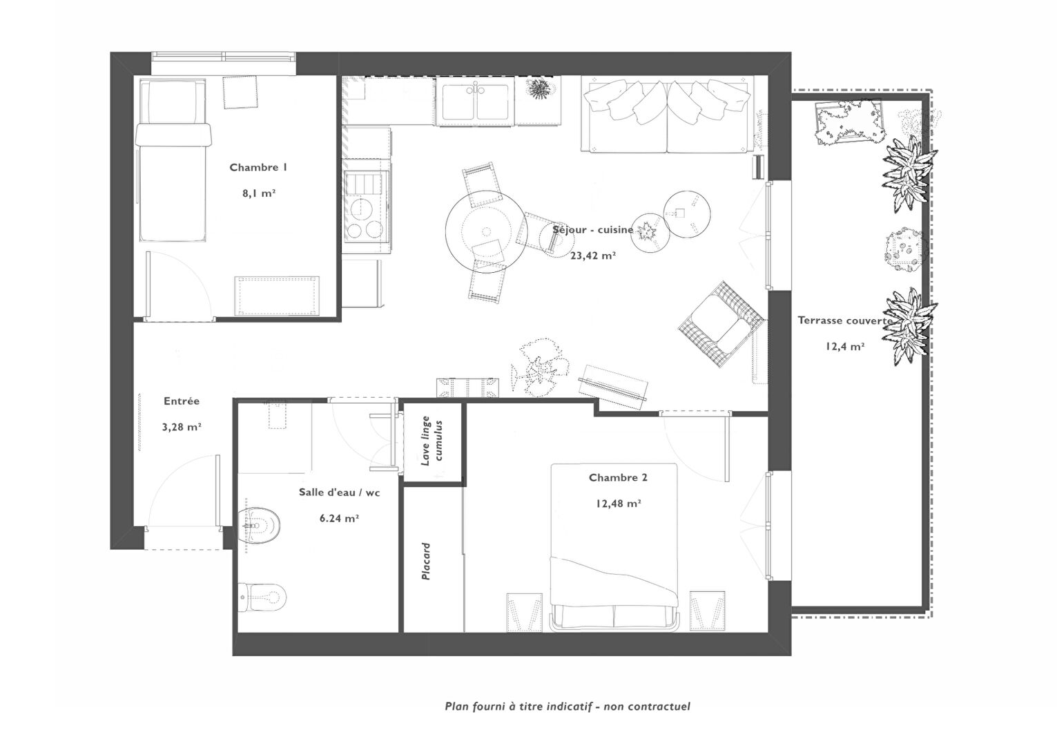
Dans une résidence récente de 2013 avec ascenseur : appartement 3 pièces aux prestations de qualité :
Il se compose d'un séjour avec cuisine semi-équipée ouvrant sur une terrasse orientée sud-ouest, d'une chambre de plus de 12 m² donnant sur l'extérieur, d'un bureau de 8 m² pouvant servir de seconde chambre, et d'une salle d'eau avec WC intégrant un espace pour le lave-linge.
Atouts : pas de travaux, prestations de qualité (climatisation réversible, volets roulants électriques, fibre optique), place de parking privative, parties communes bien entretenues, secteur à forte demande locative liée à la proximité des établissements de santé, commerces, écoles et transports.
Visite virtuelle sur demande.
Les informations sur les risques auxquels ce bien est exposé sont disponibles sur le site Géorisques : www.georisques.gouv.fr
491
1Montant estimé des dépenses annuelles d'énergie pour un usage standard :
Entre 290.00€ et 450.00€ par an
-
Les essentiels
- 2 pièces
- 54.00 m²
- 1 chambre
- Ascenseur : Oui
- 1 salle d'eau
-
Intérieur
- Cuisine Ouverte
- Gardien : Non
- Interphone : Oui
- Digicode : Oui
- Visiophone : Oui
-
Extérieur
- 1 Parking
-
Copropriété
- Bien en copropriété
- 106 lots
- Charges annuelles (ALUR) : 906.00€
- Pas de procédure en cours
-
Autres
- Etat général : Bon Etat
- Fibre : Oui
- Etage 1
- Construit en 2013
- Immeuble de 6 étages
Vous souhaitez visiter l'Appartement
l'Adresse BASTIA - LUCCIANA
20290 LUCCIANA
04 95 57 04 33
Nos honoraires
- l'Adresse BASTIA - LUCCIANA
- 10 000 €
- CARLI Vannina
- Bastia 887 609 915
- CPI 2002 2020 000 000 010
- CCI de Corse
Mentions légales
Les appartements similaires
Calvi (2B)
408 000 €Appartement4 pièces , 3 chambres
80.00 m²
Calvi (2B)
248 000 €Appartement2 pièces , 1 chambre
43.00 m²
Bastia (2B)
Exclusif155 000 €Appartement3 pièces , 2 chambres
54.00 m²
Avec terrasse
Moltifao (2B)
Exclusif50 000 €Appartement3 pièces , 2 chambres
38.00 m²
Calvi (2B)
272 625 €Appartement2 pièces , 1 chambre
56.00 m²
Bastia (2B)
Exclusif105 000 €Appartement2 pièces , 1 chambre
44.00 m²
Avec balcon
Borgo (2B)
Exclusif285 000 €Appartement3 pièces , 2 chambres
79.00 m²
Avec balconterrasse
- Achat appartement
- Corse
- Haute-Corse (2B)
- Bastia (20600)
- Vente appartement 2 pièces, 54.00m², Bastia










