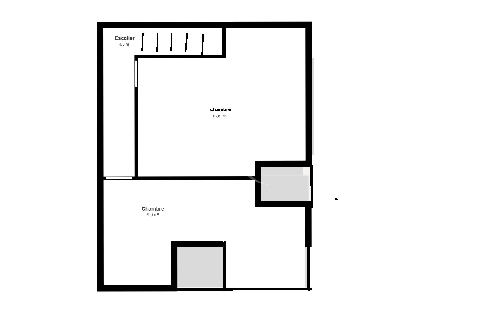
Vente appartement 4 pièces, 36.71m², Bretignolles-sur-Mer
- 36.71m²
- 4 pièces
- 3 chambres
- 1 SDB
Appartement Bretignolles Sur Mer 4 pièce(s) 36.71 m2
BRETIGNOLLES SUR MER, appartement avec loggia idéalement situé entre mer et commerce, situé au 1er étage d'une résidence bien entretenue, entrée sur pièce principale avec kitchenette, salle de bain, une chambre ou salon, loggia sans vis à vis. A l'étage 2 chambres sous combles. 2 places de parking privative, résidence avec piscine et espace vert au calme. 36.71 m2 loi carrez et environ 50 M2 au sol.
Copropriété de 84 lots dont 42 d'habitation, charge annuelle d'environ 800 €.
DPE : D Réf : 2133
Consommation énergique : 219.9 kWh/m²/an
Emission de gaz à effet de serre : 8.4 Kg CO2/m²/an
Honoraires charge vendeur.
Montant estimé des dépenses annuelles d'énergie pour un usage standard : entre 640 € et
880 € par an. Prix moyens des énergies indexés sur l'année 2021 (abonnements compris)
Les informations sur les risques auxquels ce bien est exposé sont disponibles sur le site
géorisques : www.georisques.gouv.fr
Les informations sur les risques auxquels ce bien est exposé sont disponibles sur le site Géorisques : www.georisques.gouv.fr
2208
8Montant estimé des dépenses annuelles d'énergie pour un usage standard :
Entre 640.00€ et 880.00€ par an
-
Les essentiels
- 4 pièces
- 36.71 m²
- 3 chambres
- 1 salle d'eau
-
Intérieur
- Cuisine Kitchenet
- Gardien : Non
- Interphone : Non
-
Extérieur
- 1 Balcon
- 2 Parkings
-
Copropriété
- Bien en copropriété
- 84 lots
- Charges annuelles (ALUR) : 800.00€
- Pas de procédure en cours
-
Autres
- Etat général : Bon Etat
- Etage 1
- Construit en 1991
- Immeuble de 1 étage
Vous souhaitez visiter l'Appartement
l'Adresse - Brétignolles sur mer
85470 BRETIGNOLLES SUR MER
02 51 90 96 96
Nos honoraires
- l'Adresse - Brétignolles sur mer
- 2668 €
- BOUVIER Sandrine
- LA ROCHE SUR YON 839887387
- 85012018000034449
- La CCI de la VENDÉE
- LA MEDIATION DU COMMERCE COOPERATIF ET ASSOCIE 77 rue de Lourmel 75015 PARIS www.mcca-mediation.fr
Mentions légales
Les appartements similaires
Saint-Gilles-Croix-de-Vie (85)
199 900 €Appartement2 pièces , 1 chambre
40.00 m²
Avec terrassegarage/box
Les Sables-d'Olonne (85)
Exclusif198 000 €Appartement3 pièces , 2 chambres
65.00 m²
Avec balcon
Saint-Hilaire-de-Riez (85)
528 900 €Appartement4 pièces , 3 chambres
96.00 m²
Avec jardin, garage/box
Notre-Dame-de-Monts (85)
159 000 €Appartement1 pièce
39.20 m²
Notre-Dame-de-Monts (85)
172 000 €Appartement1 pièce
39.20 m²
Saint-Jean-de-Monts (85)
154 400 €Appartement2 pièces , 1 chambre
33.88 m²
Avec balcon
Saint-Hilaire-de-Riez (85)
88 500 €Appartement1 pièce
22.24 m²
Avec balcon
Les Sables-d'Olonne (85)
275 600 €Appartement3 pièces , 2 chambres
66.00 m²
- Achat appartement
- Pays de la Loire
- Vendée (85)
- Bretignolles-sur-Mer (85470)
- Vente appartement 4 pièces, 36.71m², Bretignolles-sur-Mer










