Vente appartement 3 pièces, 59.77m², Charenton-le-Pont
- 59.77m²
- 3 pièces
- 2 chambres
- 1 SDB
Charme de l'ancien et Vue Dégagée - T3 Lumineux aux Portes de Paris : Charenton Le Pont
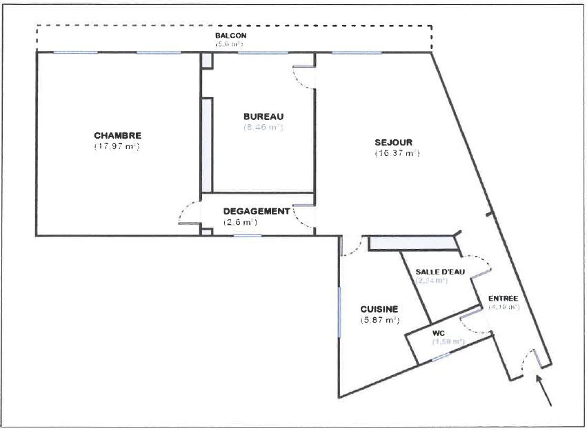
Quai des Carrières, au sein d'un bel immeuble de caractère des années 1930, L'adresse Wattignies vous présente en exclusivité cet élégant 3 pièces avec balcon filant, niché au 4ème étage. Ce bien séduit immédiatement par son cachet authentique, mariant harmonieusement confort moderne et éléments d'époque.
Espace de vie : Un séjour spacieux de plus de 16 m² ainsi qu'une chambre généreuse de près de18 m² ouvrant sur un large balcon filant, idéal pour profiter d'un extérieur avec une vue dégagée.
Fonctionnalité : Une cuisine indépendante dînatoire entièrement équipée, une salle d'eau moderne avec double vasque et un bureau de 8,5 m² pouvant faire office de chambre d'enfant ou de télétravail
Atouts charme : Parquet d'origine en chêne massif, moulures délicates au plafond et cheminées décoratives.
Pour toute information ou pour organiser une visite, contactez Alain au 07 68 50 53 54.
Découvrez ce bien dès maintenant : Une visite virtuelle est disponible
Visites sur place : Créneaux dédiés les mardis et samedis après-midi.
Les informations sur les risques auxquels ce bien est exposé sont disponibles sur le site Géorisques : www.georisques.gouv.fr
27210
10Montant estimé des dépenses annuelles d'énergie pour un usage standard :
Entre 1520.00€ et 2070.00€ par an
-
Les essentiels
- 3 pièces
- 59.77 m²
- 2 chambres
- 1 salle d'eau
-
Intérieur
- Cuisine IndependanteEquipee
- Gardien : Non
- Interphone : Oui
- 1 Cave
-
Extérieur
- 1 Balcon
-
Copropriété
- Bien en copropriété
- 51 lots
- Charges annuelles (ALUR) : 1068.00€
- Pas de procédure en cours
-
Autres
- Etat général : Bon Etat
- Fibre : Oui
- Etage 4
- Construit en 1930
- Immeuble de 5 étages
Vous souhaitez visiter l'Appartement
l'Adresse Wattignies Paris 12
75012 PARIS
Transaction :
01 43 41 46 63
Location :
01 43 41 47 53
Nos honoraires
- l'Adresse Wattignies Paris 12
- 7 630 €
- ERAY Stéphane
- PARIS
- CPI75012016000006754
- CCI de PARIS
- GALIAN
- 120 000 €
- GALIAN 89, rue la Boétie 75008 PARIS
- Agence Nationale de Médiation 2, rue de Colmar 94300 VINCENNES Tél. : 01 46 81 20 95
Mentions légales
Les appartements similaires
Vitry-sur-Seine (94)
185 000 €Appartement2 pièces , 1 chambre
48.00 m²
Bry-sur-Marne (94)
569 000 €Appartement5 pièces , 4 chambres
95.80 m²
Avec balcon
Nogent-sur-Marne (94)
Exclusif347 000 €Appartement2 pièces , 1 chambre
42.77 m²
Choisy-le-Roi (94)
Exclusif212 000 €Appartement3 pièces , 2 chambres
50.00 m²
Limeil-Brévannes (94)
Exclusif179 000 €Appartement2 pièces , 1 chambre
51.00 m²
Villejuif (94)
186 000 €Appartement1 pièce
29.00 m²
Le Perreux-sur-Marne (94)
Exclusif244 000 €Appartement3 pièces , 2 chambres
52.00 m²
Le Perreux-sur-Marne (94)
290 000 €Appartement3 pièces , 1 chambre
62.00 m²
Avec balconterrasse
- Achat appartement
- Île-de-France
- Val-de-Marne (94)
- Charenton-le-Pont (94220)
- Vente appartement 3 pièces, 59.77m², Charenton-le-Pont








