Vente appartement 1 pièce, 43.99m², Chilly-Mazarin
- 43.99m²
- 1 pièce
- 1 chambre
Appartement CHILLY-MAZARIN 2 pièces 44 m²
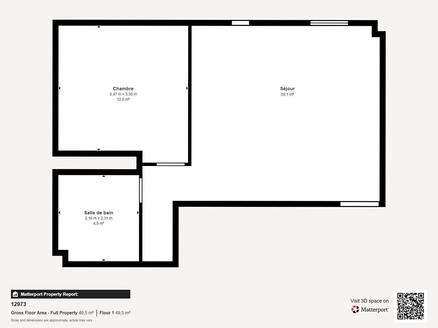
l'Adresse CHILLY-MAZARIN vous propose à la vente, au sein d'une petite copropriété calme et recherchée, un appartement de type F2, alliant confort, luminosité et fonctionnalité.
Dès l'entrée, vous serez séduits par un séjour particulièrement lumineux donnant sur un balcon et offrant une belle qualité de lumière tout au long de la journée. La cuisine profite de cette luminosité naturelle et complète harmonieusement l'espace de vie.
L'espace nuit se compose d'une chambre, d'une salle de bains et de toilettes séparées, offrant une distribution agréable et fonctionnelle.
Ce bien est complété par une place de parking extérieur dans un parking sécurisé
Un appartement idéal pour une résidence principale ou un investissement, séduisant par son calme, sa luminosité et sa place de parking recherchée !
Les informations sur les risques auxquels ce bien est exposé sont disponibles sur le site Géorisques : www.georisques.gouv.fr
1955
5-
Les essentiels
- 1 pièce
- 43.99 m²
- 1 chambre
-
Copropriété
- Bien en copropriété
- 15 lots
- Charges annuelles (ALUR) : 1222.92€
- Pas de procédure en cours
-
Autres
- Etage 1
- Construit en 2008
- Immeuble de 2 étages
Vous souhaitez visiter l'Appartement
l'Adresse CHILLY-MAZARIN - Agence de l'Avenir
91380 CHILLY-MAZARIN
Transaction :
01 69 09 09 85
Location :
01 69 09 09 85
Nos honoraires
- l'Adresse CHILLY-MAZARIN - Agence de l'Avenir
- 37 000 euros
- CLAVEL Denis
- d'EVRY n°421 986 795
- d'EVRY-COURCOURONNES
- FR11 421 986 795
- CPI 9101 2016 000 010 880
- CCI de L'ESSONNE
- GALIAN
- 200 000 euros
- 89 Rue La Boétie 75008 PARIS
- Médiateur du Commerce Coopératif & Associé - FCA 77 Rue de Lourmel 75015 PARIS www.mcca-mediation.fr
Mentions légales
Les appartements similaires
Mennecy (91)
Exclusif175 000 €Appartement2 pièces , 1 chambre
41.59 m²
Guigneville-sur-Essonne (91)
Exclusif79 500 €Appartement1 pièce
27.07 m²
Massy (91)
Exclusif237 500 €Appartement4 pièces , 3 chambres
70.81 m²
Avec balcon
Orsay (91)
Exclusif488 800 €Appartement5 pièces , 3 chambres
111.40 m²
Avec balcon
Lardy (91)
229 820 €Appartement4 pièces , 3 chambres
100.00 m²
Avec balcon
Corbeil-Essonnes (91)
Exclusif179 000 €Appartement3 pièces , 2 chambres
66.69 m²
Avec balcon
Bures-sur-Yvette (91)
Exclusif299 520 €Appartement4 pièces , 3 chambres
75.46 m²
Avec balcongarage/box
Gif-sur-Yvette (91)
Exclusif312 000 €Appartement5 pièces , 3 chambres
95.42 m²
Avec balcon
- Achat appartement
- Île-de-France
- Essonne (91)
- Chilly-Mazarin (91380)
- Vente appartement 1 pièce, 43.99m², Chilly-Mazarin









