Réf. de l'annonce : 13568139 / 2024-328
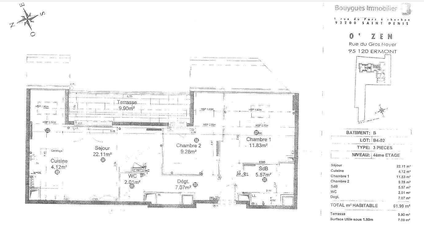
Vente appartement 3 pièces, 62.61m², Ermont
- 62.61m²
- 3 pièces
- 2 chambres
- 1 SDB
Appartement Ermont 3 pièces 61.99 m2
VENDU OCCUPÉ
Charmant T3 comprenant entrée, séjour, cuisine américaine, deux chambres, salle d'eau, WC séparés et grand balcon sans vis-à-vis.
Logement loué depuis le 1er décembre 2022 à une locataire à jour de ses loyers sans aucun retard.
Loyer : 924,19€
Provisions pour charges : 100€
Logement en bon état répondant aux normes RT 2012 et BBC.
Les informations sur les risques auxquels ce bien est exposé sont disponibles sur le site Géorisques : www.georisques.gouv.fr
8315
15-
Les essentiels
- 3 pièces
- 62.61 m²
- 2 chambres
- Ascenseur : Oui
- 1 salle d'eau
-
Intérieur
- Cuisine Américaine Amenagée
-
Extérieur
- 1 Balcon
- 2 Parkings
-
Copropriété
- Bien en copropriété
- 122 lots
- Charges annuelles (ALUR) : 1200.00€
- Pas de procédure en cours
-
Autres
- Fibre : Oui
- Dernier étage : Oui
- Etage 4
- Construit en 2014
- Immeuble de 4 étages
Vous souhaitez visiter l'Appartement
l'Adresse STEFA
95120 ERMONT
01 34 44 11 12
Nos honoraires
- l'Adresse STEFA
- 76 000 €
- RAYMOND Fabrice
- PONTOISE B 408 307 114
- CPI 95 01 2018 000 023 304
- CCI de Paris Ile de France
- Nom du médiateur : 0000-00-00Médiateur du Commerce Coopératif et Associé Adresse postale du médiateur : FCA - 77, rue de Lourmel - 75015 PARIS Site internet du médiateur : www.mcca-mediation.fr
Mentions légales
Nous tenons à vous informer que l'annonce immobilière que vous avez consultée n'est malheureusement plus disponible pour les visites.
Nous comprenons que cela puisse être décevant, mais nous vous encourageons à continuer à explorer nos autres annonces disponibles. Notre équipe est à votre disposition pour vous aider à trouver la propriété qui correspond à vos besoins et à votre budget.
N'hésitez pas à nous contacter pour toute question ou pour planifier des visites pour d'autres biens. Nous sommes déterminés à vous accompagner dans votre recherche et à vous aider à trouver votre nouveau chez-vous.
Merci pour votre compréhension et votre intérêt.
Les appartements similaires
Cergy (95)
Exclusif269 900 €Appartement4 pièces , 3 chambres
89.40 m²
Avec terrasse
Pontoise (95)
123 500 €Appartement2 pièces , 1 chambre
42.00 m²
Saint-Gratien (95)
Exclusif219 950 €Appartement4 pièces , 3 chambres
81.71 m²
Avec balcon
Cergy (95)
249 900 €Appartement4 pièces , 3 chambres
81.57 m²
Avec jardin
Saint-Ouen-l'Aumône (95)
Exclusif178 500 €Appartement2 pièces , 1 chambre
53.67 m²
Cergy (95)
Exclusif265 000 €Appartement4 pièces , 3 chambres
75.70 m²
Avec balcon
Jouy-le-Moutier (95)
169 900 €Appartement3 pièces , 2 chambres
58.00 m²
Cergy (95)
Exclusif229 000 €Appartement3 pièces , 2 chambres
63.00 m²
- Achat appartement
- Île-de-France
- Val-d'Oise (95)
- Ermont (95120)
- Vente appartement 3 pièces, 62.61m², Ermont










