Revenir aux résultats
Réf. de l'annonce : 10450746 / 6915
Exclusif
Vente appartement 2 pièces, 46.44m², Massy
Charges : 108 € | Honoraires à la charge du vendeur | Taxe foncière : 970,00€
245 000 €
- 46.44m²
- 2 pièces
- 1 chambre
- 1 SDB
MASSY ATLANTIS 2P 46,44m²
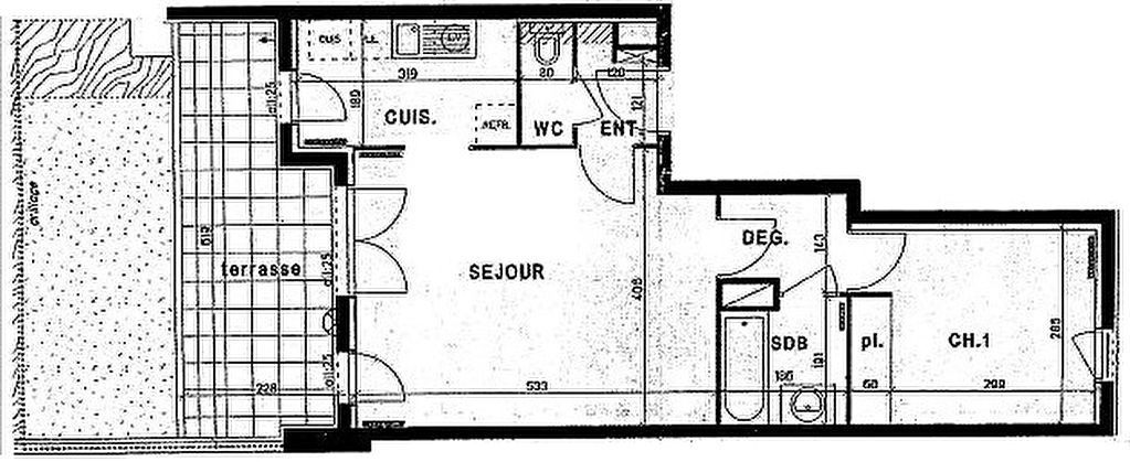
A VENDRE MANDAT EXCEL'ADRESSEMASSY ATLANTIS Dans Résidence de 2010 Appartement 2 pièces de 46 m² Calme et Lumineux en Rdj comprenant : Entrée, séjour sur terrasse et jardin de 26 m², cuisine américaine équipée, chambre, Sdb et WC indépendant.
Très bon état, habitable de suite, emplacement de parking en sous-sol.
Proche de toutes commodités.
Idéal premier achat!!!
Les informations sur les risques auxquels ce bien est exposé sont disponibles sur le site Géorisques : www.georisques.gouv.fr
Lucie HENO (EI) Agent commercial - Numéro RSAC : 528 190 408 - EVRY.
Bilan energetique


Diagnostic réalisé le : 30/09/2025
Caractéristiques Appartement
-
Les essentiels
- 2 pièces
- 46.44 m²
- 1 chambre
- Ascenseur : Oui
- 1 salle de bain
-
Intérieur
- Cuisine Américaine Equipée
- Interphone : Oui
-
Extérieur
- Jardin 0.00 m²
- 1 Parking
-
Copropriété
- Bien en copropriété
- 420 lots
- Charges annuelles (ALUR) : 2000.00€
- Pas de procédure en cours
-
Autres
- Etat général : Bon Etat
- Fibre : Oui
- Rez de chaussée : Oui
- Construit en 2010
- Immeuble de 5 étages
Vous souhaitez visiter l'Appartement
Prenez rendez-vous avec l'agence.
Agence immobilière
l'Adresse VILMORIN IMMOBILIER
l'Adresse VILMORIN IMMOBILIER
28 Avenue Raymond Aron
91300 MASSY
Transaction :
01 69 53 10 10
Location :
01 69 53 10 10
Nos honoraires
Mentions légales
91300 MASSY
Transaction :
01 69 53 10 10
Location :
01 69 53 10 10
Nos honoraires
Mentions légales
- l'Adresse VILMORIN IMMOBILIER
- 24 750 €
- GENIN Marc
- EVRY 487 566 564
- EVRY
- CPI 9101 2016 000 008 426
- CCI ESSONNE
- FNAIM
- 340000
- 89 Rue de la Boétie Paris 75008
- FCA 77 RUE DE LOURMEL 75015 PARIS SITE : WWW.COMMERCE-ASSOCIE.FR
Mentions légales
Les appartements similaires
Dourdan (91)
150 500 €Appartement3 pièces , 1 chambre
50.31 m²
Dourdan (91)
204 900 €Appartement3 pièces , 2 chambres
54.30 m²
Avec balconMennecy (91) Exclusif
85 000 €Appartement1 pièce
25.70 m²
Chilly-Mazarin (91)
179 900 €Appartement3 pièces , 2 chambres
64.74 m²
Avec balcongarage/boxMorsang-sur-Orge (91) Exclusif
141 900 €Appartement3 pièces , 2 chambres
54.03 m²
Avec balconÉtampes (91)
187 580 €Appartement3 pièces , 2 chambres
46.85 m²
Massy (91) Exclusif
195 175 €Appartement2 pièces , 1 chambre
47.74 m²
Avec balconBondoufle (91)
170 200 €Appartement2 pièces , 1 chambre
38.00 m²
- Achat appartement
- Île-de-France
- Essonne (91)
- Massy (91300)
- Vente appartement 2 pièces, 46.44m², Massy