Revenir aux résultats
Réf. de l'annonce : 14204982 / 6915
Exclusif
Vente appartement 2 pièces, 46.60m², Massy
Honoraires à la charge du vendeur | Taxe foncière : 970,00€
245 000 €
- 46.60m²
- 2 pièces
- 1 chambre
- 1 SDB
MASSY ATLANTIS 2P 46,44m²
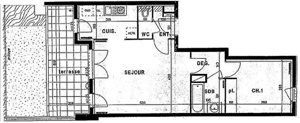
A VENDRE MANDAT EXCEL'ADRESSEMASSY ATLANTIS Dans Résidence de 2010 Appartement 2 pièces de 46 m² Calme et Lumineux en Rdj comprenant : Entrée, séjour sur terrasse et jardin de 26 m², cuisine américaine équipée, chambre, Sdb et WC indépendant.
Très bon état, habitable de suite, emplacement de parking en sous-sol.
Proche de toutes commodités.
Idéal premier achat!!!
Les informations sur les risques auxquels ce bien est exposé sont disponibles sur le site Géorisques : www.georisques.gouv.fr
Bilan energetique
15610
10
Diagnostic réalisé le : 07/10/2025
Montant estimé des dépenses annuelles d'énergie pour un usage standard :
Entre 540.00€ et 780.00€ par an
Montant estimé des dépenses annuelles d'énergie pour un usage standard :
Entre 540.00€ et 780.00€ par an
Caractéristiques Appartement
-
Les essentiels
- 2 pièces
- 46.60 m²
- 1 chambre
- Ascenseur : Oui
- 1 salle de bain
-
Intérieur
- Cuisine Américaine Equipée
- Interphone : Oui
-
Extérieur
- Jardin 0.00 m²
- 1 Parking
-
Copropriété
- Bien en copropriété
- 420 lots
- Charges annuelles (ALUR) : 2000.00€
- Pas de procédure en cours
-
Autres
- Etat général : Bon Etat
- Fibre : Oui
- Rez de chaussée : Oui
- Construit en 2010
- Immeuble de 5 étages
Vous souhaitez visiter l'Appartement
Prenez rendez-vous avec l'agence.
Agence immobilière
l'Adresse VILMORIN IMMOBILIER
l'Adresse VILMORIN IMMOBILIER
28 Avenue Raymond Aron
91300 MASSY
Transaction :
01 69 53 10 10
Location :
01 69 53 10 10
Nos honoraires
Mentions légales
91300 MASSY
Transaction :
01 69 53 10 10
Location :
01 69 53 10 10
Nos honoraires
Mentions légales
- l'Adresse VILMORIN IMMOBILIER
- 24 750 €
- GENIN Marc
- EVRY 487 566 564
- EVRY
- CPI 9101 2016 000 008 426
- CCI ESSONNE
- FNAIM
- 340000
- 89 Rue de la Boétie Paris 75008
- FCA 77 RUE DE LOURMEL 75015 PARIS SITE : WWW.COMMERCE-ASSOCIE.FR
Mentions légales
Les appartements similaires
Gif-sur-Yvette (91)
268 000 €Appartement3 pièces , 2 chambres
68.54 m²
Avec balcon
Chilly-Mazarin (91)
Exclusif185 000 €Appartement3 pièces , 2 chambres
72.00 m²
Avec balcon
Étampes (91)
Exclusif139 275 €Appartement3 pièces , 2 chambres
58.54 m²
Yerres (91)
229 000 €Appartement5 pièces , 3 chambres
86.00 m²
Avec balcon
Étampes (91)
199 260 €Appartement5 pièces , 3 chambres
94.00 m²
Avec jardin
Saint-Pierre-du-Perray (91)
Exclusif192 000 €Appartement2 pièces , 1 chambre
40.60 m²
Athis-Mons (91)
Exclusif209 500 €Appartement3 pièces , 2 chambres
65.00 m²
Avec balcon
Quincy-sous-Sénart (91)
Exclusif265 000 €Appartement3 pièces , 2 chambres
59.55 m²
Avec balcon
- Achat appartement
- Île-de-France
- Essonne (91)
- Massy (91300)
- Vente appartement 2 pièces, 46.60m², Massy





