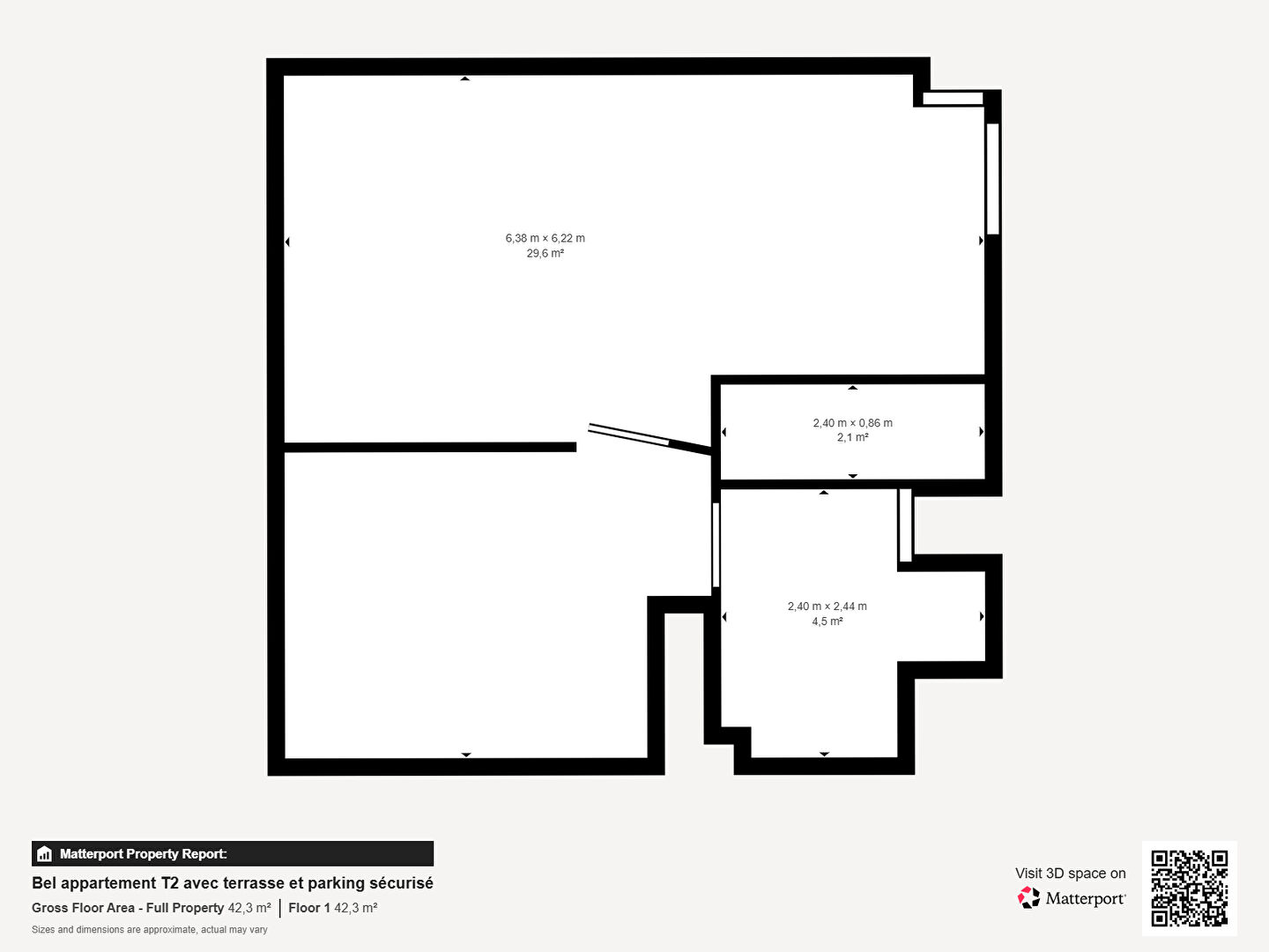
Vente appartement 2 pièces, 39.24m², Narbonne
- 39.24m²
- 2 pièces
- 1 chambre
- 1 SDB
NARBONNE (Réveillon) Bel appartement T2 avec terrasse et parking sécurisé
En exclusivité chez L'Adresse, nous vous proposons...
Dans un environnement calme et résidentiel du quartier de Réveillon, un charmant appartement T2 au 2ème étage d'une résidence sécurisée (sans ascenseur), idéal aussi bien pour une résidence principale qu'un investissement locatif serein.
Cosy et parfaitement entretenu, il se compose d'un espace de vie agréable et fonctionnel avec cuisine meublée, d'une chambre confortable et d'un aménagement optimisé permettant une installation immédiate sans travaux.
Son atout majeur : une agréable terrasse, parfaite pour profiter des beaux jours en toute tranquillité.
Situé au sein d'une résidence sécurisée, ce bien bénéficie de charges annuelles maîtrisées ainsi que d'une taxe foncière de 620 €, un vrai plus pour la gestion de votre budget.
Côté stationnement, vous profiterez parking privatif au sein de la résidence, un confort rare et très apprécié au quotidien comme pour la location.
Disponibilité :
* Le logement sera libre de jouissance dès le mois d'Avril suite au départ des locataires actuels*
Venez vite le découvrir avant de laisser passer votre chance.
Les informations sur les risques auxquels ce bien est exposé sont disponibles sur le site Géorisques : www.georisques.gouv.fr
1003
3Montant estimé des dépenses annuelles d'énergie pour un usage standard :
Entre 325.00€ et 439.00€ par an
-
Les essentiels
- 2 pièces
- 39.24 m²
- 1 chambre
- 1 salle d'eau
-
Intérieur
- Cuisine Américaine Amenagée Equipée
- Gardien : Non
- Interphone : Oui
-
Extérieur
- 1 Parking
-
Copropriété
- Bien en copropriété
- 249 lots
- Charges annuelles (ALUR) : 697.00€
- Pas de procédure en cours
-
Autres
- Etat général : Excellent
- Fibre : Oui
- Etage 2
- Immeuble de 2 étages
Vous souhaitez visiter l'Appartement
l'Adresse Narbonne
11100 NARBONNE
04 68 75 09 90
Nos honoraires
- l'Adresse Narbonne
- 1 500 €
- ACQUIER Philippe
- Narbonne B 838 604 759
- CPI 11022018000027849
- CCI de NARBONNE
Mentions légales
Les appartements similaires
Carcassonne (11)
121 000 €Appartement7 pièces , 3 chambres
129.00 m²
Coursan (11)
Exclusif149 990 €Appartement4 pièces , 2 chambres
129.74 m²
Narbonne (11)
152 900 €Appartement2 pièces , 1 chambre
41.24 m²
Avec terrasse
Carcassonne (11)
139 900 €Appartement4 pièces , 3 chambres
138.00 m²
Narbonne (11)
218 900 €Appartement3 pièces , 2 chambres
61.89 m²
Avec terrasse
Saint-Pierre-la-Mer (11)
Exclusif89 990 €Appartement2 pièces , 1 chambre
28.50 m²
Avec balconterrasse
Castelnaudary (11)
139 500 €Appartement2 pièces , 1 chambre
39.75 m²
Narbonne (11)
146 000 €Appartement2 pièces , 1 chambre
40.30 m²
Avec jardin, terrasse
- Achat appartement
- Occitanie
- Aude (11)
- Narbonne (11100)
- Vente appartement 2 pièces, 39.24m², Narbonne









