Réf. de l'annonce : 13919250 / 5046
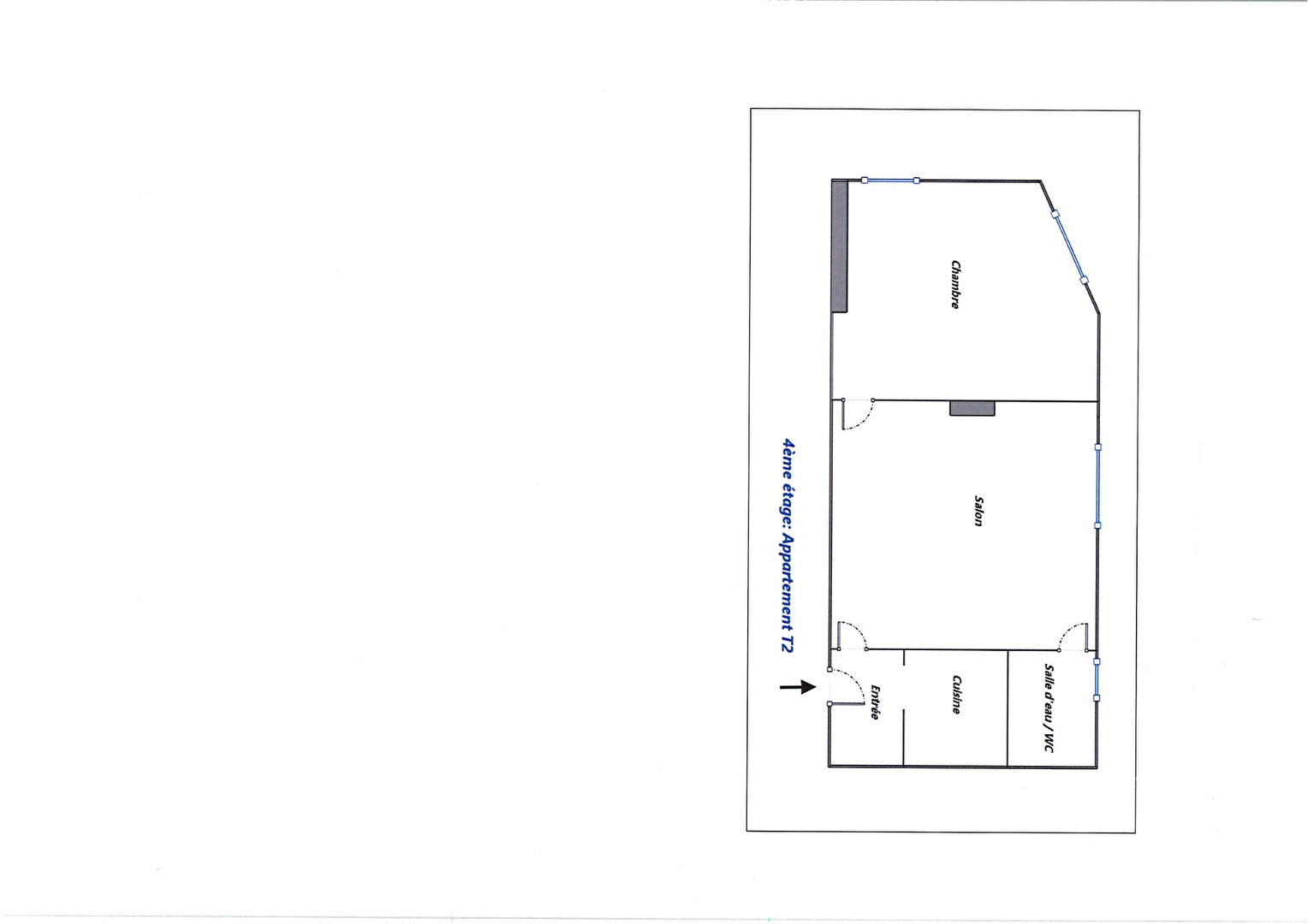
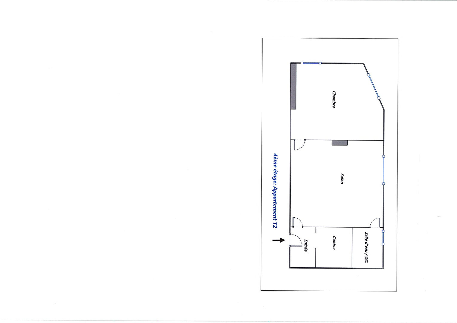
Vente appartement 2 pièces, 30.00m², Paris 11
- 30.00m²
- 2 pièces
- 1 chambre
- 1 SDB
Investissement ou futur cocon -Idéalement situé à Paris 11ème
Charmant deux-pièces de caractère / 30 m² / 4ème étage sans ascenseur
Au sein d'un bel immeuble ancien parfaitement entretenu, découvrez ce superbe deux-pièces de 30 m², niché au 4ème étage (sur 5) et offrant un cadre de vie à la fois authentique et contemporain. Baigné de lumière et idéalement agencé, cet appartement séduit par son charme de l'ancien qui allie confort moderne et une optimisation intelligente de chaque mètre carré.
Il se compose d'un séjour convivial et lumineux, d'une chambre d'angle chaleureuse, d'un coin cuisine fonctionnel (avec possibilité d'ouverture sur le séjour) et d'une salle d'eau avec WC broyeur. En excellent état général, ce bien ne nécessite aucun travaux. Il est actuellement loué jusqu'au 31 juillet 2026 (loyer hors charges : 889,06 € + 45 € de charges). Un congé pour vente a d'ores et déjà été délivré, vous permettant d'anticiper sereinement votre projet, que vous envisagiez une résidence principale pleine de cachet ou un investissement locatif sûr et rentable.
Atouts :
-Immeuble ancien, parfaitement entretenu
-Appartement lumineux
-Agencement sans perte d'espace
-Secteur recherché, central et vivant
-Transports, commerces et restaurants à deux pas
Un bien rare sur le marché, alliant charme, fonctionnalité et emplacement privilégié. Idéal pour un premier achat ou un placement patrimonial de qualité.
Les informations sur les risques auxquels ce bien est exposé sont disponibles sur le site Géorisques : www.georisques.gouv.fr
34911
11Montant estimé des dépenses annuelles d'énergie pour un usage standard :
Entre 860.00€ et 1190.00€ par an
-
Les essentiels
- 2 pièces
- 30.00 m²
- 1 chambre
- 1 salle d'eau
-
Intérieur
- Cuisine Independante
- Interphone : Oui
- Digicode : Oui
- 1 Cave
-
Copropriété
- Bien en copropriété
- 46 lots
- Charges annuelles (ALUR) : 995.00€
- Pas de procédure en cours
-
Autres
- Fibre : Oui
- Etage 4
- Construit en 1900
- Immeuble de 5 étages
Vous souhaitez visiter l'Appartement
l'Adresse Paris 11 Voltaire
75011 Paris
01 40 09 52 90
Nos honoraires
- l'Adresse Paris 11 Voltaire
- 18 000 euros
- David BERRIH
- RCS Paris : B 418 388 047
- CCI PARIS
- CPI 7501 2016 000 014 308
- 27 Av. de Friedland, 75008 Paris
- SOCAF
Mentions légales
Nous tenons à vous informer que l'annonce immobilière que vous avez consultée n'est malheureusement plus disponible pour les visites.
Nous comprenons que cela puisse être décevant, mais nous vous encourageons à continuer à explorer nos autres annonces disponibles. Notre équipe est à votre disposition pour vous aider à trouver la propriété qui correspond à vos besoins et à votre budget.
N'hésitez pas à nous contacter pour toute question ou pour planifier des visites pour d'autres biens. Nous sommes déterminés à vous accompagner dans votre recherche et à vous aider à trouver votre nouveau chez-vous.
Merci pour votre compréhension et votre intérêt.
Les appartements similaires
Paris 13 (75)
Exclusif800 000 €Appartement4 pièces , 2 chambres
81.24 m²
Avec balcon
Paris 11 (75)
Exclusif115 000 €Appartement1 pièce
12.84 m²
Paris 10 (75)
Exclusif136 000 €Appartement1 pièce
13.02 m²
Paris 07 (75)
Exclusif275 000 €Appartement1 pièce
22.18 m²
Paris 11 (75)
1 900 000 €Appartement7 pièces , 6 chambres
182.00 m²
Paris 06 (75)
309 750 €Appartement1 pièce
19.28 m²
Paris 12 (75)
410 000 €Appartement2 pièces , 1 chambre
54.06 m²
Avec terrasse
Paris 15 (75)
1 165 000 €Appartement4 pièces , 3 chambres
100.00 m²
Avec jardin
- Achat appartement
- Île-de-France
- Paris (75)
- Paris 11 (75011)
- Vente appartement 2 pièces, 30.00m², Paris 11










