Vente appartement 2 pièces, 41.72m², Paris 12
- 41.72m²
- 2 pièces
- 1 chambre
- 1 SDB
Appartement Paris 12 - 2 pièces 41.72 m2
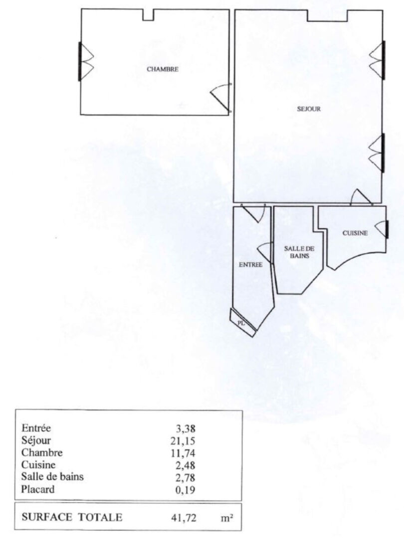
L'agence L'Adresse Wattignies Paris 12 a le plaisir de vous présenter ce charmant 2 pièces de 41,72 m² (loi Carrez), situé au 2eme étage avec ascenseur d'un immeuble ancien parfaitement entretenu.
Entièrement à rénover, ce bien offre un beau potentiel d'aménagement. Il se compose d'une entrée avec rangements, d'un séjour, d'une chambre, d'une cuisine indépendante, ainsi que d'une salle d'eau avec WC.
Une cave en sous-sol complète ce bien.
Traversant Est/Ouest, l'appartement bénéficie d'une belle luminosité tout au long de la journée.
Idéalement situé à proximité immédiate des commerces, des transports (métro et bus) et du Bois de Vincennes, ce bien constitue une opportunité idéale pour un premier achat ou un investissement locatif.
A visiter sans tarder !!
Les informations sur les risques auxquels ce bien est exposé sont disponibles sur le site Géorisques : www.georisques.gouv.fr
26056
56Montant estimé des dépenses annuelles d'énergie pour un usage standard :
Entre 1040.00€ et 1460.00€ par an
-
Les essentiels
- 2 pièces
- 41.72 m²
- 1 chambre
- Ascenseur : Oui
- 1 salle d'eau
-
Intérieur
- Cuisine Independante
- Gardien : Non
- Interphone : Non
- Digicode : Oui
- 1 Cave
-
Copropriété
- Bien en copropriété
- 24 lots
- Charges annuelles (ALUR) : 1417.60€
- Pas de procédure en cours
-
Autres
- Fibre : Oui
- Etage 2
- Construit en 1890
- Immeuble de 6 étages
Vous souhaitez visiter l'Appartement
l'Adresse Wattignies Paris 12
75012 PARIS
Transaction :
01 43 41 46 63
Location :
01 43 41 47 53
Nos honoraires
- l'Adresse Wattignies Paris 12
- 7 630 €
- ERAY Stéphane
- PARIS
- CPI75012016000006754
- CCI de PARIS
- GALIAN
- 120 000 €
- GALIAN 89, rue la Boétie 75008 PARIS
- Agence Nationale de Médiation 2, rue de Colmar 94300 VINCENNES Tél. : 01 46 81 20 95
Mentions légales
Les appartements similaires
Paris 10 (75)
760 000 €Appartement4 pièces , 2 chambres
86.62 m²
Paris 13 (75)
487 000 €Appartement2 pièces , 1 chambre
49.00 m²
Avec terrassegarage/box
Paris 07 (75)
1 000 000 €Appartement3 pièces , 1 chambre
78.00 m²
Avec garage/box
Paris 07 (75)
1 000 000 €Appartement3 pièces , 1 chambre
78.00 m²
Avec garage/box
Paris 13 (75)
598 500 €Appartement5 pièces , 3 chambres
99.00 m²
Avec balcon
Paris 15 (75)
1 150 000 €Appartement4 pièces , 3 chambres
100.00 m²
Avec jardin
Paris 15 (75)
Exclusif169 000 €Appartement1 pièce
15.06 m²
Paris 11 (75)
Exclusif115 000 €Appartement1 pièce
12.84 m²
- Achat appartement
- Île-de-France
- Paris (75)
- Paris 12 (75012)
- Vente appartement 2 pièces, 41.72m², Paris 12










