Vente appartement 1 pièce, 15.06m², Paris 15
- 15.06m²
- 1 pièce
Studio ensoleillé en dernier étage sans vis-à-vis - Rue Cambronne (Paris 15e)
Votre agence l'Adresse Cambronne Paris 15 vous propose en exclusivité ce Studio niché au 7ème et dernier étage avec ascenseur d'un très bel Immeuble en Pierre de Taille.
Idéalement situé rue Cambronne, en plein coeur du 15e arrondissement, découvrez cet appartement ensoleillé avec une vue entièrement dégagée.
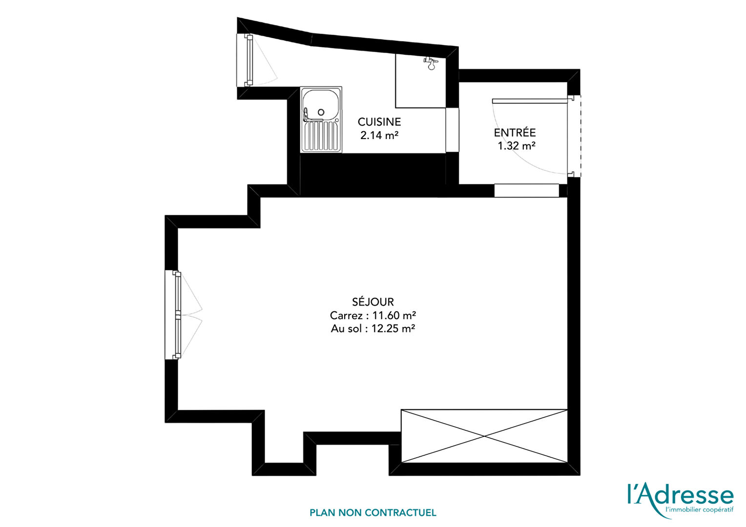
Il se compose d'une entrée, d'une belle de pièce de vie exposée Sud-Ouest, d'une cuisine et d'une douche. WC sur le palier limitrophe à l'appartement.
Au pied des commerces et des transports de la rue Cambronne et la rue de Vaugirard.
Beau potentiel pour ce studio à rénover, idéal pour un Pied-à-Terre ou une 1ère acquisition.
A visiter sans tarder !
_______________________________________
Transports à proximité
Métro :
- Ligne 12 (Volontaires) : 3 min
- Ligne 12 (Vaugirard) : 3 min
- Lignes 6 et 12 (Pasteur) : 8 min
BUS :
- 39 | 70 | 88 | 89 : 1 min
Les informations sur les risques auxquels ce bien est exposé sont disponibles sur le site Géorisques : www.georisques.gouv.fr


-
Les essentiels
- 1 pièce
- 15.06 m²
- Ascenseur : Oui
-
Intérieur
- Digicode : Oui
-
Copropriété
- Bien en copropriété
- 30 lots
- Charges annuelles (ALUR) : 567.29€
- Pas de procédure en cours
-
Autres
- Fibre : Oui
- Dernier étage : Oui
- Etage 7
- Construit en 1906
- Immeuble de 7 étages
Vous souhaitez visiter l'Appartement
l'Adresse Cambronne Paris 15
75015 PARIS
01 43 70 22 32
Nos honoraires
- l'Adresse Cambronne Paris 15
- AVISSE Anne
- Paris 839469244
- 7501 2019 000 39 113
- CCI Paris Ile de France
- FCA 77 Rue de Lourmel 75015 PARIS www.commerce-associe.fr
Mentions légales
Les appartements similaires
Paris 17 (75)
822 000 €Appartement3 pièces , 2 chambres
74.00 m²
Avec jardin, terrasse
Paris 10 (75)
530 000 €Appartement2 pièces , 1 chambre
48.00 m²
Paris 07 (75)
Exclusif2 190 000 €Appartement5 pièces , 3 chambres
104.00 m²
Avec balcon
Paris 10 (75)
1 065 000 €Appartement3 pièces , 2 chambres
77.00 m²
Paris 12 (75)
482 500 €Appartement3 pièces , 2 chambres
67.00 m²
Paris 15 (75)
Exclusif745 500 €Appartement3 pièces , 2 chambres
82.17 m²
Avec balcon
Paris 15 (75)
365 000 €Appartement2 pièces , 1 chambre
46.51 m²
Avec jardin
Paris 16 (75)
1 365 000 €Appartement4 pièces , 3 chambres
104.20 m²
- Achat appartement
- Île-de-France
- Paris (75)
- Paris 15 (75015)
- Vente appartement 1 pièce, 15.06m², Paris 15









