Vente appartement 3 pièces, 64.70m², Saint-Hilaire-de-Riez
- 64.70m²
- 3 pièces
- 2 chambres
- 1 SDB
APPARTEMENT NEUF Type 3 à SAINT HILAIRE DE RIEZ
L'agence l'ADRESSE SAINT GILLES CROIX DE VIE vous propose sur le secteur de la Pelle à Porteau, à proximité immédiate de Saint Gilles Croix de Vie et de l'océan, cette nouvelle résidence neuve .
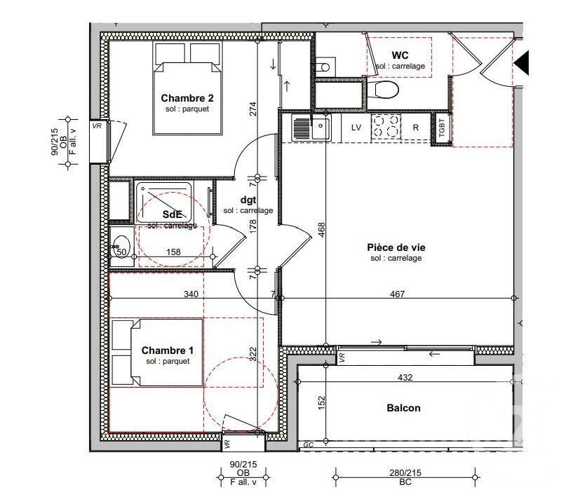
Voici un très bel appartement de standing de 64.7 m² avec balcon + Cave + Parking + Garage
Cette résidence de qualité, se situe dans un environnement calme, résidentiel, à 800 m de la plage, et à 600 m des commerces,
L'appartement est composé d'une entrée , une pièce de vie et un wc.
Le coin nuit vous offre deux chambres et une salle d'eau (douche) .
Vente en Etat de Futur Achèvement / Frais de Notaire réduits
Le plus : la résidence est sécurisée .
information et contact, agence l'ADRESSE SAINT GILLES CROIX DE VIE 02 51 54 10 51.
Etat des risques et pollutions
Les informations sur les risques auxquels ce bien est exposé sont disponibles sur le site Géorisques : >www.georisques.gouv.fr
Risque de pollution : Oui
Date ERP : 06/03/2023
Les informations sur les risques auxquels ce bien est exposé sont disponibles sur le site Géorisques : www.georisques.gouv.fr


-
Les essentiels
- 3 pièces
- 64.70 m²
- 2 chambres
- Ascenseur : Oui
- 1 salle d'eau
-
Intérieur
- Cuisine Nue
- Visiophone : Oui
-
Copropriété
- Bien en copropriété
- Charges annuelles (ALUR) : 0.00€
- Pas de procédure en cours
-
Autres
- Etat général : Excellent
- Rez de chaussée : Oui
- Etage 1
- Construit en 2025
- Immeuble de 2 étages
Vous souhaitez visiter l'Appartement
l'Adresse - IMMO 2000
85800 SAINT GILLES CROIX DE VIE
Transaction :
02 51 54 10 51
Location :
02 28 10 28 80
Nos honoraires
Les appartements similaires
Saint-Gilles-Croix-de-Vie (85)
317 000 €Appartement3 pièces , 2 chambres
57.72 m²
Avec terrasse
Saint-Hilaire-de-Riez (85)
95 000 €Appartement1 pièce
16.65 m²
Saint-Jean-de-Monts (85)
134 000 €Appartement1 pièce
31.17 m²
Avec balcon
Saint-Hilaire-de-Riez (85)
107 500 €Appartement2 pièces , 1 chambre
22.19 m²
Saint-Gilles-Croix-de-Vie (85)
Exclusif125 000 €Appartement2 pièces , 1 chambre
26.00 m²
Challans (85)
Exclusif180 400 €Appartement2 pièces , 1 chambre
57.69 m²
Les Sables-d'Olonne (85)
669 900 €Appartement3 pièces , 2 chambres
75.00 m²
Saint-Gilles-Croix-de-Vie (85)
229 000 €Appartement2 pièces , 1 chambre
43.10 m²
Avec terrasse
- Achat appartement
- Pays de la Loire
- Vendée (85)
- Saint-Hilaire-de-Riez (85270)
- Vente appartement 3 pièces, 64.70m², Saint-Hilaire-de-Riez



