Vente appartement 3 pièces, 63.50m², Suresnes
- 63.50m²
- 3 pièces
- 2 chambres
Suresnes - 3 pièces - Terrasses jardin de 103 m² - parking - cave
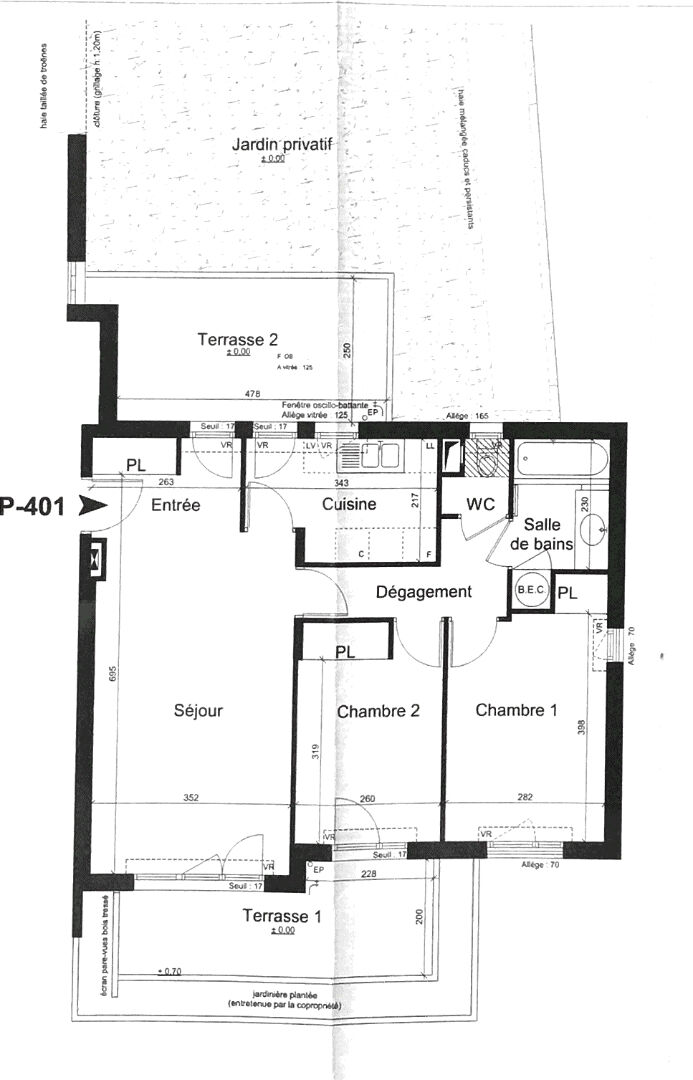
L'Adresse immobilier vous propose un bien rare niché dans un écrin de verdure, au coeur de Suresnes, dans la très recherchée rue Jean Macé. Situé au sein d'une résidence récente, au calme absolu, ce magnifique appartement 3 pièces vous séduira par ses extérieurs exceptionnels (103m² de terrasse et jardin) et son exposition plein Sud.
Il se compose d'un spacieux séjour avec entrée de 24 m² ouvrant sur une première terrasse de 12 m² et un superbe jardin privatif de 82 m² avec cabanon, idéal pour profiter de moments ensoleillés en toute intimité. La cuisine, indépendante et fonctionnelle, donne accès à une seconde terrasse de 9 m².
Côté nuit, deux chambres confortables (12 m² et 9 m²), une salle de bains, des WC séparés, ainsi qu'une cave et un emplacement de parking en sous-sol complètent ce bien.
Un havre de paix au charme rare, alliant confort moderne et cadre verdoyant, à deux pas des commerces, transports et écoles.
L'Adresse immobilier, et si votre nouveau chez-vous était aussi votre coin de paradis ? ?
Les informations sur les risques auxquels ce bien est exposé sont disponibles sur le site Géorisques : www.georisques.gouv.fr
2849
9Montant estimé des dépenses annuelles d'énergie pour un usage standard :
Entre 1371.20€ et 7849.00€ par an
-
Les essentiels
- 3 pièces
- 63.50 m²
- 2 chambres
- Ascenseur : Oui
- Accès PMR : Oui
-
Intérieur
- Interphone : Oui
- Digicode : Oui
- 1 Cave
-
Extérieur
- 2 Terrasses
- Jardin 103.00 m²
- 1 Parking
-
Copropriété
- Bien en copropriété
- 291 lots
- Charges annuelles (ALUR) : 1560.00€
- Pas de procédure en cours
-
Autres
- Etat général : Très bon état
- Fibre : Oui
- Rez de chaussée : Oui
- Construit en 1990
- Immeuble de 5 étages
Vous souhaitez visiter l'Appartement
l'Adresse Suresnes Centre
92150 Suresnes
Transaction :
01 70 21 87 34
Location :
01 70 21 87 34
Nos honoraires
- l'Adresse Suresnes Centre
- 10000
- Emmanuel FARGEAU
- 81280865700033
- Nanterre
- FR19812808657
- 4402 2015 000 001 799
- CCI de Paris
- GALIAN
- 200 000 €uros
- 89 rue de la Boétie 75008 PARIS
- MIEUX VIVRE ENSEMBLE - 1, impasse de Beauregard 54000 NANCY - mediation@vivons-mieux-ensemble.fr
Mentions légales
Les appartements similaires
Boulogne-Billancourt (92)
Exclusif639 000 €Appartement3 pièces , 2 chambres
72.00 m²
Avec balcon
Antony (92)
450 000 €Appartement3 pièces , 2 chambres
68.30 m²
Avec jardin, terrasse
Suresnes (92)
Exclusif412 000 €Appartement3 pièces , 1 chambre
59.00 m²
Antony (92)
Exclusif440 000 €Appartement6 pièces , 4 chambres
116.87 m²
Avec balconterrasse
Suresnes (92)
Exclusif850 000 €Appartement5 pièces , 4 chambres
103.00 m²
Avec balconterrasse
Asnières-sur-Seine (92)
425 000 €Appartement3 pièces , 2 chambres
70.68 m²
Avec jardin
Asnières-sur-Seine (92)
Exclusif628 000 €Appartement4 pièces , 3 chambres
82.23 m²
Avec balcon
Clichy (92)
274 906 €Appartement2 pièces , 1 chambre
40.00 m²
- Achat appartement
- Île-de-France
- Hauts-de-Seine (92)
- Suresnes (92150)
- Vente appartement 3 pièces, 63.50m², Suresnes











