Revenir aux résultats
Réf. de l'annonce : 14254142 / 153
Exclusif
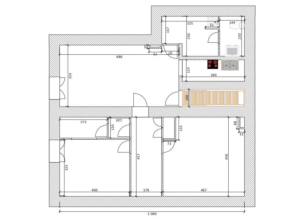
Vente entrepôt / local industriel, 99.00m², Cannes
Honoraires à la charge du vendeur
144 500 €
- 99.00m²
CANNES Entrepôt / local Stockage / atelier /MURS - Cannes 99 m2 proche banane
Cannes, pour un Atelier ou un Entrepôt local en sous-sol , avec un salle de bain et un espace cuisine, possibilité de stationnement minute juste devant l'immeuble. à 1 minute de la rue d'ANTIBES.
Les informations sur les risques auxquels ce bien est exposé sont disponibles sur le site Géorisques : www.georisques.gouv.fr
Caroline NEEL (EI) Négociatrice - Numéro RSAC : 982 951 006 - Cannes.
Bilan energetique


Caractéristiques Entrepôt / Local industriel
-
Les essentiels
- 99.00 m²
-
Copropriété
- Bien en copropriété
- 8 lots
- Charges annuelles (ALUR) : 400.00€
- Procédure en cours
-
Autres
- Etat général : A Rafraichir
Vous souhaitez visiter l'Entrepôt / Local industriel
Prenez rendez-vous avec l'agence.
Agence immobilière
l'Adresse Cannes
l'Adresse Cannes
10 - 12 Bd de la République
06400 Cannes
04 93 99 09 90
Nos honoraires
Mentions légales
06400 Cannes
04 93 99 09 90
Nos honoraires
Mentions légales
- l'Adresse Cannes
- 10 000 €uros
- SMESSAERT Mathieu
- Cannes 830 735 825
- CPI 0605 2017 000 020 749
- CCI NICE COTE D AZUR
- Médiateur du Commerce Coopératif et Associé FCA 77 rue de Lourmel 75015 Paris http://www.mcca-mediation.fr
Mentions légales
Les entrepôts / locaux industriels similaires
- Achat entrepôt / local industriel
- Provence-Alpes-Côte d'Azur
- Alpes-Maritimes (06)
- Cannes (06400)
- Vente entrepôt / local industriel pièce, 99.00m², Cannes









