Vente local commercial 3 pièces, 59.00m², Valence
- 59.00m²
- 3 pièces
- 2 chambres
- 1 SDB
Local commercial 59 m2 avec garage et cave quartier Chateauvert
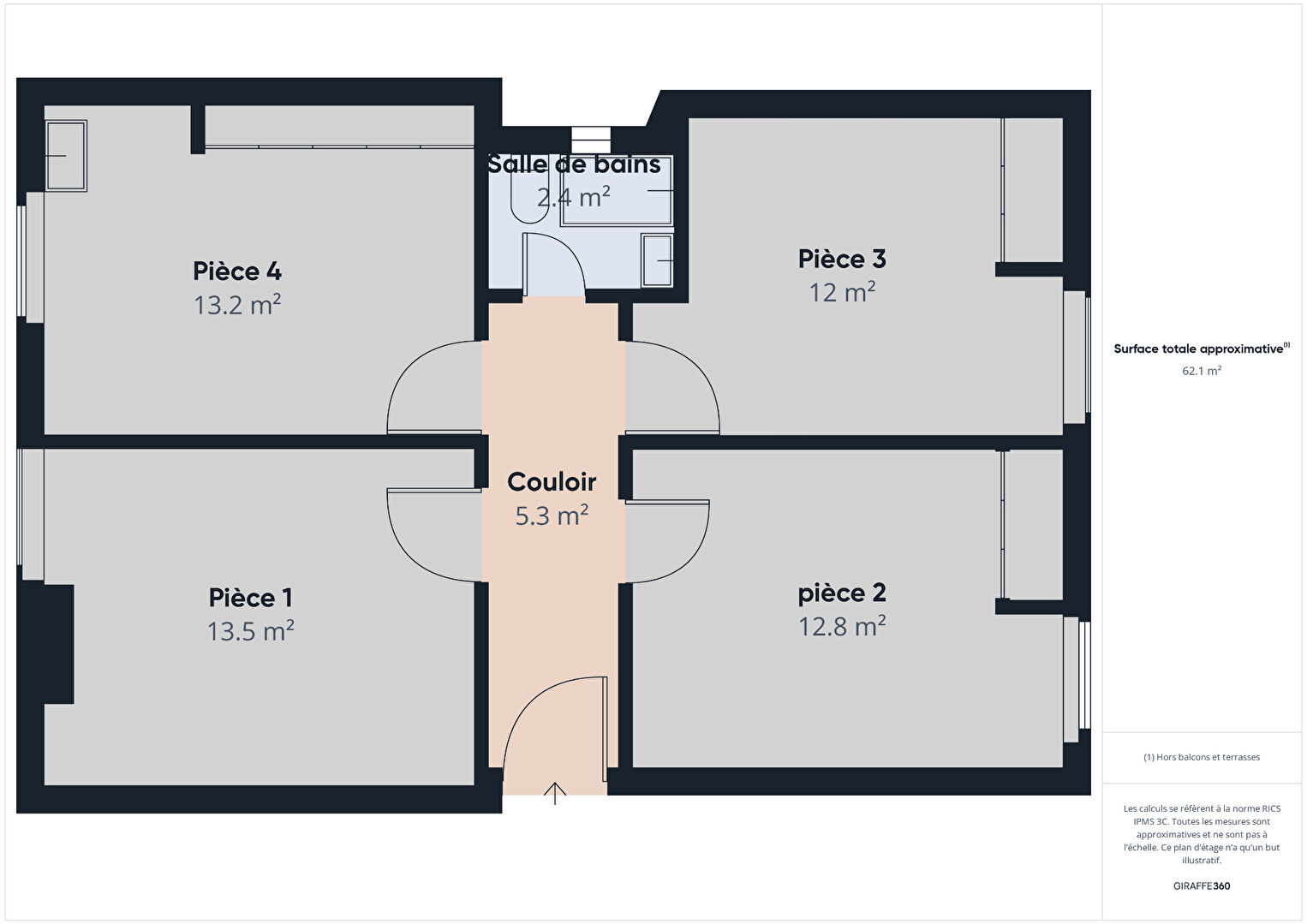
Situé dans le quartier recherché de Châteauvert, découvrez ce local commercial de 59 m², au rez-de-chaussée surélevé et dernier étage d'une maison divisée en seulement deux lots, au sein d'un bâtiment classé historique qui offre un charme unique à votre activité.
Le local se compose d'un hall d'accueil et de trois/ quatre pièces modulables, permettant d'aménager votre espace de travail selon vos besoins (bureaux, salle de soins, consultation, stockage?).
Une salle d'eau avec WC complète l'ensemble.
La hauteur sous plafond de plus de 3 mètres apporte de beaux volumes et une agréable luminosité.
Actuellement configuré en cabinet médical, le local peut parfaitement accueillir une nouvelle activité professionnelle.
Possibilité d'ouvrir certaines cloisons pour créer un espace plus ouvert et adapté à votre projet (sous réserve de faisabilité technique).
Les prestations :
Chauffage individuel au gaz,
Menuiseries PVC double vitrage,
Installation électrique aux normes.
Un grand garage d'environ 60 m², dont une partie aménagée en cave, vient compléter ce bien.
Autre avantage : pas de syndic de copropriété, donc aucune charge mensuelle.
Un emplacement idéal et un local offrant un fort potentiel, parfait pour professions libérales, bureaux ou activités de services, à deux pas du centre-ville, des commerces, des écoles, des arrêts de bus et de toutes les commodités locales.
Visite virtuelle sur demande !
Pour plus d'informations ou pour organiser une visite, contactez-nous sans tarder !
Cette annonce est proposée par l'Adresse Immobilier Valence.
Son prix de vente est de 149000€, les honoraires d'agence sont inclus et sont à la charge du vendeur.
Les informations sur les risques auxquels ce bien est exposé sont disponibles sur le site Géorisques : www.georisques.gouv.fr
Les informations sur les risques auxquels ce bien est exposé sont disponibles sur le site Géorisques : www.georisques.gouv.fr
Sabrina BONNEFOIS (EI) Agent commercial - Numéro RSAC : 521 701 300 - romans sur isere.
31669
69Montant estimé des dépenses annuelles d'énergie pour un usage standard :
Entre 1680.00€ et 2320.00€ par an
-
Les essentiels
- 3 pièces
- 59.00 m²
- 2 chambres
- 1 salle d'eau
-
Intérieur
- Cuisine Nue
- Interphone : Oui
- 1 Cave
-
Extérieur
- 1 Garage/box
-
Autres
- Etat général : Bon Etat
- Rez de chaussée : Oui
- Dernier étage : Oui
- Construit en 1900
Vous souhaitez visiter le Local commercial
l'Adresse VALENCE
Les locaux commerciaux similaires
- Achat local commercial
- Auvergne-Rhône-Alpes
- Drôme (26)
- Valence (26000)
- Vente local commercial 3 pièces, 59.00m², Valence











