Vente maison 4 pièces, 114.00m², Aizenay
- 114.00m²
- 4 pièces
- 2 chambres
Maison 4 pièces 114m² à vendre dans le centre d'Aizenay
EXCLUSIVITE L'ADRESSE AIZENAY : Maison de 114 m² habitables située dans le coeur de ville de la commune d'Aizenay, vous laissant l'opportunité de tout faire à pied.
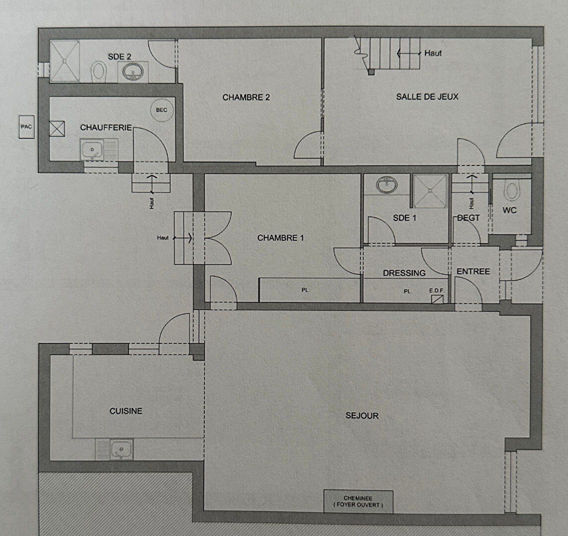
De plain pied, l'entrée s'ouvre sur un lumineux séjour/salle à manger de presque 45 m², attenant à une cuisine aménagée équipée en parfait état d'entretien.
Un dégagement dessert deux chambres (de 13,5 et 12,2m²) et un bureau (de 17,4 m²) avec accès à une mezzanine. La maison comprend également deux salles d'eau et deux WC.
A l'extérieur : une cour avec place de parking, un abri de jardin et une dépendance complètent le descriptif de ce bien.
Aucun travaux n'est à prévoir : l'isolation et les ouvertures ont été refaites, système de chauffage au sol par pompe à chaleur, raccordement à la fibre...
REF : 18813
N'hésitez pas à nous contacter pour plus de renseignements ou pour convenir d'une visite dès maintenant ! Agence ouverte du lundi au samedi : 02 51 43 88 88 !
Les informations sur les risques auxquels ce bien est exposé sont disponibles sur le site Géorisques : www.georisques.gouv.fr
1504
4Montant estimé des dépenses annuelles d'énergie pour un usage standard :
Entre 1330.00€ et 1850.00€ par an
-
Les essentiels
- 4 pièces
- 114.00 m²
- 2 chambres
-
Extérieur
- Jardin 355.00 m²
- 4 Parkings
-
Autres
- Etat général : Bon Etat
Vous souhaitez visiter la Maison
l'Adresse - AIZENAY
Les maisons similaires
Saint-Christophe-du-Ligneron (85)
Exclusif222 000 €Maison5 pièces , 4 chambres
121.00 m²
Barbâtre (85)
Exclusif347 000 €Maison6 pièces , 4 chambres
107.00 m²
Avec jardin, terrasse, garage/box
La Tranche-sur-Mer (85)
568 000 €Maison6 pièces , 3 chambres
160.00 m²
Avec jardin, terrasse, garage/box
Saint-Gilles-Croix-de-Vie (85)
569 000 €Maison7 pièces , 6 chambres
177.99 m²
Avec jardin, terrasse, garage/box
La Barre-de-Monts (85)
Exclusif211 600 €Maison3 pièces , 2 chambres
74.78 m²
Avec jardin
Saint-Étienne-du-Bois (85)
232 900 €Maison4 pièces , 3 chambres
79.00 m²
Avec jardin
La Tranche-sur-Mer (85)
Exclusif744 000 €Maison6 pièces , 4 chambres
151.00 m²
Avec jardin
Barbâtre (85)
Exclusif274 200 €Maison5 pièces , 3 chambres
101.00 m²
Avec jardin
- Achat maison
- Pays de la Loire
- Vendée (85)
- Aizenay (85190)
- Vente maison 4 pièces, 114.00m², Aizenay










