Vente maison 5 pièces, 500.00m², Châteauroux
- 500.00m²
- 5 pièces
Maison 5 pièce(s)
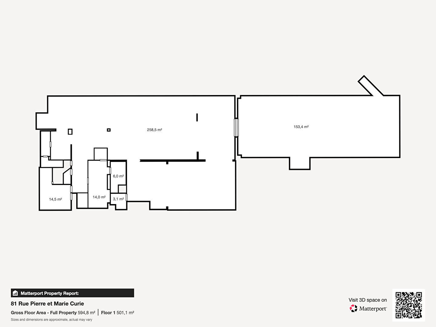
À VENDRE : LOCAL COMMERCIAL DE 500 m² AVEC APPARTEMENT DE FONCTION
Situé dans un quartier dynamique, ce bien d'exception offre une grande polyvalence et de nombreuses possibilités d'aménagements. Composé de :
- Local commercial de 500 m² au rez-de-chaussée : Ancienne salle de sport, cet espace spacieux et lumineux est composé de plusieurs grands espaces modulables, d'un extérieur, de douches, de WC et de vestiaires. L'agencement actuel permet de réutiliser les lieux pour une nouvelle activité professionnelle. Parfait pour un projet d'entreprise nécessitant une grande surface.
- Appartement de fonction de 90 m² environ au 1er étage : Vous bénéficiez d'un cadre de vie agréable et fonctionnel comprenant une suite parentale avec salle d'eau privative et WC séparé, une cuisine ouverte sur séjour lumineux, un coin bureau, ainsi qu'une terrasse pour profiter des beaux jours.
- Parking privé : 5 places, dont 1 place PMR (personne à mobilité réduite).
Ce bien polyvalent offre des opportunités multiples pour différents types de profession (commerce, bureaux, activités médicales, etc.). Un fort potentiel de développement et de personnalisation selon vos projets.
Les informations sur les risques auxquels ce bien est exposé sont disponibles sur le site Géorisques : www.georisques.gouv.fr


-
Les essentiels
- 5 pièces
- 500.00 m²
-
Extérieur
- Jardin 871.00 m²
Vous souhaitez visiter la Maison
l'Adresse Châteauroux
36000 CHATEAUROUX
Transaction :
02 54 24 23 01
Location :
02 54 24 23 01
Nos honoraires
- l'Adresse Châteauroux
- 10000
- Vincent CHATEIGNER
- 82463096600029
- CHATEAUROUX
- Place Gambetta 36000 CHATEAUROUX
- GALIAN
- 200000
- Rue de la Boétie 75008 PARIS
- MEDIATION MIEUX VIVRE ENSENBLE 465, Avenue de La Libération 54000 NANCY www.mediation-vivons-mieux-ensemble.fr
Mentions légales
Les maisons similaires
Villentrois (36)
165 000 €Maison4 pièces , 3 chambres
118.00 m²
Avec jardin, terrasseChâteauroux (36) Exclusif
203 000 €Maison5 pièces , 3 chambres
90.00 m²
Avec jardinLa Vernelle (36) Exclusif
170 000 €Maison4 pièces , 3 chambres
100.00 m²
Avec jardin, terrasseVendœuvres (36) Exclusif
119 900 €Maison5 pièces , 4 chambres
143.00 m²
Avec jardinÉcueillé (36)
48 825 €Maison3 pièces , 2 chambres
42.00 m²
Avec jardinChâteauroux (36) Exclusif
99 000 €Maison5 pièces , 4 chambres
93.00 m²
Avec jardinLa Vernelle (36)
262 000 €Maison5 pièces , 3 chambres
120.00 m²
Ardentes (36)
265 000 €Maison9 pièces , 5 chambres
170.47 m²
Avec jardin
- Achat maison
- Centre-Val de Loire
- Indre (36)
- Châteauroux (36000)
- Vente maison 5 pièces, 500.00m², Châteauroux