Revenir aux résultats
Réf. de l'annonce : 14271018
Vente maison 5 pièces, 96.79m², Châteauroux
Honoraires à la charge de l'acquéreur : 8,25 % TTC | 129 900€ honoraires inclus | 120 000€ hors honoraires | Taxe foncière : 1 152,00€
129 900 €
- 96.79m²
- 5 pièces
- 3 chambres
Maison 5 pièce(s) 96 m2
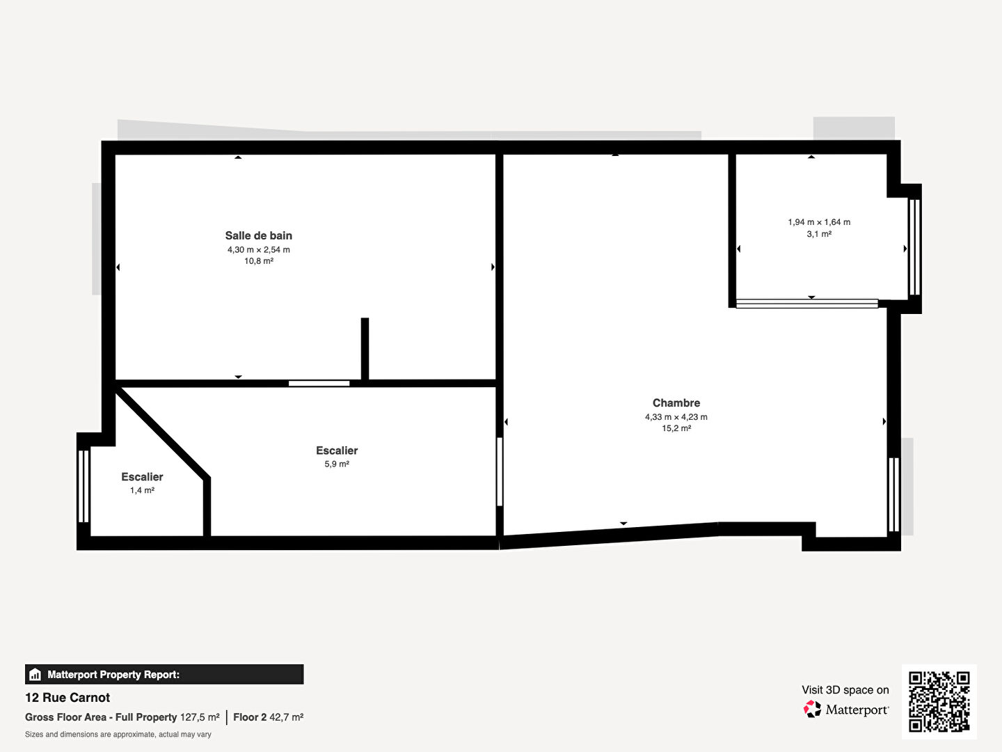
Centre Ville, maison de ville comprenant:
Au rez de chaussée: Entrée, séjour, cuisine aménagée.
A l'étage: Palier desservant une salle de bains, une grande chambre.
Au second: Deux chambres.
L'ensemble avec cave grande cour et dépendances.
Les informations sur les risques auxquels ce bien est exposé sont disponibles sur le site Géorisques : www.georisques.gouv.fr
Bilan energetique
26884
84
Diagnostic réalisé le : 18/12/2025
Montant estimé des dépenses annuelles d'énergie pour un usage standard :
Entre 3290.00€ et 4460.00€ par an
Montant estimé des dépenses annuelles d'énergie pour un usage standard :
Entre 3290.00€ et 4460.00€ par an
Caractéristiques Maison
-
Les essentiels
- 5 pièces
- 96.79 m²
- 3 chambres
Vous souhaitez visiter la Maison
Prenez rendez-vous avec l'agence.
Agence immobilière
l'Adresse Châteauroux
l'Adresse Châteauroux
29 rue de la République
36000 CHATEAUROUX
Transaction :
02 54 24 23 01
Location :
02 54 24 23 01
Nos honoraires
Mentions légales
36000 CHATEAUROUX
Transaction :
02 54 24 23 01
Location :
02 54 24 23 01
Nos honoraires
Mentions légales
- l'Adresse Châteauroux
- 10000
- Vincent CHATEIGNER
- 82463096600029
- CHATEAUROUX
- Place Gambetta 36000 CHATEAUROUX
- GALIAN
- 200000
- Rue de la Boétie 75008 PARIS
- MEDIATION MIEUX VIVRE ENSENBLE 465, Avenue de La Libération 54000 NANCY www.mediation-vivons-mieux-ensemble.fr
Mentions légales
Les maisons similaires
La Vernelle (36)
Exclusif170 000 €Maison4 pièces , 3 chambres
100.00 m²
Avec jardin, terrasse
Chabris (36)
Exclusif70 100 €Maison4 pièces , 2 chambres
65.00 m²
Châteauroux (36)
Exclusif130 000 €Maison4 pièces , 2 chambres
98.00 m²
Avec jardin
Châtillon-sur-Indre (36)
61 000 €Maison6 pièces , 3 chambres
146.70 m²
Avec jardin
Châteauroux (36)
Exclusif238 000 €Maison7 pièces , 4 chambres
200.62 m²
Avec jardin
Châteauroux (36)
Exclusif171 000 €Maison5 pièces , 3 chambres
121.72 m²
Avec jardin, garage/box
Châteauroux (36)
Exclusif119 500 €Maison5 pièces , 3 chambres
80.55 m²
Avec jardin
Baraize (36)
Exclusif88 900 €Maison3 pièces , 2 chambres
65.72 m²
Avec jardin
- Achat maison
- Centre-Val de Loire
- Indre (36)
- Châteauroux (36000)
- Vente maison 5 pièces, 96.79m², Châteauroux

















