Réf. de l'annonce : 14129554 / 1972
Vente maison 5 pièces, 138.00m², Cugnaux
- 138.00m²
- 5 pièces
- 3 chambres
- 2 SDB
Maison Cugnaux - 5 pièces 138 m2
L'ADRESSE IMMOBILIER MURET - COUP DE COEUR ASSURÉ - BEAUX VOLUMES - CENTRE VILLE -
Maison de ville de type T5 avec garage et jardin, alliant modernité et charme de l'ancien composée comme suit :
Laissez vous séduire par ses volumes généreux et ses matériaux de qualité.
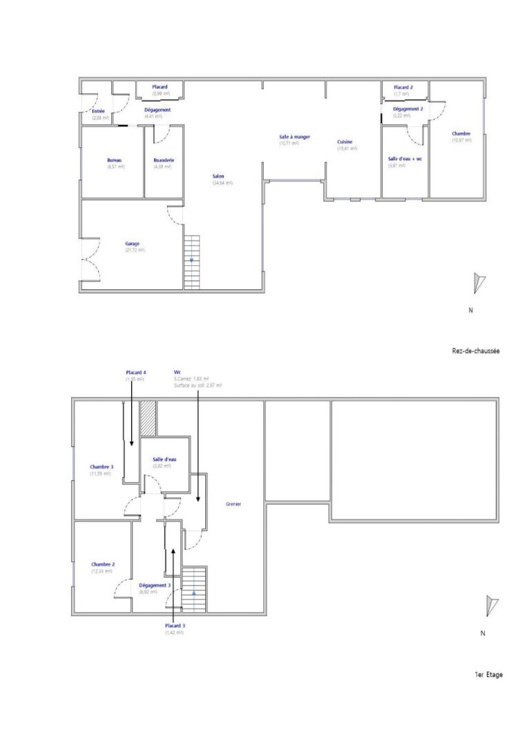
Au rez-de-chaussée : Entrée donnant accès à une grande pièce de vie lumineuse avec poêle mixte granulés/bois, salle à manger, cuisine aménagée et équipée, le tout cumulant un espace de vie de plus de 60 m². Une belle chambre, un bureau idéal pour le télétravail, une buanderie, une salle d'eau avec W.C.
À l'étage : Palier desservant 2 belles chambres, une salle d'eau, W.C séparés et accès au grenier isolé offrant des possibilités d'aménagement ou de rangement supplémentaire.
Les plus et ses points forts : Garage avec arrivée et sortie d'eau pouvant être réaménagé à sa guise. Terrasses pour profiter des beaux jours en famille ou entre amis. Climatisation réversible et chauffage au sol. Bonne étiquette énergétique.
Le tout édifié sur un terrain clos et arboré d'une superficie d'environ 394 m². À deux pas de l'école Jean-Jaures et des transports en commun.
Prêt à avoir le coup de coeur ?! Contactez nous au O5.32.O9.66.5O pour organiser une visite !
Les informations sur les risques auxquels ce bien est exposé sont disponibles sur le site Géorisques : www.georisques.gouv.fr
1575
5-
Les essentiels
- 5 pièces
- 138.00 m²
- 3 chambres
- Accès PMR : Oui
- 2 salles d'eau
-
Intérieur
- Cuisine AmenageeEquipee
- Gardien : Non
- Interphone : Non
-
Extérieur
- Jardin 394.00 m²
-
Autres
- Etat général : Bon Etat
- Fibre : Oui
- Construit en 1901
- Immeuble de 1 étage
Vous souhaitez visiter la Maison
l'Adresse immobilier Muret
31600 Muret
Transaction :
05 32 09 66 50
Location :
05 32 09 66 50
Nos honoraires
- l'Adresse immobilier Muret
- 8000
- Emilie BORIN
- 838557965
- TOULOUSE
- FR53838557965
- CPI31012018000029501
- 2 RUE ALSACE LORRAINE 31000 TOULOUSE
- SOCAF
- 110000
- 26 AVENUE DE SUFFREN 75015 PARIS
- MCCA - médiation 77 rue Lourmel 75 015 Paris www.mcca-mediateur.fr
Mentions légales
Nous tenons à vous informer que l'annonce immobilière que vous avez consultée n'est malheureusement plus disponible pour les visites.
Nous comprenons que cela puisse être décevant, mais nous vous encourageons à continuer à explorer nos autres annonces disponibles. Notre équipe est à votre disposition pour vous aider à trouver la propriété qui correspond à vos besoins et à votre budget.
N'hésitez pas à nous contacter pour toute question ou pour planifier des visites pour d'autres biens. Nous sommes déterminés à vous accompagner dans votre recherche et à vous aider à trouver votre nouveau chez-vous.
Merci pour votre compréhension et votre intérêt.
Les maisons similaires
Aussonne (31)
299 000 €Maison7 pièces , 6 chambres
181.00 m²
Avec jardin
La Salvetat-Saint-Gilles (31)
Exclusif595 000 €Maison6 pièces , 5 chambres
161.00 m²
Avec jardin, garage/box
Toulouse (31)
371 000 €Maison5 pièces , 3 chambres
92.00 m²
Avec jardin
Fonsorbes (31)
Exclusif275 000 €Maison4 pièces , 3 chambres
114.00 m²
Avec jardin
L'Union (31)
Exclusif299 000 €Maison4 pièces , 3 chambres
85.00 m²
Avec jardin, terrasse
Aussonne (31)
480 000 €Maison5 pièces , 3 chambres
160.00 m²
Fenouillet (31)
359 000 €Maison4 pièces , 3 chambres
90.00 m²
Avec garage/box
Longages (31)
Exclusif279 000 €Maison10 pièces , 7 chambres
240.00 m²
- Achat maison
- Occitanie
- Haute-Garonne (31)
- Cugnaux (31270)
- Vente maison 5 pièces, 138.00m², Cugnaux

















