Vente maison 4 pièces, 85.00m², Eaunes
- 85.00m²
- 4 pièces
- 3 chambres
- 1 SDB
Maison Eaunes - 4 pièces 85 m2
L'ADRESSE IMMOBILIER MURET - PLAIN-PIED - IDÉALEMENT SITUÉE -
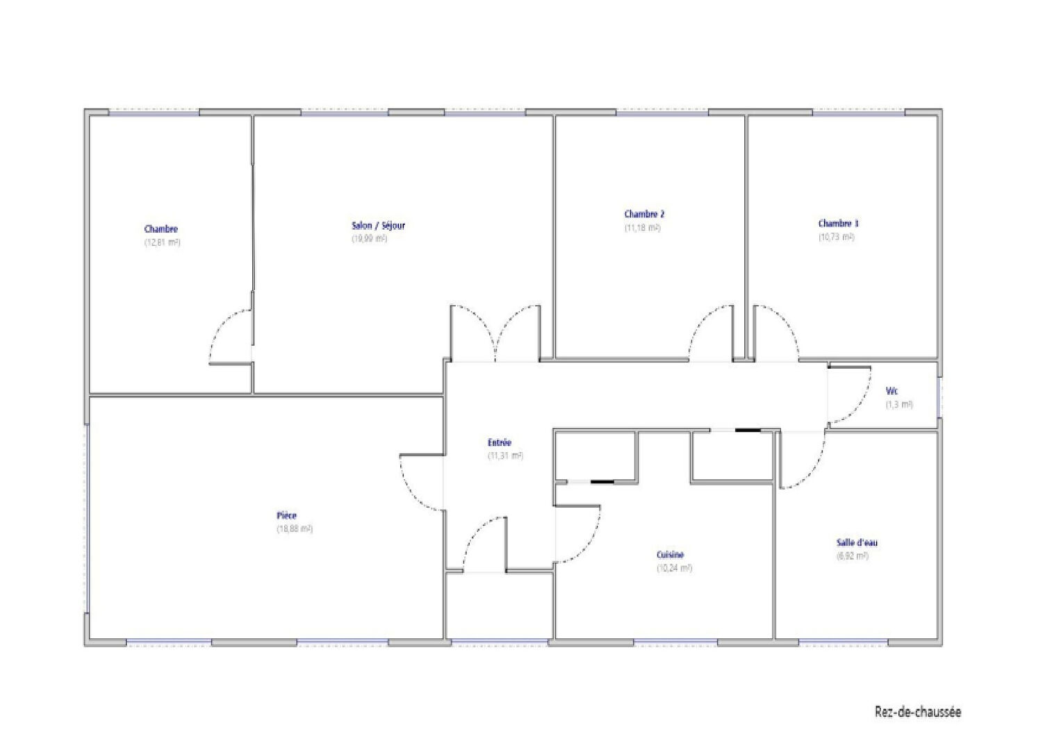
Sur la commune de Eaunes, nous vous proposons cette maison T4 de plain-pied composée comme suit :
Entrée donnant sur un espace de vie fonctionnel, une cuisine indépendante, couloir desservant 3 chambres, une salle d'eau spacieuse, W.C séparés. Garage isolé et carrelé avoisinant les 20 m² offrant ainsi un potentiel d'aménagement supplémentaire.
Côté extérieur, vous profiterez d'un jardin verdoyant et de plusieurs espaces de stationnement.
La constructibilité de la parcelle est de 30% maximum laissant ainsi la possibilité d'aménager les extérieurs à sa guise.
Les plus : Menuiseries double vitrage PVC. Plain-Pied. Beau potentiel.
Des travaux de rafraîchissement sont à prévoir, vous permettant ainsi de repenser les espaces et de personnaliser le bien selon vos envies.
Cette maison constitue une belle opportunité pour un projet de résidence principale ou d'investissement, dans un secteur proche des commodités.
Le tout édifié sur un terrain arboré d'une superficie d'environ 950 m².
À découvrir sans tarder, contactez-nous au O5.32.O9.66.5O pour organiser une visite !
Les informations sur les risques auxquels ce bien est exposé sont disponibles sur le site Géorisques : www.georisques.gouv.fr
20542
42Montant estimé des dépenses annuelles d'énergie pour un usage standard :
Entre 1990.00€ et 2730.00€ par an
-
Les essentiels
- 4 pièces
- 85.00 m²
- 3 chambres
- Accès PMR : Oui
- 1 salle d'eau
-
Intérieur
- Cuisine Independante
-
Extérieur
- Jardin 950.00 m²
- 1 Garage/box
- 4 Parkings
-
Autres
- Etat général : A Rafraichir
- Construit en 1970
Vous souhaitez visiter la Maison
l'Adresse immobilier Muret
31600 Muret
Transaction :
05 32 09 66 50
Location :
05 32 09 66 50
Nos honoraires
- l'Adresse immobilier Muret
- 8000
- Emilie BORIN
- 838557965
- TOULOUSE
- FR53838557965
- CPI31012018000029501
- 2 RUE ALSACE LORRAINE 31000 TOULOUSE
- SOCAF
- 110000
- 26 AVENUE DE SUFFREN 75015 PARIS
- MCCA - médiation 77 rue Lourmel 75 015 Paris www.mcca-mediateur.fr
Mentions légales
Les maisons similaires
Castelginest (31)
549 000 €Maison5 pièces , 4 chambres
214.00 m²
Avec jardin, terrasse
Ondes (31)
309 000 €Maison4 pièces , 3 chambres
104.00 m²
Avec terrasse
La Salvetat-Saint-Gilles (31)
440 000 €Maison6 pièces , 5 chambres
160.00 m²
Avec jardin
Toulouse (31)
Exclusif329 000 €Maison4 pièces , 3 chambres
89.00 m²
Avec jardin
Montastruc-la-Conseillère (31)
Exclusif295 000 €Maison4 pièces , 1 chambre
100.00 m²
Avec jardin
Longages (31)
445 000 €Maison5 pièces , 4 chambres
174.00 m²
Avec jardin, terrasse
Muret (31)
Exclusif279 000 €Maison5 pièces , 4 chambres
91.00 m²
Colomiers (31)
385 000 €Maison4 pièces , 3 chambres
119.78 m²
Avec jardin, terrasse
- Achat maison
- Occitanie
- Haute-Garonne (31)
- Eaunes (31600)
- Vente maison 4 pièces, 85.00m², Eaunes

















