Vente maison 7 pièces, 160.00m², Francourville
- 160.00m²
- 7 pièces
- 4 chambres
- 2 SDB
Maison 150 m2
Votre Agence l'Adresse Chartres vous propose en exclusivité sur la commune de Francourville, une charmante maison de village rénovée avec goût.
D'une surface habitable de 150m², édifiée sur une parcelle de plus de 660m², cette maison bénéficie d'une excellente orientation EST-OUEST, ce qui signifie une luminosité présente toute la journée. Une cour principale avec stationnement et un jardin indépendant avec sa terrasse complète ce bien.
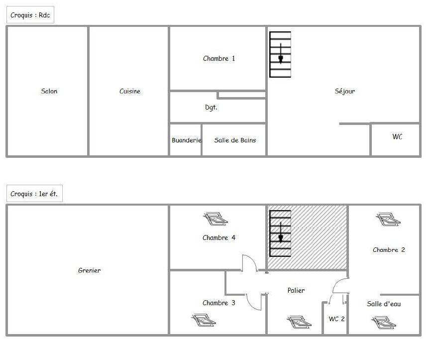
Au rez-de-chaussée : Espace lumière et confort.
- Une grande pièce de vie cuisine / Salle à manger de plus de 30m² conviviale et lumineuse.
- Un couloir mène à une chambre, avec rangement, une salle de bain, une buanderie.
- Enfin, un salon cathédrale de plus de 45m² chauffé avec son poêle à granulé.
- Un WC indépendant complète le rez-de-chaussée.
A l'étage : un pallier bureau distribue
- Deux chambres
- Des WC indépendants
- Une suite parentale avec sa salle d'eau privative et son dressing
Un grenier avec accès indépendant de près de 40m² est disponible en aménagement.
Alors n'hésitez pas et contactez L'Adresse Immobilier Chartres pour organiser une visite.
Les informations sur les risques auxquels ce bien est exposé sont disponibles sur le site Géorisques : www.georisques.gouv.fr
1616
6Montant estimé des dépenses annuelles d'énergie pour un usage standard :
Entre 2190.00€ et 3020.00€ par an
-
Les essentiels
- 7 pièces
- 160.00 m²
- 4 chambres
- 1 salle de bain
- 1 salle d'eau
-
Intérieur
- Cuisine AmenageeEquipee
- Gardien : Non
- Interphone : Non
-
Extérieur
- Jardin 660.00 m²
- 3 Parkings
-
Autres
- Etat général : Bon Etat
- Fibre : Oui
- Construit en 1900
- Immeuble de 2 étages
Vous souhaitez visiter la Maison
l'Adresse Chartres
28000 Chartres
02 46 56 66 66
Nos honoraires
- l'Adresse Chartres
- 10000
- Véronique COUBELLE & Pierre CHAMOULEAU
- CHARTRES
- CHARTRES
- FR51829683499
- CPI28012017000021381
- Gallian
- 120 000€
Mentions légales
Les maisons similaires
Mainvilliers (28)
480 000 €Maison6 pièces , 5 chambres
196.00 m²
Avec jardin, terrasse, garage/box
Nogent-le-Rotrou (28)
Exclusif150 000 €Maison4 pièces , 2 chambres
67.00 m²
Avec jardin
Nogent-sur-Eure (28)
Exclusif380 000 €Maison7 pièces , 4 chambres
220.00 m²
Avec jardin
Auneau-Bleury-Saint-Symphorien (28)
233 000 €Maison5 pièces , 4 chambres
185.00 m²
Avec jardin, terrasse
Chartres (28)
Exclusif299 900 €Maison5 pièces , 3 chambres
108.00 m²
Avec jardin
Chartres (28)
Exclusif359 000 €Maison5 pièces , 4 chambres
113.00 m²
Avec jardin, terrasse, garage/box
Luisant (28)
399 000 €Maison6 pièces , 3 chambres
131.45 m²
Avec jardin, terrasse, garage/box
Gasville-Oisème (28)
Exclusif279 900 €Maison7 pièces , 4 chambres
156.00 m²
- Achat maison
- Centre-Val de Loire
- Eure-et-Loir (28)
- Francourville (28700)
- Vente maison 7 pièces, 160.00m², Francourville

















