Vente maison 8 pièces, 195.00m², La Mothe Achard
- 195.00m²
- 8 pièces
- 5 chambres
- 2 SDB
Maison en plein coeur de La Mothe Achard - 8 pièces - 195m²
LA MOTHE ACHARD : Votre réseau l'Adresse vous présente cette maison de bourg A RENOVER, située au CALME et à proximité à pied des commerces et écoles.
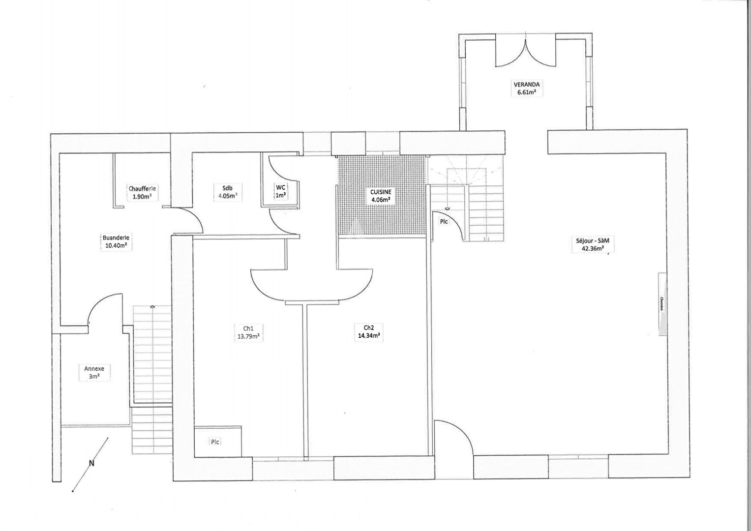
Idéale pour des primo-accédants, cette maison de caractère à rénover offrant deux niveaux d'environ 97m² chacun ainsi qu'un grenier aménageable de 25m².
Ce bien est composé au rez-de-chaussée : d'une pièce de vie de plus de 42 m² prolongée sur un coin cuisine, deux chambres, une salle d'eau, une buanderie et un WC.
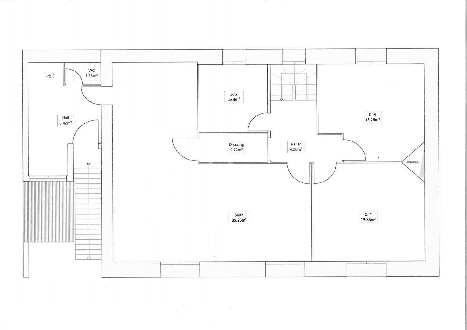
A l'étage : 3 chambres, une salle de bain, un dressing et un WC.
Venez découvrir sans attendre tous les avantages que vous apportera cette maison !
Chiffrage des travaux connus (devis réalisés)
Prévoir les travaux suivants: menuiseries, toiture ardoises (3 pans à changer), chauffage et électricité. (Bien éligible Rénovation énergétique d'ampleur ou par gestes).
Située aux portes du littoral Sablais, Les Achards vous accueillent avec ses multiples commerces, écoles et collèges, complexe sportif, complexe aquatique, médiathèque... etc.
Accès rapide à la 2 x 2 voies direction la Roche sur Yon et les Sables d'Olonne
Classe énergétique : E
Réf : 1659
Honoraires charge vendeur
Consommation énergique : 274 kWh/m²/an
Emission de gaz à effet de serre : 37 kg CO2/m²/an
Montant estimé des dépenses annuelles d'énergie pour un usage standard : entre 2 570 € et 3 560 € par an. Prix moyens des énergies indexés sur l'année 2021 (abonnements compris)
Les informations sur les risques auxquels ce bien est exposé sont disponibles sur le site Géorisques : www.georisques.gouv.fr
Les informations sur les risques auxquels ce bien est exposé sont disponibles sur le site Géorisques : www.georisques.gouv.fr
27437
37Montant estimé des dépenses annuelles d'énergie pour un usage standard :
Entre 2570.00€ et 3560.00€ par an
-
Les essentiels
- 8 pièces
- 195.00 m²
- 5 chambres
- 1 salle de bain
- 1 salle d'eau
-
Intérieur
- Cuisine Indépendante Aménagée
- Gardien : Non
- Interphone : Non
-
Extérieur
- 3 Parkings
-
Autres
- Etat général : Travaux à prévoir
- Construit en 1945
Vous souhaitez visiter la Maison
l'Adresse - Les Achards
85150 LES ACHARDS
02 51 90 96 97
Nos honoraires
- l'Adresse - Les Achards
- 2668 €
- BOUVIER Sandrine
- LA ROCHE SUR YON 839887387
- CPI85012018000034449
- LA CCI DE LA VENDEE
- LA MEDIATION DU COMMERCE COOPERATIF ET ASSOCIE 77 rue de Lourmel 75015 PARIS www.mcca-mediation.fr
Mentions légales
Les maisons similaires
Le Langon (85)
289 000 €Maison6 pièces , 5 chambres
175.76 m²
Avec jardin
L'Épine (85)
399 080 €Maison5 pièces , 3 chambres
127.83 m²
Avec jardin, terrasse
Noirmoutier-en-l'Île (85)
Exclusif419 800 €Maison3 pièces , 2 chambres
92.00 m²
Avec jardin
Longeville-sur-Mer (85)
Exclusif439 000 €Maison7 pièces , 5 chambres
165.00 m²
Avec jardin
Saint-Hilaire-la-Forêt (85)
442 000 €Maison4 pièces , 3 chambres
120.00 m²
Avec jardin
Saint-Fulgent (85)
Exclusif780 700 €Maison15 pièces , 9 chambres
479.13 m²
Avec jardin, terrasse, garage/box
Talmont-Saint-Hilaire (85)
349 900 €Maison6 pièces , 4 chambres
138.00 m²
Avec jardin
Les Herbiers (85)
162 500 €Maison4 pièces , 2 chambres
71.36 m²
Avec jardin, terrasse, garage/box
- Achat maison
- Pays de la Loire
- Vendée (85)
- La Mothe Achard (85150)
- Vente maison 8 pièces, 195.00m², La Mothe Achard









