Vente maison 6 pièces, 160.00m², Meulan-en-Yvelines
- 160.00m²
- 6 pièces
- 3 chambres
- 2 SDB
Maison Meulan En Yvelines 160 m², 3 chambres
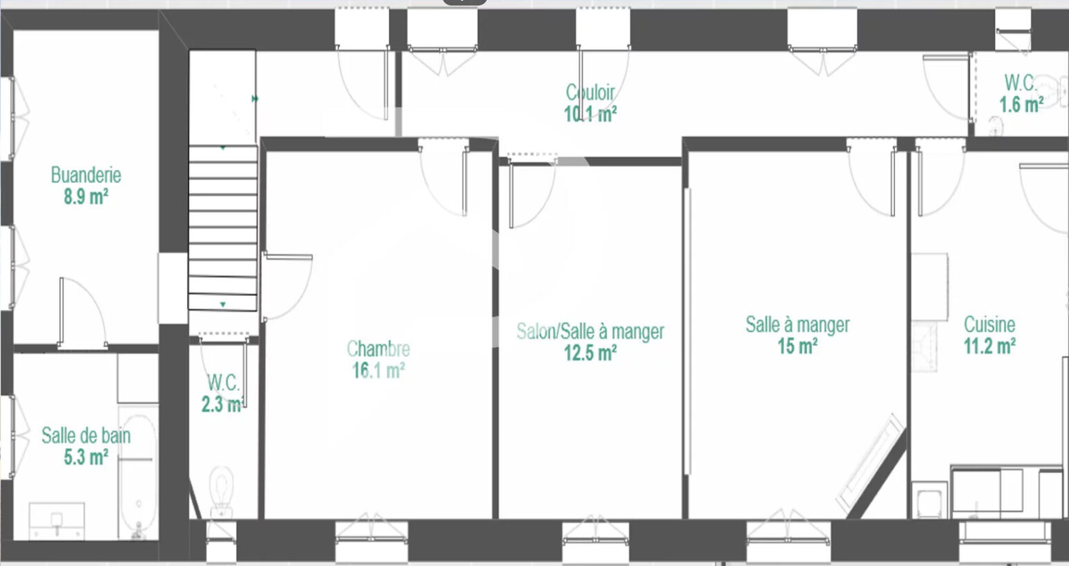
À Meulan-en-Yvelines en limite de Vaux sur Seine, dans un cadre calme et à proximité immédiate de toutes les commodités (gare, écoles, transports), découvrez cette maison datant de 1890 de 160 m² de surface habitable. Elle a su conserver tout le charme de l'ancien avec ses parquets d'époque et ses cheminées, tout en étant entièrement réaménagée. Édifiée sur une parcelle arborée de 3954 m², elle offre un accès privé et direct sur les bords de Seine.
Elle est actuellement divisée en deux habitations :
Le rez-de-chaussée offre : une entrée un salon séjour lumineux donnant sur une terrasse sans vis-à-vis, une cuisine individuelle équipée donnant sur le jardin, une chambre, une salle de bains, un dressing et des toilettes.
Le pallier du premier étage dessert une cuisine, un salon séjour, deux chambres, une salle d'eau avec toilettes
Trois caves offrent de multiples possibilités de rangement. Capacité de stationnement pour 4 véhicules.
Atout : réaménagement facile de la maison en une seule habitation en supprimant une simple cloison.
Pour toute information complémentaire ou pour organiser une visite, veuillez contacter votre agence L'Adresse de Meulan en Yvelines.
Les informations sur les risques auxquels ce bien est exposé sont disponibles sur le site Géorisques : www.georisques.gouv.fr
24830
30Montant estimé des dépenses annuelles d'énergie pour un usage standard :
Entre 2510.00€ et 3440.00€ par an
-
Les essentiels
- 6 pièces
- 160.00 m²
- 3 chambres
- 1 salle de bain
- 1 salle d'eau
-
Intérieur
- Cuisine IndependanteAmenageeEquipee
-
Extérieur
- 4 Parkings
-
Autres
- Construit en 1890
Vous souhaitez visiter la Maison
l'Adresse - BM TRANSACTIONS
78250 Meulan en Yvelines
01 34 92 93 59
Nos honoraires
- l'Adresse - BM TRANSACTIONS
- 2 000 €
- BOILLET-Meulan Laurent
- EVREUX 842 778 938
- EVREUX
- FR10842778938
- CPI 27012019000039057
- CCI PORTES DE NORMANDIE
- PAS DE GARANTIE
- PAS DE GARANTIE
- MCCA 77 RUE DE LOURMEL 75015 PARIS www.mcca-mediation.fr
Mentions légales
Les maisons similaires
Jambville (78)
294 000 €Maison6 pièces , 3 chambres
130.00 m²
Avec jardin, terrasse, garage/box
Les Mureaux (78)
Exclusif169 000 €Maison3 pièces , 2 chambres
38.00 m²
Conflans-Sainte-Honorine (78)
530 000 €Maison7 pièces , 5 chambres
177.00 m²
Avec jardin
Conflans-Sainte-Honorine (78)
239 000 €Maison2 pièces , 2 chambres
70.00 m²
Meulan-en-Yvelines (78)
730 000 €Maison9 pièces , 7 chambres
263.00 m²
Avec jardin, terrasse, garage/box
Les Mureaux (78)
392 000 €Maison10 pièces , 6 chambres
200.00 m²
Avec jardin, terrasse
Meulan-en-Yvelines (78)
331 000 €Maison7 pièces , 5 chambres
121.00 m²
Avec jardin, terrasse
Meulan-en-Yvelines (78)
201 000 €Maison4 pièces , 3 chambres
66.00 m²
- Achat maison
- Île-de-France
- Yvelines (78)
- Meulan-en-Yvelines (78250)
- Vente maison 6 pièces, 160.00m², Meulan-en-Yvelines

















