Vente maison 4 pièces, 90.00m², Nanterre
- 90.00m²
- 4 pièces
- 3 chambres
- 2 SDB
NANTERRE-PUTEAUX/ Avenue Félix Faure - Maison 4 pièces - 3 Extérieurs- 1 Parking
L'Agence L'Adresse Immobilier a le plaisir de vous présenter cette maison familiale, idéalement située Avenue Félix Faure à Nanterre, à deux pas de l'éco-quartier de Puteaux, offrant un cadre de vie à la fois pratique, calme et privilégié.
La maison se situe au sein de la copropriété "VILLA ZENEO", récente (2010), à proximité immédiate des commerces, écoles et transports, un emplacement recherché pour une vie de quartier agréable au quotidien.
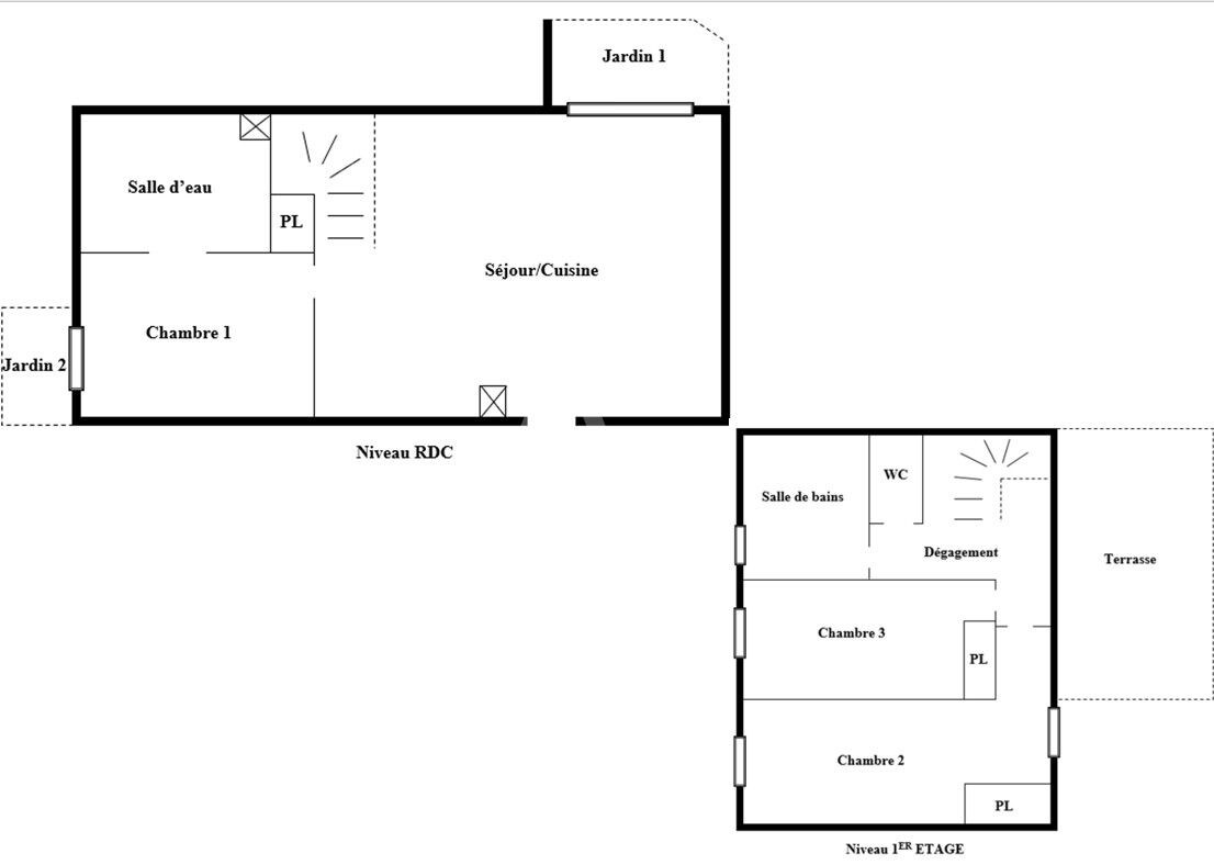
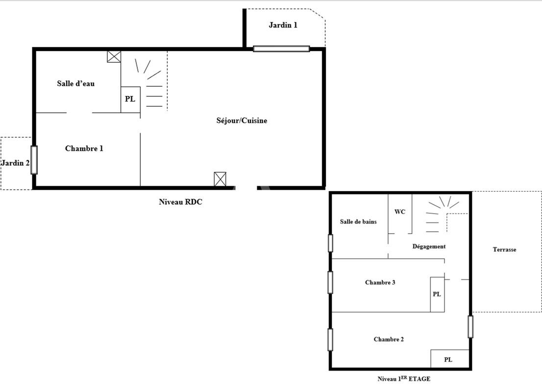
Sur deux plateaux, la maison est agencée de la manière suivante :
Au rez-de-chaussée :
Une entrée indépendante ouverte sur une magnifique cuisine ouverte, entièrement aménagée et équipée, donnant sur une belle pièce de vie lumineuse.
Un espace dinatoire convivial, organisé autour de l'escalier, prolonge naturellement cet espace.
Vous profiterez également d'une première terrasse de 14m² exposée Sud-Ouest, idéale pour les beaux jours.
Ce niveau comprend une première chambre avec accès à un extérieur de 5m², ainsi qu'une salle d'eau avec un toilette.
À l'étage :
Un dégagement, un toillette séparé, une salle de bains avec emplacement pour machine à laver, ainsi que deux grandes chambres confortables.
Un troisième extérieur, le plus spacieux 26m², vient parfaire cet étage et offre un véritable espace de détente supplémentaire.
La maison bénéficie de plusieurs terrasses le tout pour 45m², pour une surface extérieure totale rare sur le secteur, idéale pour recevoir, jardiner ou simplement profiter du calme.
Un parking en sous-sol peut être vendu en sus , avec un accès direct par un escalier privatif, un vrai confort au quotidien pour les maisons.
Un bien rare sur le secteur, alliant modernité, fonctionnalité et qualité de vie, à découvrir sans tarder.
Les informations sur les risques auxquels ce bien est exposé sont disponibles sur le site Géorisques : www.georisques.gouv.fr
Sofian AIT LARBI (EI) Agent commercial - Numéro RSAC : 878266386 - NANTERRE.
2449
9Montant estimé des dépenses annuelles d'énergie pour un usage standard :
Entre 1810.00€ et 2500.00€ par an
-
Les essentiels
- 4 pièces
- 90.00 m²
- 3 chambres
- Ascenseur : Oui
- 1 salle de bain
- 1 salle d'eau
-
Intérieur
- Cuisine Américaine Amenagée Equipée
- Gardien : Non
- Digicode : Oui
-
Extérieur
- 3 Terrasses
- Jardin 0.00 m²
- 1 Parking
-
Copropriété
- Bien en copropriété
- Charges annuelles (ALUR) : 1920.00€
- Pas de procédure en cours
-
Autres
- Etat général : Très bon état
- Fibre : Oui
- Dernier étage : Oui
- Construit en 2010
- Immeuble de 1 étage
Vous souhaitez visiter la Maison
l'Adresse Nanterre
Les maisons similaires
Antony (92)
367 000 €Maison4 pièces , 2 chambres
69.73 m²
Avec jardin, terrasse, garage/box
Suresnes (92)
1 079 000 €Maison6 pièces , 4 chambres
121.46 m²
Avec terrassegarage/box
Chaville (92)
483 900 €Maison4 pièces , 3 chambres
86.00 m²
Antony (92)
714 000 €Maison8 pièces , 6 chambres
158.70 m²
Avec jardin, terrasse, garage/box
Suresnes (92)
Exclusif1 150 000 €Maison7 pièces , 5 chambres
149.00 m²
Avec terrassegarage/box
Antony (92)
288 000 €Maison3 pièces , 1 chambre
43.00 m²
Avec jardin, terrasse
Antony (92)
Exclusif518 000 €Maison5 pièces , 3 chambres
117.00 m²
Avec jardin, terrasse
Suresnes (92)
Exclusif745 000 €Maison4 pièces , 3 chambres
103.00 m²
Avec terrassegarage/box
- Achat maison
- Île-de-France
- Hauts-de-Seine (92)
- Nanterre (92000)
- Vente maison 4 pièces, 90.00m², Nanterre

















