Vente maison 6 pièces, 137.50m², Nantes
- 137.50m²
- 6 pièces
- 4 chambres
- 2 SDB
Maison Familiale. Procé / Zola
NOUVEAUTÉ L'ADRESSE. ENTRE PROCÉ / ZOLA.
Dans une rue recherchée, venez découvrir cette maison de charme datant de 1901, pleine de potentiel et idéalement située.
Elle séduit par son jardin clos de murs en pierre d'environ 200 m², un véritable havre de paix, ainsi que par son garage, parfait pour stationner vélos ou motos.
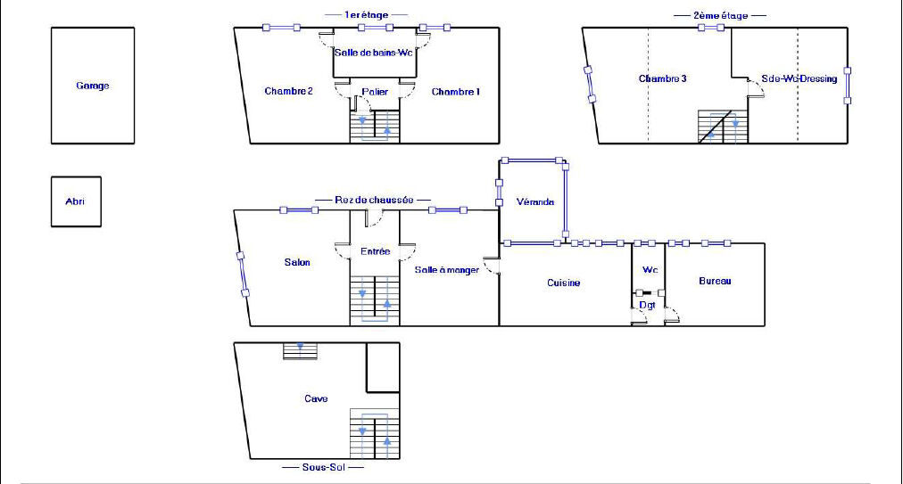
D'une surface de 137m², la maison se compose :
Au rez-de-chaussée : une entrée desservant un salon, une salle à manger, une cuisine ouverte sur la terrasse, un salon d'hiver, un bureau avec son accès indépendant et un WC.
Au 1er étage : un palier distribue deux grandes chambres et une salle de bains commune.
Au 2ème étage : une suite parentale récente avec salle d'eau, WC et dressing.
Un sous-sol d'environ 20 m² complète l'ensemble, idéal pour la chaufferie (chaudière récente) et la lingerie.
Des travaux de rafraîchissement sont à prévoir, mais l'isolation par les toits a déjà été réalisée. Un bien rare sur le secteur, au charme indéniable, offrant un bel emplacement et un beau potentiel à valoriser selon vos goûts.
Contactez nous dès aujourd'hui pour planifier une visite et découvrir ce bien immobilier par vous-même !
Les informations sur les risques auxquels ce bien est exposé sont disponibles sur le site Géorisques : www. georisques. gouv. fr
L'ADRESSE ZOLA by Coudray Lorraine - c'est 4 métiers : Gestion locative, Location, Syndic de Copropriété, Vente - Retrouvez nous sur www.coudraylorraine.fr ou sur www.ladresse-zola.com
Les informations sur les risques auxquels ce bien est exposé sont disponibles sur le site Géorisques : www.georisques.gouv.fr
19843
43Montant estimé des dépenses annuelles d'énergie pour un usage standard :
Entre 2290.00€ et 3150.00€ par an
-
Les essentiels
- 6 pièces
- 137.50 m²
- 4 chambres
- 1 salle de bain
- 1 salle d'eau
-
Intérieur
- Cuisine Indépendante Aménagée
- Interphone : Oui
- 1 Cave
-
Extérieur
- Jardin 330.00 m²
- 1 Garage/box
-
Autres
- Etat général : A Rafraichir
- Construit en 1901
Vous souhaitez visiter la Maison
l'Adresse Zola by Coudray Lorraine
44100 NANTES
02 40 48 57 55
Nos honoraires
- l'Adresse Zola by Coudray Lorraine
- 10000 €
- COUDRAY Lorraine
- B822297917
- 44012016000014067
- CCI NANTES
Mentions légales
Les maisons similaires
Plessé (44)
155 000 €Maison8 pièces
110.00 m²
Avec jardin
Nantes (44)
Exclusif399 000 €Maison4 pièces , 3 chambres
101.00 m²
Saint-Étienne-de-Mer-Morte (44)
Exclusif327 000 €Maison5 pièces , 4 chambres
152.00 m²
Avec jardin
Machecoul-Saint-Même (44)
619 500 €Maison7 pièces , 4 chambres
172.03 m²
Avec jardin
Saint-Herblain (44)
493 500 €Maison6 pièces , 4 chambres
156.95 m²
Avec jardin, terrasse
Pornic (44)
438 300 €Maison5 pièces , 3 chambres
168.00 m²
Avec jardin, garage/box
Saint-Herblain (44)
Exclusif249 100 €Maison5 pièces , 3 chambres
83.30 m²
Avec jardin, terrasse, garage/box
Orvault (44)
499 000 €Maison5 pièces , 3 chambres
126.00 m²
Avec jardin, terrasse
- Achat maison
- Pays de la Loire
- Loire-Atlantique (44)
- Nantes (44100)
- Vente maison 6 pièces, 137.50m², Nantes











