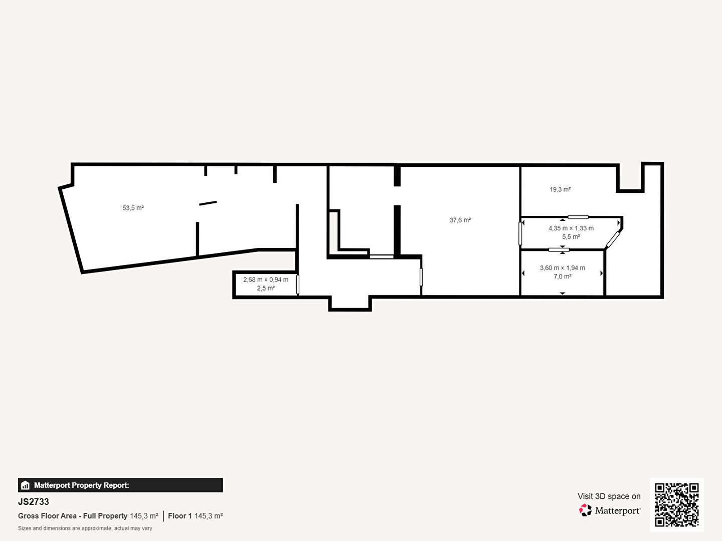
Vente murs 6 pièces, 129.00m², Carcassonne
- 129.00m²
- 6 pièces
Murs commerciaux à CARCASSONNE
A CARCASSONNE, vente de murs commerciaux idéalement situés à proximité immédiate du centre-ville. Ce grand local d'un peu plus de 125 m², anciennement dédié à des activités d'esthétique et de coiffure, offre un espace moderne, lumineux et parfaitement entretenu, ne nécessitant aucun travaux. Fonctionnel et bien agencé, il dispose d'une vitrine en pignon sur rue, garantissant une excellente visibilité et une attractivité naturelle pour toute activité. La présence de stationnement à proximité vient compléter cet emplacement de qualité, rare sur le secteur. Ce bien s'adresse autant aux professionnels souhaitant y installer leur propre activité, qu'à ceux désireux de partager les lieux avec une activité complémentaire, ou encore aux investisseurs cherchant un placement sûr dans des murs commerciaux de belle facture. Qu'il s'agisse d'un projet professionnel, d'une association d'activités ou d'un investissement patrimonial, ce local coche toutes les cases : visibilité, accessibilité, confort et rentabilité
Jonathan : " Un local idéal, un usage mixte possible ! "
"Chers confrères, nous partageons tous nos biens, vous avez un client ? Nous avons l'Adresse ! Contactez-nous !"
Les informations sur les risques auxquels ce bien est exposé sont disponibles sur le site Géorisques : www.georisques.gouv.fr
Jonathan SOUM (EI) Consultant - Numéro RSAC : 845132646 - CARCASSONNE.


-
Les essentiels
- 6 pièces
- 129.00 m²
-
Intérieur
- Cuisine Amenagée
-
Autres
- Etat général : Très bon état
- Fibre : Oui
- Construit en 1900
Vous souhaitez visiter le Murs
l'Adresse - Carcassonne
11000 CARCASSONNE
04 68 47 22 22
Nos honoraires
- l'Adresse - Carcassonne
- 4000
- BUREAU DU COLOMBIER Yann
- CARCASSONNE - 499 015 329
- CARCASSONNE
- FR88499015329
- 1101 2019 000 042 914
- CCI de l'AUDE 3 Boulevard Camille Pelletan, 11890 Carcassonne
- GALIAN
- 240000
- 89 rue de la Boetie 75 008 PARIS
- Médiateur du Commerce Coopératif et Associé (MCCA) FCA - 77, rue de Lourmel - 75015 Paris WWW.MCCA-MEDIATION.FR
Mentions légales
Les murs similaires
- Achat murs
- Occitanie
- Aude (11)
- Carcassonne (11000)
- Vente murs 6 pièces, 129.00m², Carcassonne









