Revenir aux résultats
Réf. de l'annonce : 14349599 / 852
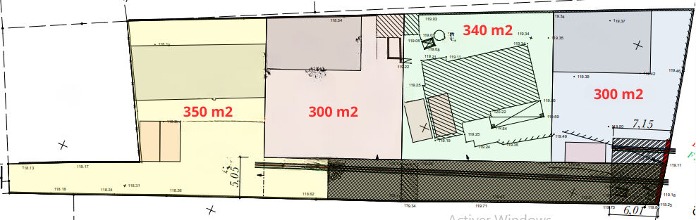
Vente terrain, 350.00m², Beauvoisin
Honoraires à la charge du vendeur
113 000 €
- 350.00m²
Beauvoisin : Terrain constructible de 350 m2 entièrement viabilisé
BELLE OPPORTUNITE A SAISIR RAPIDEMENT !
Terrain constructible de 350 m2 entièrement viabilisé sur la commune de Beauvoisin dans un quartier calme et bien placé.
Livré avec permis de construire
Prix de vente : 113 000 €
Prix bas pour le secteur, il ne faudra pas tarder à vous positionner !
Les informations sur les risques auxquels ce bien est exposé sont disponibles sur le site Géorisques : www.georisques.gouv.fr
Bilan energetique


Caractéristiques Terrain
-
Les essentiels
- 350.00 m²
Vous souhaitez visiter le Terrain
Prenez rendez-vous avec l'agence.
Agence immobilière
l'Adresse - IMMO VAUVERT
l'Adresse - IMMO VAUVERT
145 Avenue de la Condamine Résidence le Valvert
30600 VAUVERT
04 66 53 11 02
Nos honoraires
Mentions légales
30600 VAUVERT
04 66 53 11 02
Nos honoraires
Mentions légales
- l'Adresse - IMMO VAUVERT
- 5 000 €
- FUSTER Dominique
- Nîmes 810 123 687
- CPI 3002 2018 000 028 375
- CCI DU GARD
- SOCAF
- 110 000 €
Mentions légales
- Achat terrain
- Occitanie
- Gard (30)
- Beauvoisin (30640)
- Vente terrain pièce, 350.00m², Beauvoisin

