Revenir aux résultats
Réf. de l'annonce : 14014023 / 10141651
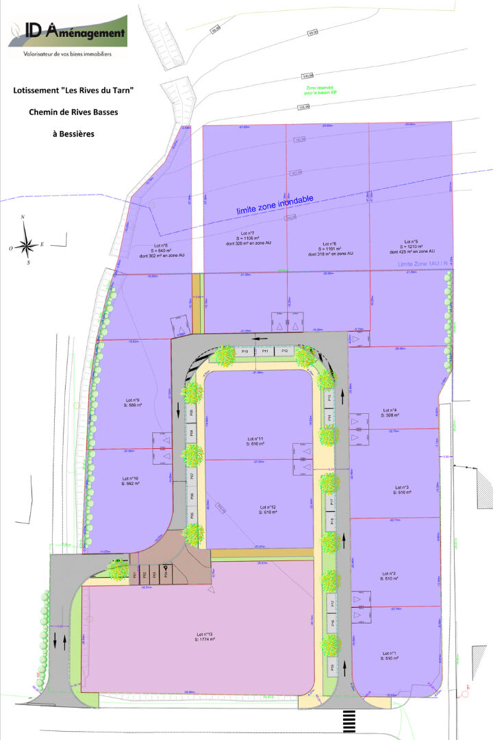
Vente terrain, 814.00m², Bessières
Honoraires à la charge de l'acquéreur : 6,21 % TTC | 94 000€ honoraires inclus | 88 500€ hors honoraires
94 000 €
- 814.00m²
Terrain constructible - Lotissement 31660 Bessières
Votre agence L'Adresse Les Portes De l'Immobilier vous présente à la vente un terrain d'environ 814 m² dans un nouveau lotissement à proximité immédiate de toutes les commodités, sur les rives du Tarn.
Le terrain est viabilisé et bénéficie d'une surface constructible de 215m² au sol.
Libre de constructeur, vous pourrez ainsi bâtir la maison de vos rêves au sein d'un village dynamique, aux portes de Toulouse.
lotissement livré
Vous souhaitez en savoir plus? Contactez nous directement au 05.61.11.53.11.
Les informations sur les risques auxquels ce bien est exposé sont disponibles sur le site Géorisques : www.georisques.gouv.fr
Bilan energetique


Caractéristiques Terrain
-
Les essentiels
- 814.00 m²
Vous souhaitez visiter le Terrain
Prenez rendez-vous avec l'agence.
Agence immobilière
l'Adresse LES PORTES DE L'IMMOBILIER BESSIERES
l'Adresse LES PORTES DE L'IMMOBILIER BESSIERES
43 bd des Allées
31660 BESSIERES
Transaction :
05 61 11 53 11
Location :
05 61 11 53 11
Nos honoraires
Mentions légales
31660 BESSIERES
Transaction :
05 61 11 53 11
Location :
05 61 11 53 11
Nos honoraires
Mentions légales
- l'Adresse LES PORTES DE L'IMMOBILIER BESSIERES
- 1000
- DOU Delphine
- 804307502 R.C.S.
- TOULOUSE
- 31012018000039221
- CCI TOULOUSE
- GALIAN
- 120000
- MCCA 77 rue de Lourmel 75015 PARIS
Mentions légales
Les terrains similaires
Le Faget (31)
99 000 €Terrain6000.00 m²
Labarthe-sur-Lèze (31)
139 410 €Terrain977.00 m²
Aussonne (31)
150 000 €Terrain566.00 m²
Castelginest (31)
136 500 €Terrain372.00 m²
Plaisance-du-Touch (31)
220 000 €Terrain650.00 m²
Aussonne (31)
Exclusif99 000 €Terrain535.00 m²
Bessières (31)
90 700 €Terrain585.00 m²
Castelginest (31)
159 900 €Terrain541.00 m²
- Achat terrain
- Occitanie
- Haute-Garonne (31)
- Bessières (31660)
- Vente terrain pièce, 814.00m², Bessières

