Vente terrain, 214.00m², Bretignolles-sur-Mer
- 214.00m²
Terrain Bretignolles Sur Mer 250 m2
BRETIGNOLLES SUR MER,
La mer à la campagne
Il n'attend plus que vous, ce terrain constructible d'une superficie de 214m² en zone UC à 1,5km de la mer vous ravira de part sa situation géographique.
Au sein d'un quartier très calme ce terrain est libre de constructeur ,non viabilisé (viabilité en bord de rue).
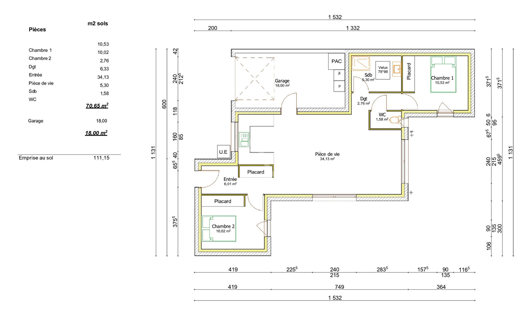
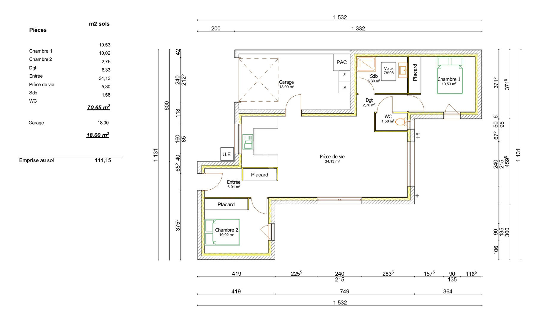
Dimensions: façade avant environ 18mètres, façade arrière environ 21mètres le tout sur une profondeur de 13mètres.
Idéal pour y construire votre résidence principale ou secondaire en bord de mer.
Etude réalisée par un constructeur local pour l'implantation d'une maison, pour plus amples renseignements nous contacter.
REF:800
Honoraires à charge du vendeur.
Non soumis au DPE.
Les informations sur les risques auxquels ce bien est exposé sont disponibles sur le site Géorisques : www.georisques.gouv.fr
Les informations sur les risques auxquels ce bien est exposé sont disponibles sur le site Géorisques : www.georisques.gouv.fr


-
Les essentiels
- 214.00 m²
Vous souhaitez visiter le Terrain
l'Adresse - Brétignolles sur mer
85470 BRETIGNOLLES SUR MER
02 51 90 96 96
Nos honoraires
- l'Adresse - Brétignolles sur mer
- 2668 €
- BOUVIER Sandrine
- LA ROCHE SUR YON 839887387
- 85012018000034449
- La CCI de la VENDÉE
- LA MEDIATION DU COMMERCE COOPERATIF ET ASSOCIE 77 rue de Lourmel 75015 PARIS www.mcca-mediation.fr
Mentions légales
Les terrains similaires
Brem-sur-Mer (85)
Exclusif120 000 €Terrain403.00 m²
Barbâtre (85)
Exclusif435 400 €Terrain2745.00 m²
La Guérinière (85)
104 200 €Terrain667.00 m²
Saint-Jean-de-Monts (85)
164 375 €Terrain1145.00 m²
Le Champ-Saint-Père (85)
Exclusif65 900 €Terrain759.00 m²
Longeville-sur-Mer (85)
Exclusif125 500 €Terrain563.00 m²
Beauvoir-sur-Mer (85)
70 000 €Terrain534.00 m²
Saint-Hilaire-de-Riez (85)
97 000 €Terrain2 pièces , 1 chambre
30.00 m²
- Achat terrain
- Pays de la Loire
- Vendée (85)
- Bretignolles-sur-Mer (85470)
- Vente terrain pièce, 214.00m², Bretignolles-sur-Mer






