Revenir aux résultats
Réf. de l'annonce : 14232638 / 36600
Exclusif
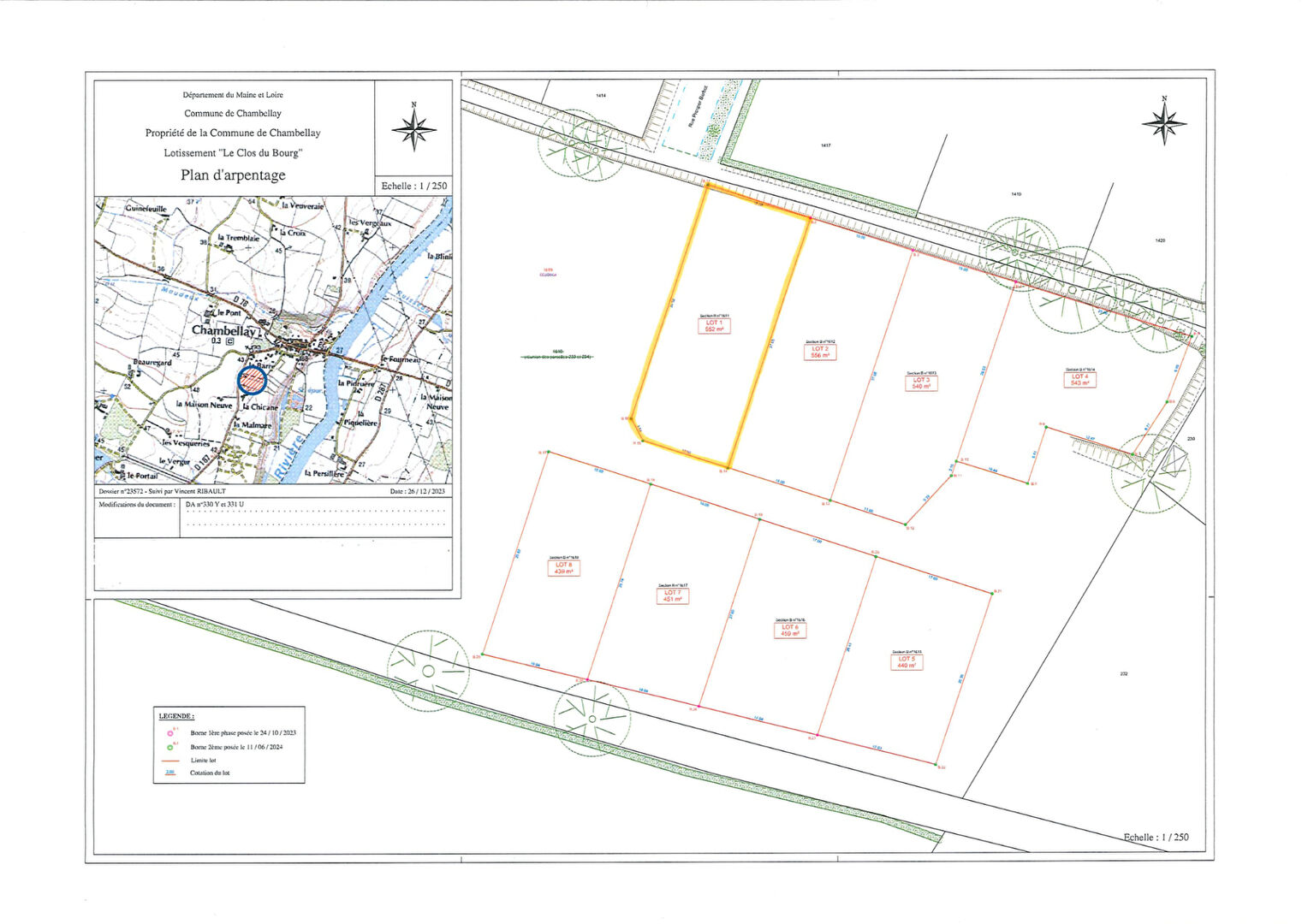
Vente terrain, 552.00m², Chambellay
Honoraires à la charge de l'acquéreur : 9,06 % TTC | 60 202€ honoraires inclus | 55 202€ hors honoraires | Taxe foncière : 0,00€
60 202 €
- 552.00m²
À VENDRE ? Terrain à Chambellay
Dans une charmante commune bordée par la Mayenne, à seulement 10 minutes du Lion d'Angers, profitez de cette belle opportunité :
Terrain de 552 m² situé dans un petit lotissement calme et agréable.
Libre de constructeu et Terrain viabilisé.
Idéal pour concrétiser votre projet de construction.
Ref: 36600 | Nous soumis au DPE
Prix : 60 202.21 € HAI
Honoraires à charge acquéreur
Les informations sur les risques auxquels ce bien est exposé sont disponibles sur le site Géorisques : www.georisques.gouv.fr
Bilan energetique


Caractéristiques Terrain
-
Les essentiels
- 552.00 m²
Vous souhaitez visiter le Terrain
Prenez rendez-vous avec l'agence.
Agence immobilière
l'Adresse Le Lion d'Angers
l'Adresse Le Lion d'Angers
8 rue de Général Leclerc
49220 LE LION D'ANGERS
02 41 95 17 17
Nos honoraires
Mentions légales
49220 LE LION D'ANGERS
02 41 95 17 17
Nos honoraires
Mentions légales
- l'Adresse Le Lion d'Angers
- 500 000 €
- BERNARD Thierry
- 480 628 593 ANGERS
- CPI 4901 2017 000 018 268
- CCI MAINE ET LOIRE
- GALLIAN
- Activité Transaction : 1 000 000 € Activité Gestion immobilière 2 000 000€
- 89 rue de la Boétie - 75008 PARIS
- Nom du médiateur : L'Association Nationale des Médiateurs (ANM) Adresse postale du médiateur : 62 rue Tiquetonne 75002 PARIS Site internet du médiateur : www.anm-conso.com
Mentions légales
Les terrains similaires
Doué-en-Anjou (49)
Exclusif20 400 €Terrain308.00 m²
Chambellay (49)
Exclusif60 602 €Terrain556.00 m²
Miré (49)
317 000 €Terrain, 2 chambres
13437.00 m²
Avec terrasse
La Ménitré (49)
60 200 €Terrain460.00 m²
Beaupréau-en-Mauges (49)
55 490 €Terrain500.00 m²
Saint-Pierre-Montlimart (49)
Exclusif72 980 €Terrain1280.00 m²
Beaupréau-en-Mauges (49)
55 490 €Terrain432.00 m²
Montrevault-sur-Èvre (49)
Exclusif38 990 €Terrain760.00 m²
- Achat terrain
- Pays de la Loire
- Maine-et-Loire (49)
- Chambellay (49220)
- Vente terrain pièce, 552.00m², Chambellay

