Revenir aux résultats
Réf. de l'annonce : 13581659 / 351
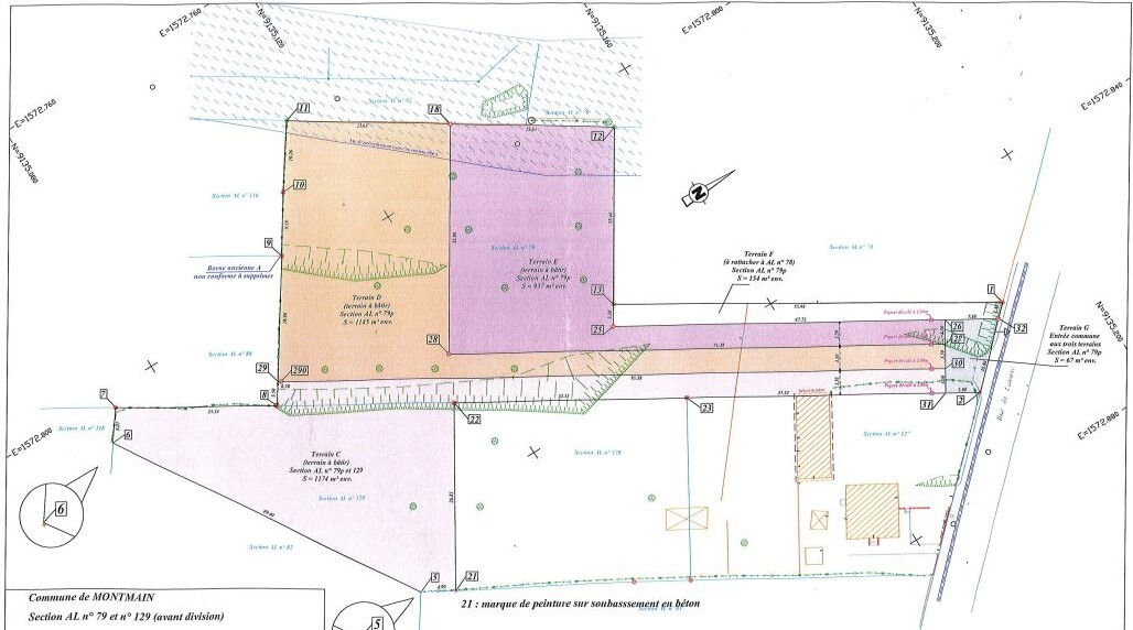
Vente terrain, 1145.00m², Montmain
Honoraires à la charge du vendeur
99 500 €
- 1145.00m²
Terrains Montmain
Sur la commune de MONTMAIN !
Trois parcelles de terrain à bâtir viabilisés dans un secteur calme, libre de tous constructeurs.
A voir au plus vite !
Contactez nous au 02.27.76.25.25
Les informations sur les risques auxquels ce bien est exposé sont disponibles sur le site Géorisques : www.georisques.gouv.fr.
Nous rappelons que conformément à l'article l.561-5 du code monétaire et financier, la pièce d'identité de tous les visiteurs sera demandée avant la visite.
Les informations sur les risques auxquels ce bien est exposé sont disponibles sur le site Géorisques : www.georisques.gouv.fr
Bilan energetique


Caractéristiques Terrain
-
Les essentiels
- 1145.00 m²
Vous souhaitez visiter le Terrain
Prenez rendez-vous avec l'agence.
Agence immobilière
l'Adresse -Le Mesnil Esnard
l'Adresse -Le Mesnil Esnard
48 ROUTE DE PARIS
76240 LE MESNIL ESNARD
02 27 76 25 25
Nos honoraires
Mentions légales
76240 LE MESNIL ESNARD
02 27 76 25 25
Nos honoraires
Mentions légales
- l'Adresse -Le Mesnil Esnard
- 2000
- BOILLET-Mesnil Laurent
- EVREUX 812825602
- EVREUX
- 27012015000000771
- CCI PORTES DE NORMANDIE
- PAS DE GARANTIE
- PAS DE GARANTIE
- MCCA 77 RUE DE LOURMEL 75015 PARIS www.mcca-mediation.fr
Mentions légales
Les terrains similaires
Gournay-en-Bray (76)
65 000 €Terrain1777.00 m²
Le Mesnil-Esnard (76)
Exclusif260 000 €Terrain900.00 m²
Fresne-le-Plan (76)
79 000 €Terrain529.00 m²
Gournay-en-Bray (76)
416 000 €Terrain15121.00 m²
Gournay-en-Bray (76)
54 500 €Terrain760.00 m²
Fresne-le-Plan (76)
83 000 €Terrain599.00 m²
- Achat terrain
- Normandie
- Seine-Maritime (76)
- Montmain (76520)
- Vente terrain pièce, 1145.00m², Montmain





