Revenir aux résultats
Réf. de l'annonce : 9192297 / 47
Exclusif
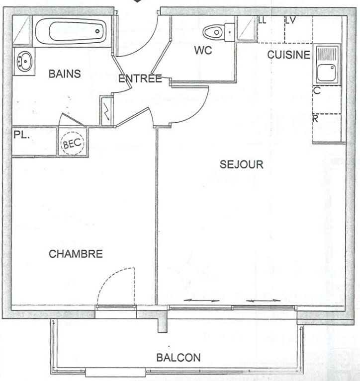
Location appartement 2 pièces, 43.45m², Nantes
533 € de dépôt de garantie | Charges : 60 € | Honoraires 448.01 TTC à la charge du locataire (dont 129.00€ d'honoraires d'état des lieux) | Taxe foncière : 130,00€
593 € / mois charges comprises
- 43.45m²
- 2 pièces
- 1 chambre
- 1 SDB
Appartement NANTES 2 pièce(s) 44 m2
Nantes, Route de la Chapelle.
T2 avec terrasse comprenant : une entrée, un salon-séjour avec une cuisine aménage (évier et meuble sous évier), une chambre avec placard et une salle de bain et un WC. Une place de parking est disponible avec ce logement.
A 3 minutes à pieds du tramway ligne 2 (arrêt Chêne des Anglais) et proche des commerces (Leclerc Orvault)
Disponible à partir du 08 décembre 2025 !
LOYER : 533.35€
CHARGES : 60€ (entretien des parties communes et entretien de la chaudière)
HONORAIRES : 448.01€ dont 129€ pour l'état des lieux d'entrée
Référence : BS47
Les informations sur les risques auxquels ce bien est exposé sont disponibles sur le site Géorisques : www.georisques.gouv.fr
Bilan energetique
1715
5
Diagnostic réalisé le : 05/04/2024
Montant estimé des dépenses annuelles d'énergie pour un usage standard :
Entre 500.00€ et 730.00€ par an
Montant estimé des dépenses annuelles d'énergie pour un usage standard :
Entre 500.00€ et 730.00€ par an
Caractéristiques Appartement
-
Les essentiels
- 2 pièces
- 43.45 m²
- 1 chambre
- Ascenseur : Oui
- 1 salle de bain
-
Intérieur
- Cuisine Amenagée
-
Extérieur
- 1 Parking
-
Copropriété
- Bien en copropriété
-
Autres
- Etat général : Bon Etat
- Fibre : Oui
- Etage 1
- Construit en 2011
- Immeuble de 3 étages
Vous souhaitez visiter l'Appartement
Prenez rendez-vous avec l'agence.
Agence immobilière
l'Adresse L'ATELIER IMMOBILIER
l'Adresse L'ATELIER IMMOBILIER
17 rue des Grands Patis
44300
44300 NANTES
Transaction :
02 40 52 25 00
Location :
02 40 52 25 00
Nos honoraires
Mentions légales
44300
44300 NANTES
Transaction :
02 40 52 25 00
Location :
02 40 52 25 00
Nos honoraires
Mentions légales
- l'Adresse L'ATELIER IMMOBILIER
- 15 000 €
- GUINEHEUX Nancy
- NANTES B 491 544 714
- 4401 2016 000 008 657
- CCI NANTES SAINT NAZAIRE
Mentions légales
Les appartements similaires
Rezé (44)
850 € / mois ccAppartement3 pièces , 2 chambres
61.00 m²
Avec balcongarage/box
Nantes (44)
720 € / mois ccAppartement2 pièces , 1 chambre
46.00 m²
Saint-Nazaire (44)
601 € / mois ccAppartement2 pièces , 1 chambre
43.30 m²
Avec balcon
Saint-Nazaire (44)
620 € / mois ccAppartement2 pièces , 1 chambre
59.38 m²
Meublé
Carquefou (44)
Exclusif624 € / mois ccAppartement2 pièces , 1 chambre
59.68 m²
Avec jardin
Saint-Nazaire (44)
755 € / mois ccAppartement2 pièces , 1 chambre
43.62 m²
Plessé (44)
Exclusif600 € / mois ccAppartement3 pièces , 2 chambres
72.92 m²
Treffieux (44)
550 € / mois ccAppartement2 pièces , 1 chambre
53.89 m²
- Location appartement
- Pays de la Loire
- Loire-Atlantique (44)
- Nantes (44300)
- Location appartement 2 pièces, 43.45m², Nantes






