Location maison 6 pièces, 150.00m², Arcueil
- 150.00m²
- 6 pièces
- 4 chambres
- 1 SDB
- Meublé
Maison meublé - balcon - terrasse - jardin
Maison meublée 4 chambres avec jardin - Arcueil (150 m², terrain 300 m²)
À louer : belle maison familiale meublée, située dans un quartier calme et recherché d'Arcueil, offrant 150 m² habitables sur un terrain de 300 m².
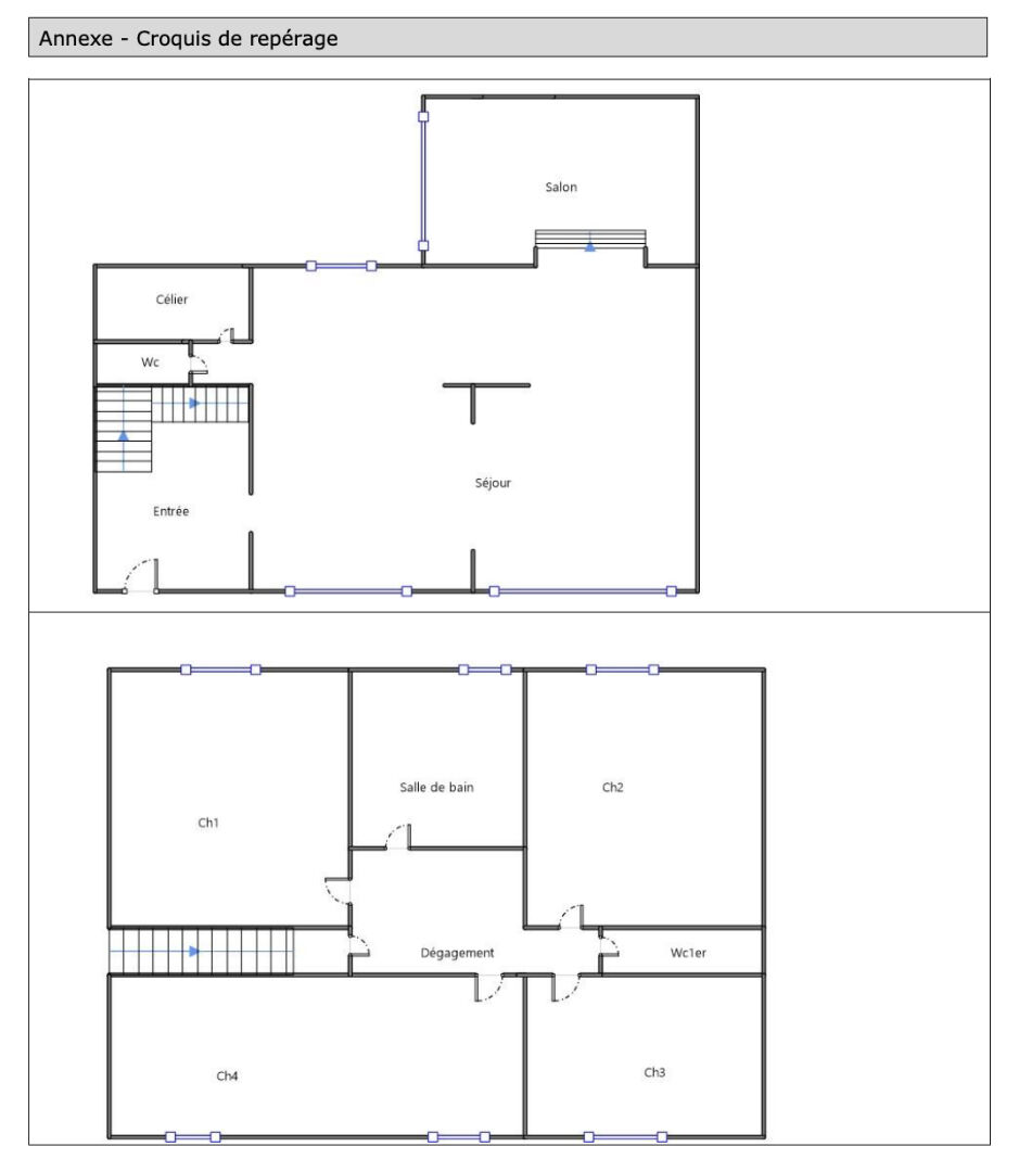
Cette maison lumineuse et pleine de charme se compose de :
4 chambres, dont une suite parentale avec balcon privatif,
une spacieuse pièce de vie avec salon,
une salle à manger aménagée dans une véranda agréable en toute saison,
une cuisine ouverte sur mesure, réalisée récemment avec des matériaux nobles (bois massif, plan de travail en quartz), entièrement équipée,
1 salle de bain et 2 WC séparés (un à chaque étage).
À l'extérieur, profitez d'un jardin arboré avec arbres fruitiers, d'une terrasse, d'une pergola et d'un espace gazonné idéal pour les enfants.
La maison, répartie sur deux niveaux, allie confort, élégance et fonctionnalité dans un environnement paisible.
Transports et commodités
À 2 minutes à pied d'un arrêt de bus menant directement à Porte d'Italie / Ligne 14,
À 13 minutes à pied du métro,
Proximité immédiate , écoles et services.
Disponible à partir du 15 novembre
Loyer : 2 800 € / mois
Les informations sur les risques auxquels ce bien est exposé sont disponibles sur le site Géorisques : www.georisques.gouv.fr
1886
6-
Les essentiels
- 6 pièces
- 150.00 m²
- 4 chambres
- 1 salle de bain
-
Intérieur
- Meublé
- Cuisine AmenageeEquipee
-
Extérieur
- 1 Balcon
- 1 Parking
-
Autres
- Immeuble de 1 étage
Vous souhaitez visiter la Maison
l'Adresse - Kremlin
94270 Le Kremlin-Bicêtre
Transaction :
01 49 59 33 60
Location :
07 88 21 35 72
Nos honoraires
- l'Adresse - Kremlin
- 10 000 €
- ZINEDDAINE Hanane
- Creteil B 808 080 717
- CPI 94012019000040456
- CCI Paris-Ile de France
Mentions légales
Les maisons similaires
- Location maison
- Île-de-France
- Val-de-Marne (94)
- Arcueil (94110)
- Location maison 6 pièces, 150.00m², Arcueil













