Vente appartement 3 pièces, 59.98m², Avrillé
- 59.98m²
- 3 pièces
- 2 chambres
- 1 SDB
A VENDRE Appartement de type 3 avec jardin privatif sur AVRILLE
Situé à quelques centaines de mètres du coeur d'Avrillé, ce programme immobilier neuf bénéficie d'un emplacement attractif. Un atout majeur en termes de mobilité : le tramway, au pied de la résidence, facilite l'accès rapide à l'A11. Ce programme conforme à la norme RE 2020 offre de magnifiques espaces verts communs, incluant une aire de jeux pour enfants et un verger. L'arrêt de tramway "Bois du Roy", situé au pied de la résidence, permet de rejoindre le centre d'Angers en 20 minutes. Un ensemble de commerces de proximité, tels que boulangerie, boucherie, poste et supermarché, se trouve dans un rayon de 500 mètres.
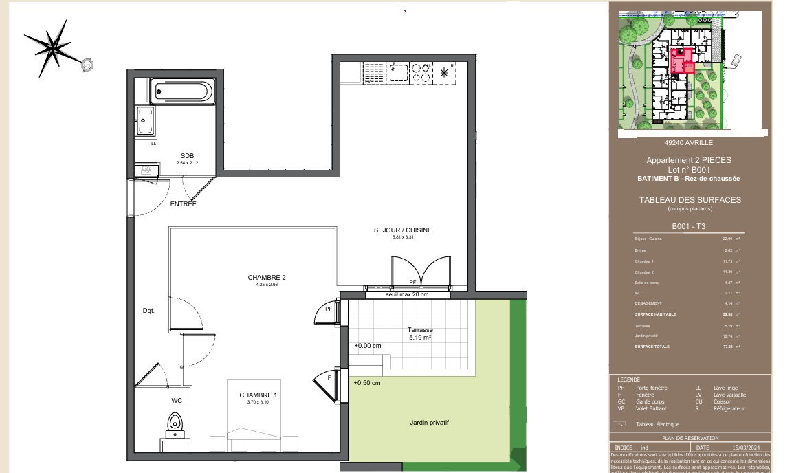
A VENDRE Type T3 Neuf de 59,98m² comprenant un séjour cuisine de 22,90m² ouvert sur terrasse de 5,19m² prolongé d'un jardin privatif de 12,74m² exposée Sud, deux chambres de 11.30m² et 11,79m² et une salle de bain de 4,87m² et WC séparé . Une place de parking privative et sécurisée complète les lieux le tout autour d'un coeur d'ilot entièrement arboré et paysagé.
idéal investisseur ou Résidence principale
Label Energie RE2020 norme PMR (personne à mobilité réduite)
Prix: 261 700€ TTC ( +2,5% frais de notaire réduits)
(Prix direct promoteur)
REF: 31666TilB001
Informations auprès de Gwénaëlle GROU au 07 72 41 01 29, spécialiste Neuf Centre-ville d'Angers, quartiers de la Gare, la Madeleine, Doutre, Lafayette, Visitation, place du lycée, Quinconce, Saint Léonard, Jeanne d'Arc ,Lac de Maine, Belle-beille, Avrillé, Saint Barthélemy ... pour trouver votre solution immobilière en Résidence principale ou secondaire, LMNP, Location, Gestion immobilière.
"Les informations sur les risques auxquels ce bien est exposé sont disponibles sur le site Géorisques : www.georisques.gouv.fr"
Les informations sur les risques auxquels ce bien est exposé sont disponibles sur le site Géorisques : www.georisques.gouv.fr


-
Les essentiels
- 3 pièces
- 59.98 m²
- 2 chambres
- Ascenseur : Oui
- Accès PMR : Oui
- 1 salle de bain
-
Intérieur
- Cuisine Ouverte
- Visiophone : Oui
-
Extérieur
- 1 Parking
-
Copropriété
- Bien en copropriété
- 108 lots
- Charges annuelles (ALUR) : 0.00€
- Pas de procédure en cours
-
Autres
- Etat général : Excellent
- Rez de chaussée : Oui
- Immeuble de 4 étages
Vous souhaitez visiter l'Appartement
l'Adresse Place du Lycée
49100 ANGERS
02 41 05 63 19
Nos honoraires
- l'Adresse Place du Lycée
- 500 000€
- BERNARD Thierry
- 480 628 593 ANGERS
- CPI 4901 2017 000 018 268
- CCI MAINE ET LOIRE
- GALLIAN
- Activité Transaction : 1 000 000 € Activité Gestion immobilière 2 000 000€
- 89 rue de la Boétie - 75008 PARIS
- Nom du médiateur : L'Association Nationale des Médiateurs (ANM) Adresse postale du médiateur : 62 rue Tiquetonne 75002 PARIS Site internet du médiateur : www.anm-conso.com
Mentions légales
Les appartements similaires
Angers (49)
266 000 €Appartement3 pièces , 2 chambres
59.74 m²
Avec terrasse
Angers (49)
179 900 €Appartement2 pièces , 1 chambre
38.00 m²
Avec terrasse
Chalonnes-sur-Loire (49)
225 000 €Appartement3 pièces , 2 chambres
58.04 m²
Avec balcon
Angers (49)
312 000 €Appartement3 pièces , 2 chambres
65.53 m²
Avec balcon
Cholet (49)
Exclusif119 400 €Appartement3 pièces , 2 chambres
54.00 m²
Avec balcon
Angers (49)
309 000 €Appartement5 pièces , 4 chambres
96.10 m²
Avec balcon
Angers (49)
237 300 €Appartement2 pièces , 1 chambre
41.43 m²
Avec balcon
Angers (49)
198 000 €Appartement3 pièces , 2 chambres
61.70 m²
Avec terrasse
- Achat appartement
- Pays de la Loire
- Maine-et-Loire (49)
- Avrillé (49240)
- Vente appartement 3 pièces, 59.98m², Avrillé



