Vente appartement 2 pièces, 41.57m², Avrillé
- 41.57m²
- 2 pièces
- 1 chambre
- 1 SDB
A VENDRE T2 avec balcon à Avrillé - Résidence récente
Dans un quartier résidentiel calme, cette résidence offre un emplacement privilégié à quelques minutes du centre-ville d'Avrillé et à proximité immédiate de la ligne de tramway Plateau Mayenne, facilitant l'accès à Angers, aux universités et aux pôles d'activité.
Les commerces du Bois du Roy sont accessibles à 10 minutes à pied, tout comme les écoles de proximité. La résidence propose une diversité de logements, dont des maisons avec jardins privatifs et stationnements individuels, organisés autour d'un coeur d'îlot végétalisé favorisant un cadre de vie paisible.
Parkings couverts en rez-de-chaussée.
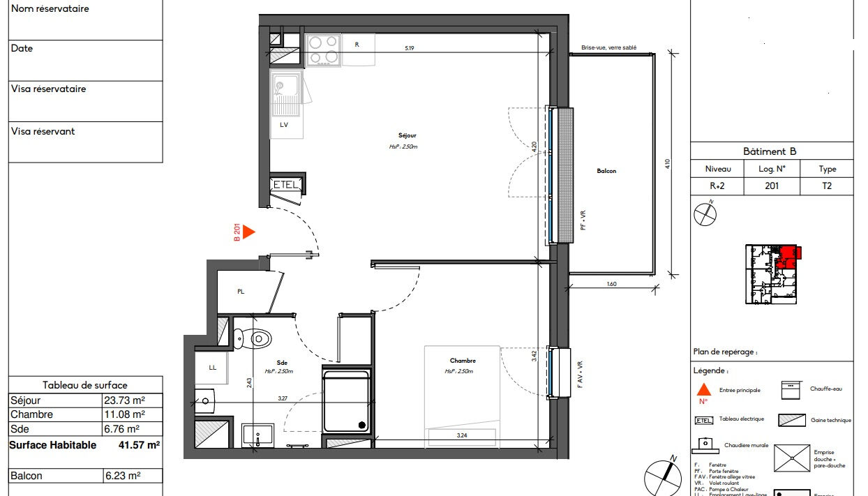
Appartement T2 de 41,57 m² situé au 2? étage d'une résidence neuve. Il comprend un séjour avec cuisine ouverte exposé nord-est, donnant sur
Idéal résidence principale ou investissement.
Prix: 209 900€ TTC ( +2,5% frais de notaire réduits)
(Prix direct promoteur)
REF: 35215KenB201
Informations auprès de Gwénaëlle GROU au 07 72 41 01 29, spécialiste Neuf Centre-ville d'Angers, quartiers de la Gare, la Madeleine, Doutre, Lafayette, Visitation, place du lycée, Quinconce, Saint Léonard, Jeanne d'Arc ,Lac de Maine, Belle-beille, Avrillé, Saint Barthélemy ... pour trouver votre solution immobilière en Résidence principale ou secondaire, LMNP, Location, Gestion immobilière.
"Les informations sur les risques auxquels ce bien est exposé sont disponibles sur le site Géorisques : www.georisques.gouv.fr"
Les informations sur les risques auxquels ce bien est exposé sont disponibles sur le site Géorisques : www.georisques.gouv.fr


-
Les essentiels
- 2 pièces
- 41.57 m²
- 1 chambre
- Ascenseur : Oui
- Accès PMR : Oui
- 1 salle de bain
-
Intérieur
- Cuisine Ouverte
- Visiophone : Oui
-
Extérieur
- 1 Balcon
- 1 Parking
-
Copropriété
- Bien en copropriété
- 47 lots
- Charges annuelles (ALUR) : 0.00€
- Pas de procédure en cours
-
Autres
- Etat général : Excellent
- Fibre : Oui
- Etage 2
- Construit en 2026
- Immeuble de 3 étages
Vous souhaitez visiter l'Appartement
l'Adresse Place du Lycée
49100 ANGERS
02 41 05 63 19
Nos honoraires
- l'Adresse Place du Lycée
- 500 000€
- BERNARD Thierry
- 480 628 593 ANGERS
- CPI 4901 2017 000 018 268
- CCI MAINE ET LOIRE
- GALLIAN
- Activité Transaction : 1 000 000 € Activité Gestion immobilière 2 000 000€
- 89 rue de la Boétie - 75008 PARIS
- Nom du médiateur : L'Association Nationale des Médiateurs (ANM) Adresse postale du médiateur : 62 rue Tiquetonne 75002 PARIS Site internet du médiateur : www.anm-conso.com
Mentions légales
Les appartements similaires
Chalonnes-sur-Loire (49)
Exclusif99 000 €Appartement4 pièces , 2 chambres
49.09 m²
Saint-Barthélemy-d'Anjou (49)
159 900 €Appartement2 pièces , 1 chambre
44.39 m²
Avec balcon
Saumur (49)
Exclusif99 100 €Appartement3 pièces , 2 chambres
50.00 m²
Angers (49)
198 000 €Appartement3 pièces , 2 chambres
61.70 m²
Avec terrasse
Saumur (49)
Exclusif99 100 €Appartement2 pièces , 1 chambre
38.50 m²
Avec jardin
Avrillé (49)
232 500 €Appartement3 pièces , 2 chambres
63.83 m²
Avec terrasse
Cholet (49)
Exclusif109 000 €Appartement5 pièces , 4 chambres
84.00 m²
Trélazé (49)
183 000 €Appartement2 pièces , 1 chambre
42.90 m²
Avec balconterrasse
- Achat appartement
- Pays de la Loire
- Maine-et-Loire (49)
- Avrillé (49240)
- Vente appartement 2 pièces, 41.57m², Avrillé



