Revenir aux résultats
Réf. de l'annonce : 13605535 / LEO
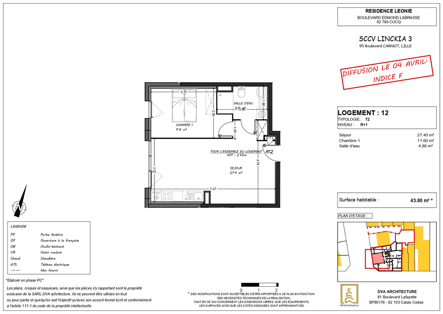
Vente appartement 2 pièces, 43.80m², Cucq
Honoraires à la charge du vendeur
215 000 €
- 43.80m²
- 2 pièces
- 1 chambre
Appartement Stella 2 pièces 43.80 m²
Au coeur de Stella Plage et à proximité immédiate des commerces, Cet appartement situé au 1er étage se compose d'un séjour, d'une salle d'eau-wc et d'une chambre.
Local vélo.
Parking en option
Ref: LEO-12
Les informations sur les risques auxquels ce bien est exposé sont disponibles sur le site Géorisques : www.georisques.gouv.fr
Stéphane COFFRE (EI) Agent commercial - Numéro RSAC : 879787646 - Boulogne sur mer.
Bilan energetique


Caractéristiques Appartement
-
Les essentiels
- 2 pièces
- 43.80 m²
- 1 chambre
-
Autres
- Etage 1
- Immeuble de 2 étages
Vous souhaitez visiter l'Appartement
Prenez rendez-vous avec l'agence.
Agence immobilière
l'Adresse Le Touquet
l'Adresse Le Touquet
53 Rue de Moscou
62520 LE TOUQUET PARIS PLAGE
Transaction :
03 21 05 60 60
Location :
07 86 68 38 10
Nos honoraires
62520 LE TOUQUET PARIS PLAGE
Transaction :
03 21 05 60 60
Location :
07 86 68 38 10
Nos honoraires
Les appartements similaires
Cucq (62)
194 000 €Appartement1 pièce
39.50 m²
Stella (62)
295 000 €Appartement2 pièces , 1 chambre
51.92 m²
Sainte Cécile (62)
240 000 €Appartement2 pièces , 1 chambre
36.15 m²
Le Touquet-Paris-Plage (62)
1 750 000 €Appartement5 pièces , 4 chambres
116.36 m²
Avec terrassegarage/boxLe Touquet-Paris-Plage (62)
1 220 000 €Appartement4 pièces , 3 chambres
85.17 m²
Avec terrassegarage/boxÉtaples (62)
265 000 €Appartement3 pièces , 2 chambres
64.02 m²
Le Touquet-Paris-Plage (62)
1 350 000 €Appartement4 pièces , 3 chambres
94.19 m²
Avec balconterrassegarage/boxSainte Cécile (62)
266 000 €Appartement2 pièces , 1 chambre
40.45 m²
- Achat appartement
- Hauts-de-France
- Pas-de-Calais (62)
- Cucq (62780)
- Vente appartement 2 pièces, 43.80m², Cucq