Vente appartement 2 pièces, 28.86m², Ivry-sur-Seine
- 28.86m²
- 2 pièces
- 1 chambre
- 1 SDB
Appartement Ivry Sur Seine 2 pièce(s) 28.86 m2
Idéal pour investisseur, Vendu Loué ? 2 Pièces à Ivry-sur-Seine
L'EMPLACEMENT : UN SECTEUR EN PLEINE MUTATION
Situé a Ivry-sur-Seine(94200), cet appartement bénéficie d'un emplacement stratégique au coeur d'Ivry-sur-Seine. À la lisière de Paris 13ème, cette commune est l'une des plus prisées de la petite couronne pour son dynamisme économique et ses projets de réaménagement urbain. À proximité immédiate des commerces, des écoles et des axes routiers majeurs, ce bien garantit une demande locative pérenne et une valorisation patrimoniale certaine.
LE BIEN : FONCTIONNALITÉ ET SÉRÉNITÉ
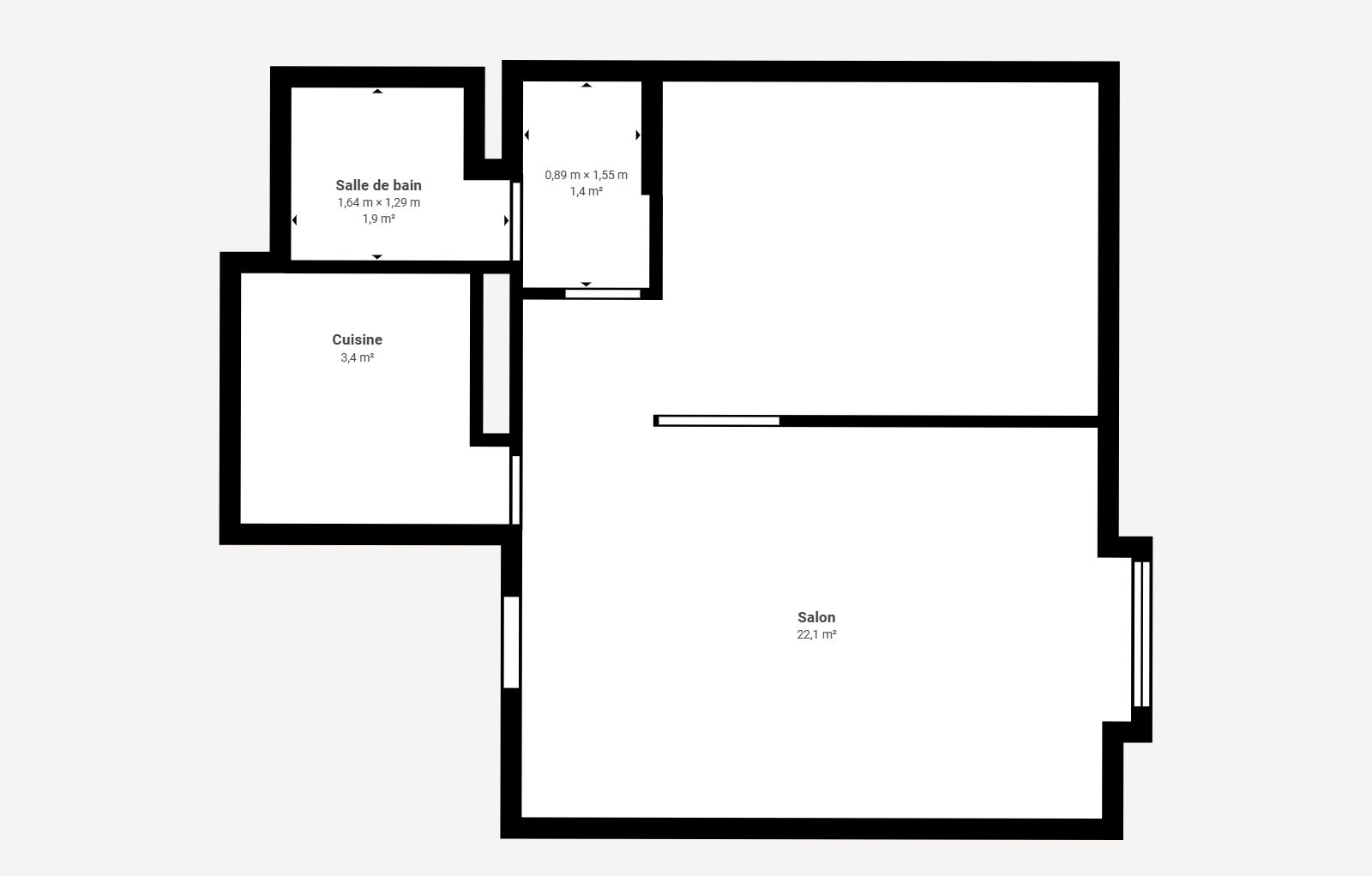
Au sein d'un immeuble sécurisé des années 50 avec digicode, découvrez ce charmant 2 pièces de 28,86 m² situé au 2ème étage. Parfaitement agencé pour optimiser chaque mètre carré, il se compose :
D'un séjour lumineux offrant un espace de vie convivial.
D'une chambre indépendante garantissant calme et intimité.
D'une cuisine séparée, fonctionnelle et bien disposée.
D'une salle d'eau avec WC.
Le bien est équipé de double vitrage intégral et d'un chauffage individuel électrique, assurant un confort thermique optimal à ses occupants. Aucun travail n'est à prévoir à l'intérieur de l'appartement, ni au sein de la copropriété (aucun vote de travaux majeurs en cours), offrant ainsi une gestion simplifiée au futur acquéreur.
PERFORMANCES ÉNERGÉTIQUES RÉUSSIES
Point crucial pour un investisseur : le diagnostic de performance énergétique est classé en D (266) et les émissions de gaz à effet de serre en B (10). Ce classement favorable protège le propriétaire des restrictions de mise en location liées à la loi Climat et Résilience, un atout majeur sur le marché actuel.
RENTABILITÉ ET CHIFFRES CLÉS
Ce bien est vendu loué avec un bail non meublé en cours depuis le 06 juin 2025, assurant des revenus immédiats dès la signature.
Prix de vente : 180 000 €
Loyer mensuel : 920 € (dont 110 € de provision sur charges).
Rentabilité brute : Plus de 6,1 %.
Taxe foncière : 568 € / an.
C'est l'opportunité parfaite pour un premier investissement ou pour consolider un portefeuille immobilier avec un actif sain, déjà loué et sans travaux.
Pourquoi choisir ce bien ?
Placement sécurisé : Bail récent et locataire en place.
DPE D : Pas de contraintes de rénovation énergétique à court terme.
Localisation : Ivry-sur-Seine, une ville moteur du Grand Paris.
Contactez-nous pour obtenir le dossier complet et organiser une visite.
Les informations sur les risques auxquels ce bien est exposé sont disponibles sur le site Géorisques : www.georisques.gouv.fr
26610
10Montant estimé des dépenses annuelles d'énergie pour un usage standard :
Entre 780.00€ et 1070.00€ par an
-
Les essentiels
- 2 pièces
- 28.86 m²
- 1 chambre
- 1 salle d'eau
-
Intérieur
- Cuisine IndependanteEquipee
- Interphone : Non
- Digicode : Oui
- 1 Cave
-
Copropriété
- Bien en copropriété
- 16 lots
- Charges annuelles (ALUR) : 1200.00€
- Pas de procédure en cours
-
Autres
- Fibre : Oui
- Etage 2
- Immeuble de 5 étages
Vous souhaitez visiter l'Appartement
l'Adresse Valérie Immobilier
94220 CHARENTON-LE-PONT
Transaction :
01 41 79 04 75
Location :
01 41 79 31 22
Nos honoraires
- l'Adresse Valérie Immobilier
- 37 000 €
- DURAND Valérie
- Creteil B 449 972 009
- FR19449972009
- CPI 9401 2015 000 002 459
- CCI Paris IDF
- SOCAF
- 120000
- 26 avenue de Suffren 75015 PARIS
- MCCA 77 rue de Lourmel 75015 PARIS www.mcca-mediation.fr
Mentions légales
Les appartements similaires
Nogent-sur-Marne (94)
830 000 €Appartement6 pièces , 4 chambres
134.00 m²
Limeil-Brévannes (94)
Exclusif135 000 €Appartement2 pièces , 1 chambre
42.24 m²
Rungis (94)
330 000 €Appartement5 pièces
83.10 m²
Avec jardin, garage/box
Villejuif (94)
483 542 €Appartement4 pièces , 3 chambres
82.35 m²
Nogent-sur-Marne (94)
Exclusif767 000 €Appartement4 pièces , 3 chambres
88.26 m²
Avec balcon
Maisons-Alfort (94)
267 000 €Appartement3 pièces , 2 chambres
55.07 m²
Avec balcon
Le Perreux-sur-Marne (94)
310 000 €Appartement4 pièces , 3 chambres
67.35 m²
Fontenay-sous-Bois (94)
378 000 €Appartement4 pièces , 3 chambres
88.00 m²
- Achat appartement
- Île-de-France
- Val-de-Marne (94)
- Ivry-sur-Seine (94200)
- Vente appartement 2 pièces, 28.86m², Ivry-sur-Seine







