Vente appartement 1 pièce, 32.00m², La Queue-en-Brie
- 32.00m²
- 1 pièce
Appartement La Queue En Brie 1 pièce(s) 32m2
À La Queue-en-Brie, proche des écoles et commerces,
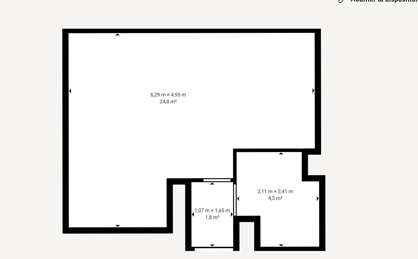
Découvrez ce charmant appartement 1 pièce de 32 m² situé au 1er étage d'une résidence récente et bien entretenue.
Très lumineux du à ces grandes fenêtres il se compose d'une entrée avec placard, d'une cuisine aménagée et équipée ( plaque, machine à lavé, four...) , d'un bel espace de vie confortable et d'une salle de bain avec WC. Une place de parking privative en sous-sol vient compléter ce bien pratique et fonctionnel.
Premier achat ou investissement, loué 830€ par mois.
Garantie revente 7 ans. voir conditions en agence.
Pas de travaux à prévoir
Idéal premier achat ou investissement, à visiter sans tarder
Les informations sur les risques auxquels ce bien est exposé sont disponibles sur le site Géorisques : www.georisques.gouv.fr
2535
5-
Les essentiels
- 1 pièce
- 32.00 m²
-
Copropriété
- Bien en copropriété
-
Autres
- Etage 1
- Immeuble de 2 étages
Vous souhaitez visiter l'Appartement
l'Adresse Roissy-en-Brie
77680 ROISSY EN BRIE
01 64 40 83 16
Nos honoraires
- l'Adresse Roissy-en-Brie
- 1 000 €
- DURAND Julien
- MELUN 503 253 221
- CPI 7702 2021 000 000 007
- CCI SEINE ET MARNE
- ALLIANZ IARD
- 110 000€
Mentions légales
Les appartements similaires
Le Perreux-sur-Marne (94)
Exclusif585 000 €Appartement5 pièces , 3 chambres
99.00 m²
Avec balcon, garage/box
Chevilly-Larue (94)
64 232 €Appartement1 pièce
20.00 m²
Nogent-sur-Marne (94)
Exclusif595 000 €Appartement4 pièces , 3 chambres
96.60 m²
Avec jardin
Alfortville (94)
145 000 €Appartement1 pièce
34.58 m²
Maisons-Alfort (94)
350 000 €Appartement3 pièces , 2 chambres
65.41 m²
Vincennes (94)
399 000 €Appartement3 pièces , 2 chambres
68.26 m²
Avec balcon
Limeil-Brévannes (94)
Exclusif159 500 €Appartement2 pièces , 1 chambre
49.15 m²
Avec terrasse
Maisons-Alfort (94)
Exclusif365 000 €Appartement3 pièces , 2 chambres
60.10 m²
Avec balcongarage/box
- Achat appartement
- Île-de-France
- Val-de-Marne (94)
- La Queue-en-Brie (94510)
- Vente appartement 1 pièce, 32.00m², La Queue-en-Brie










