Revenir aux résultats
Réf. de l'annonce : 14093063 / 8716SDP
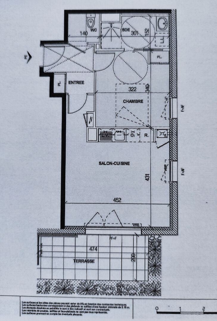
Vente appartement 2 pièces, 42.50m², Les Sables-d'Olonne
Honoraires à la charge de l'acquéreur : 7,09 % TTC | 139 000€ honoraires inclus | 129 800€ hors honoraires
139 000 €
- 42.50m²
- 2 pièces
- 1 chambre
- 1 SDB
Appartement lumineux et moderne 2 pièce(s) 43 m2 Les Sables d'Olonne
Dans un cadre de vie privilégié, découvrez ce bel appartement T2 situé dans une résidence seniors très récente (2019) des Sables d'Olonne. D'une surface de 43 m², ce magnifique appartement se compose d'un séjour avec coin cuisine aménagée et éuipée, d'une chambre confortable, d'une salle d'eau, d'un WC séparé ainsi que d'une magnifique terrasse de 10m² sans vis à vis. Excellente rentabilité avec revenu net annuel de 6 144 euros. L'appartement est vendu loué avec un bail commercial en cours.
(Ref 8716SDP)
Les informations sur les risques auxquels ce bien est exposé sont disponibles sur le site Géorisques : www.georisques.gouv.fr
Bilan energetique
9917
17
Diagnostic réalisé le : 22/09/2025
Montant estimé des dépenses annuelles d'énergie pour un usage standard :
Entre 470.00€ et 600.00€ par an
Montant estimé des dépenses annuelles d'énergie pour un usage standard :
Entre 470.00€ et 600.00€ par an
Caractéristiques Appartement
-
Les essentiels
- 2 pièces
- 42.50 m²
- 1 chambre
- Ascenseur : Oui
- 1 salle d'eau
-
Intérieur
- Cuisine Kitchenet
-
Copropriété
- Bien en copropriété
- 121 lots
- Charges annuelles (ALUR) : 1742.00€
- Pas de procédure en cours
-
Autres
- Etat général : Très bon état
- Rez de chaussée : Oui
- Construit en 2019
- Immeuble de 3 étages
Vous souhaitez visiter l'Appartement
Prenez rendez-vous avec l'agence.
Agence immobilière
l'Adresse Dynamic Immobilier
l'Adresse Dynamic Immobilier
1 Boulevard des Anciens Combattants d'AFN
85100 LES SABLES D'OLONNE
02 51 96 80 90
Nos honoraires
Mentions légales
85100 LES SABLES D'OLONNE
02 51 96 80 90
Nos honoraires
Mentions légales
- l'Adresse Dynamic Immobilier
- 7 500 €
- HAMELIN Vincent
- La Roche-sur-Yon B 448 458 950
- CPI 85012016000008392
- CCI de la Roche sur Yon
Mentions légales
Les appartements similaires
Notre-Dame-de-Monts (85)
235 000 €Appartement3 pièces , 2 chambres
59.90 m²
Saint-Jean-de-Monts (85)
Exclusif129 900 €Appartement2 pièces , 1 chambre
44.47 m²
Saint-Jean-de-Monts (85)
201 200 €Appartement3 pièces , 2 chambres
53.89 m²
Avec balcon
Saint-Gilles-Croix-de-Vie (85)
295 880 €Appartement3 pièces , 2 chambres
71.08 m²
Notre-Dame-de-Monts (85)
278 500 €Appartement3 pièces , 2 chambres
69.90 m²
Saint-Hilaire-de-Riez (85)
159 600 €Appartement2 pièces , 1 chambre
45.74 m²
Avec balcon
Les Sables-d'Olonne (85)
350 000 €Appartement3 pièces , 2 chambres
64.60 m²
Avec balcon
La Roche-sur-Yon (85)
Exclusif183 000 €Appartement3 pièces , 2 chambres
73.27 m²
Avec jardin
- Achat appartement
- Pays de la Loire
- Vendée (85)
- Les Sables-d'Olonne (85340)
- Vente appartement 2 pièces, 42.50m², Les Sables-d'Olonne






