Revenir aux résultats
Réf. de l'annonce : 14123652 / 12928
Exclusif
Vente appartement 3 pièces, 64.29m², Massy
Honoraires à la charge du vendeur
264 900 €
- 64.29m²
- 3 pièces
- 2 chambres
- 1 SDB
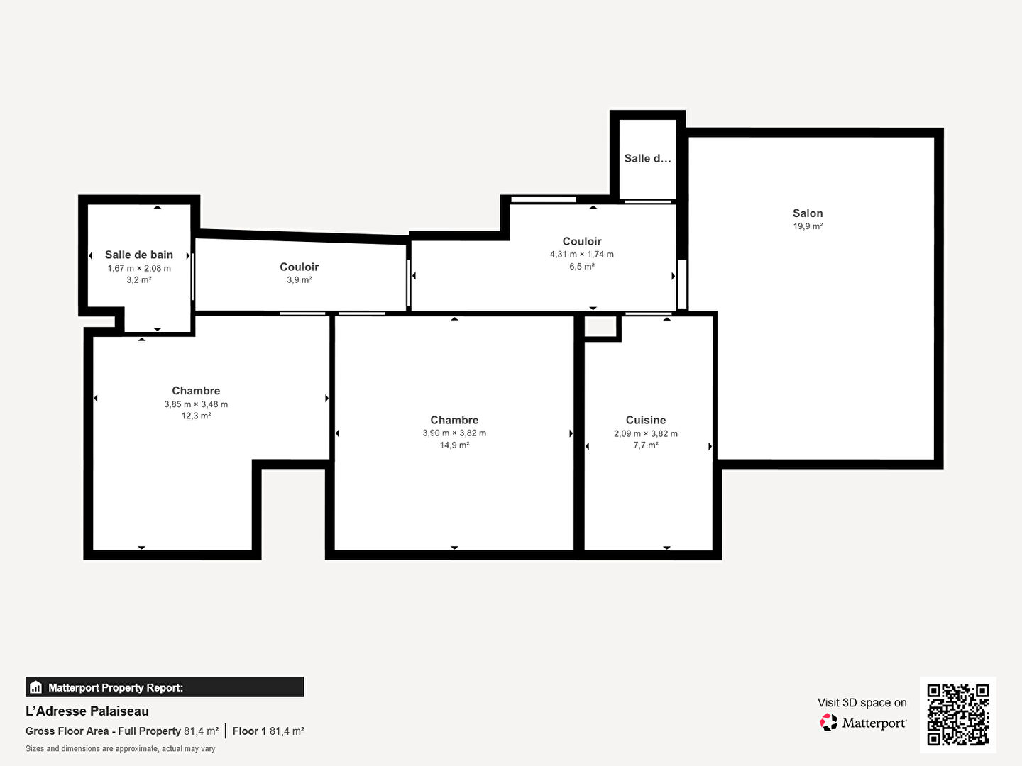
Appartement MASSY 3 pièces 64.29 m²
Votre agence l'Adresse PALAISEAUA vous propose en exclusivité ce bel appartement 3 pièces d'environ 64 m², idéalement situé à deux pas des transports et des commodités.
Situé dans une résidence calme et bien entretenue, ce bien se compose d'une entrée avec placard, une cuisine indépendante, un séjour lumineux ouvrant sur un balcon, une salle de bains, toilettes séparées, deux chambres dont une avec placard intégré.
Une place de stationnement en sous-sol et une cave complète ce bien.
Les informations sur les risques auxquels ce bien est exposé sont disponibles sur le site Géorisques : www.georisques.gouv.fr
Bilan energetique
1429
9
Diagnostic réalisé le : 09/09/2025
Montant estimé des dépenses annuelles d'énergie pour un usage standard :
Entre 780.00€ et 1056.00€ par an
Montant estimé des dépenses annuelles d'énergie pour un usage standard :
Entre 780.00€ et 1056.00€ par an
Caractéristiques Appartement
-
Les essentiels
- 3 pièces
- 64.29 m²
- 2 chambres
- Ascenseur : Oui
- 1 salle de bain
-
Intérieur
- Interphone : Oui
- 1 Cave
-
Extérieur
- 1 Balcon
- 1 Parking
-
Copropriété
- Bien en copropriété
- 120 lots
- Charges annuelles (ALUR) : 3164.00€
- Pas de procédure en cours
-
Autres
- Etat général : Bon Etat
- Fibre : Oui
- Dernier étage : Oui
- Etage 4
- Construit en 1986
- Immeuble de 4 étages
Vous souhaitez visiter l'Appartement
Prenez rendez-vous avec l'agence.
Agence immobilière
l'Adresse PALAISEAU - Agence du Grand Paris
l'Adresse PALAISEAU - Agence du Grand Paris
280 Rue de Paris
91120 PALAISEAU
Transaction :
01 69 75 20 20
Location :
01 69 75 20 20
Nos honoraires
Mentions légales
91120 PALAISEAU
Transaction :
01 69 75 20 20
Location :
01 69 75 20 20
Nos honoraires
Mentions légales
- l'Adresse PALAISEAU - Agence du Grand Paris
- 37 000 euros
- CLAVEL Denis
- d'EVRY n°421 986 795
- d'EVRY-COURCOURONNES
- FR11 421 986 795
- CPI 9101 2016 000 010 880
- CCI de L'ESSONNE
- GALIAN
- 200 000 euros
- 89 Rue La Boétie 75008 PARIS
- Médiateur du Commerce Coopératif et Associé - FCA 77 Rue de Lourmel 75015 PARIS www.mcca-mediation.fr
Mentions légales
Les appartements similaires
Massy (91)
Exclusif170 660 €Appartement2 pièces , 1 chambre
40.88 m²
Avec terrasse
Dourdan (91)
Exclusif229 000 €Appartement2 pièces , 1 chambre
42.76 m²
Avec jardin
Dourdan (91)
229 000 €Appartement5 pièces , 3 chambres
101.52 m²
Avec terrassegarage/box
Étampes (91)
98 810 €Appartement2 pièces , 1 chambre
45.75 m²
Gif-sur-Yvette (91)
Exclusif299 000 €Appartement4 pièces , 3 chambres
85.00 m²
Avec balcon
Saint-Pierre-du-Perray (91)
Exclusif192 000 €Appartement2 pièces , 1 chambre
40.60 m²
Brunoy (91)
Exclusif252 000 €Appartement4 pièces , 2 chambres
83.00 m²
Massy (91)
269 900 €Appartement4 pièces , 3 chambres
78.00 m²
Avec garage/box
- Achat appartement
- Île-de-France
- Essonne (91)
- Massy (91300)
- Vente appartement 3 pièces, 64.29m², Massy








