Réf. de l'annonce : 14166450 / 82094
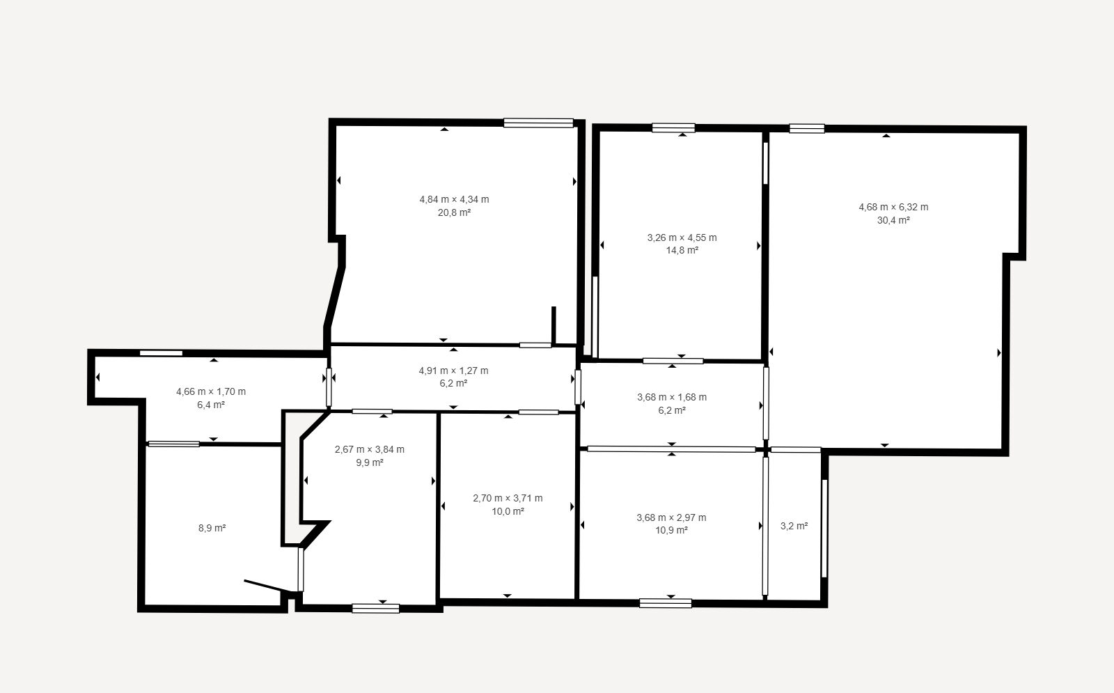
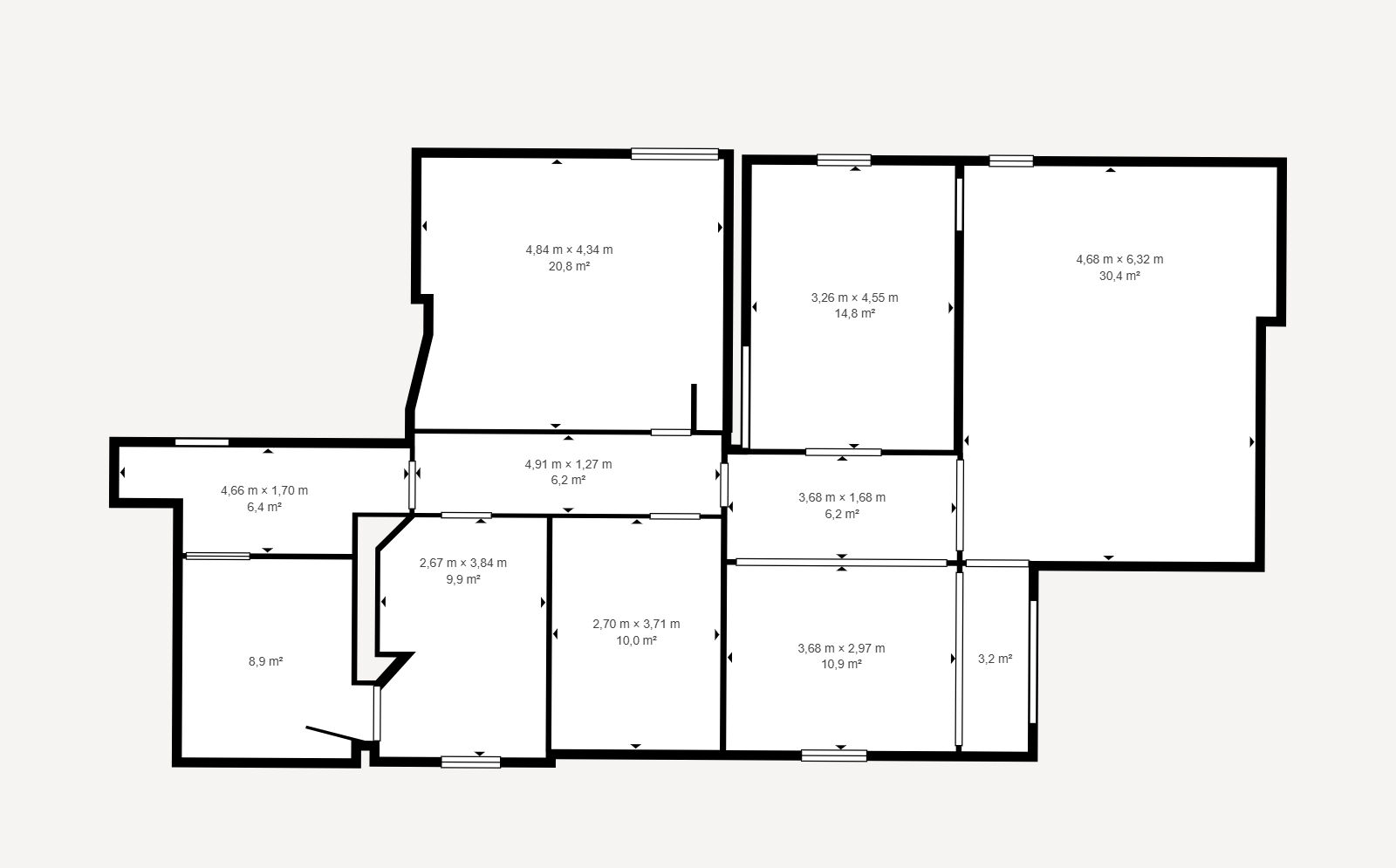
Vente appartement 5 pièces, 130.00m², Narbonne
- 130.00m²
- 5 pièces
- 2 chambres
- 1 SDB
Appartement T5 avec balcon + GARAGE - Rue Voltaire - Immeuble Ancien
Au coeur battant de la ville, à deux pas du Canal et de l'Hôtel de Ville, cet appartement prend place dans un bel immeuble bourgeois ancien, chargé d'histoire et de caractère.
Situé au 2ème étage sans ascenseur, ce vaste appartement de 130 m² offre de magnifiques volumes et un potentiel rare pour qui saura se projeter. Ici, tout est à réinventer : les travaux de rénovation importants (gros oeuvre) en font une opportunité idéale pour un projet ambitieux, notamment une opération de marchand de biens ou la création d'un bien d'exception en centre-ville.
Atout majeur et peu commun en hypercentre : un garage non attenant de 55 m², situé à seulement 20 mètres de l'appartement, parfaitement accessible. Un véritable luxe urbain, offrant de nombreuses possibilités (stationnement, stockage, atelier?).
La copropriété est gérée par un syndic bénévole sérieux, avec des comptes sains et à jour, garantissant une gestion claire et maîtrisée.
Ce bien s'adresse à ceux qui n'ont pas froid aux yeux, qui aiment les défis et surtout redonner une âme à l'ancien. Un emplacement central recherché, de généreux volumes et un potentiel multiple font de cet appartement une page blanche à fort caractère, prête à écrire une toute nouvelle histoire.
Venez découvrir ce réel projet de vie avec votre Agence L'Adresse ! Vos artisans seront les bienvenus, aussi !
Les informations sur les risques auxquels ce bien est exposé sont disponibles sur le site Géorisques : www.georisques.gouv.fr
1966
6Montant estimé des dépenses annuelles d'énergie pour un usage standard :
Entre 1727.00€ et 2337.00€ par an
-
Les essentiels
- 5 pièces
- 130.00 m²
- 2 chambres
- Ascenseur : Oui
- 1 salle d'eau
-
Intérieur
- Cuisine Independante
- Gardien : Non
- Interphone : Oui
- 1 Cave
-
Extérieur
- 1 Garage/box
-
Copropriété
- Bien en copropriété
- 15 lots
- Charges annuelles (ALUR) : 1235.68€
- Pas de procédure en cours
-
Autres
- Etat général : A Rafraichir
- Etage 2
- Construit en 1830
- Immeuble de 2 étages
Vous souhaitez visiter l'Appartement
l'Adresse Narbonne
11100 NARBONNE
04 68 75 09 90
Nos honoraires
- l'Adresse Narbonne
- 1 500 €
- ACQUIER Philippe
- Narbonne B 838 604 759
- CPI 11022018000027849
- CCI de NARBONNE
Mentions légales
Nous tenons à vous informer que l'annonce immobilière que vous avez consultée n'est malheureusement plus disponible pour les visites.
Nous comprenons que cela puisse être décevant, mais nous vous encourageons à continuer à explorer nos autres annonces disponibles. Notre équipe est à votre disposition pour vous aider à trouver la propriété qui correspond à vos besoins et à votre budget.
N'hésitez pas à nous contacter pour toute question ou pour planifier des visites pour d'autres biens. Nous sommes déterminés à vous accompagner dans votre recherche et à vous aider à trouver votre nouveau chez-vous.
Merci pour votre compréhension et votre intérêt.
Les appartements similaires
Limoux (11)
Exclusif274 900 €Appartement6 pièces , 4 chambres
150.97 m²
Avec terrasse
Narbonne (11)
218 900 €Appartement3 pièces , 2 chambres
61.89 m²
Avec terrasse
Castelnaudary (11)
109 000 €Appartement4 pièces , 2 chambres
67.32 m²
Narbonne (11)
249 900 €Appartement3 pièces , 2 chambres
61.98 m²
Avec terrasse
Narbonne (11)
149 900 €Appartement2 pièces , 1 chambre
37.10 m²
Avec terrasse
Carcassonne (11)
139 900 €Appartement4 pièces , 3 chambres
138.00 m²
Narbonne (11)
446 900 €Appartement4 pièces , 3 chambres
107.18 m²
Avec terrasse
Narbonne (11)
Exclusif179 990 €Appartement4 pièces , 3 chambres
116.35 m²
Avec terrasse
- Achat appartement
- Occitanie
- Aude (11)
- Narbonne (11100)
- Vente appartement 5 pièces, 130.00m², Narbonne













