Revenir aux résultats
Réf. de l'annonce : 14239900 / 12961
Exclusif
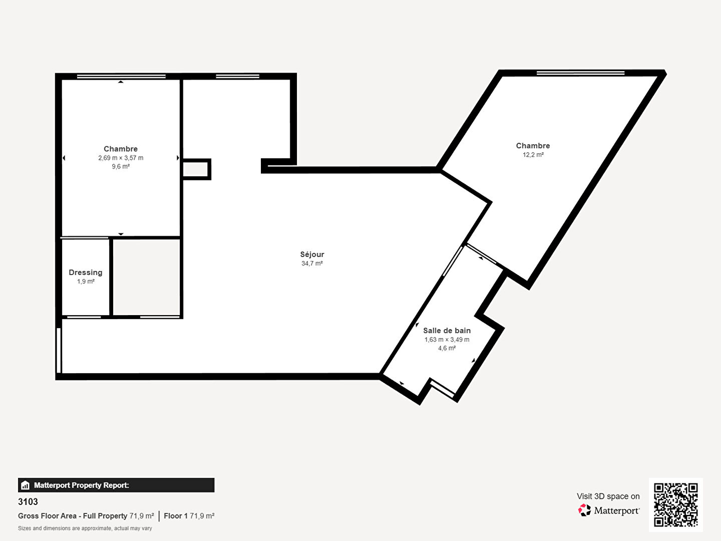
Vente appartement 3 pièces, 66.10m², Palaiseau
Honoraires à la charge du vendeur | Taxe foncière : 1 315,00€
329 000 €
- 66.10m²
- 3 pièces
- 2 chambres
- 1 SDB
Appartement PALAISEAU 3 pièces 66.10 m²
l'Adresse Palaiseau vous propose en EXCLUSIVITÉ à la vente au sein du quartier recherché Camille Claudel à PALAISEAU, un appartement situé au 2ème étage comprenant une entrée, une cuisine ouverte sur le séjour donnant accès à un balcon, deux chambres avec placards, une salle de bains ainsi qu'un wc séparé.
Une place de parking en sous-sol complète ce bien.
Les informations sur les risques auxquels ce bien est exposé sont disponibles sur le site Géorisques : www.georisques.gouv.fr
Bilan energetique
10821
21
Diagnostic réalisé le : 04/12/2025
Montant estimé des dépenses annuelles d'énergie pour un usage standard :
Entre 580.00€ et 820.00€ par an
Montant estimé des dépenses annuelles d'énergie pour un usage standard :
Entre 580.00€ et 820.00€ par an
Caractéristiques Appartement
-
Les essentiels
- 3 pièces
- 66.10 m²
- 2 chambres
- 1 salle de bain
-
Intérieur
- Cuisine AmenageeEquipee
- Interphone : Oui
-
Extérieur
- 1 Balcon
- 1 Parking
-
Copropriété
- Bien en copropriété
- 230 lots
- Charges annuelles (ALUR) : 2572.64€
- Pas de procédure en cours
-
Autres
- Etat général : Excellent
- Fibre : Oui
- Etage 2
- Immeuble de 4 étages
Vous souhaitez visiter l'Appartement
Prenez rendez-vous avec l'agence.
Agence immobilière
l'Adresse PALAISEAU - Agence du Grand Paris
l'Adresse PALAISEAU - Agence du Grand Paris
280 Rue de Paris
91120 PALAISEAU
Transaction :
01 69 75 20 20
Location :
01 69 75 20 20
Nos honoraires
Mentions légales
91120 PALAISEAU
Transaction :
01 69 75 20 20
Location :
01 69 75 20 20
Nos honoraires
Mentions légales
- l'Adresse PALAISEAU - Agence du Grand Paris
- 37 000 euros
- CLAVEL Denis
- d'EVRY n°421 986 795
- d'EVRY-COURCOURONNES
- FR11 421 986 795
- CPI 9101 2016 000 010 880
- CCI de L'ESSONNE
- GALIAN
- 200 000 euros
- 89 Rue La Boétie 75008 PARIS
- Médiateur du Commerce Coopératif et Associé - FCA 77 Rue de Lourmel 75015 PARIS www.mcca-mediation.fr
Mentions légales
Les appartements similaires
Étampes (91)
Exclusif159 975 €Appartement3 pièces , 2 chambres
50.00 m²
Avec jardin, terrasse
Mennecy (91)
Exclusif110 000 €Appartement1 pièce
33.50 m²
Massy (91)
Exclusif551 000 €Appartement5 pièces , 4 chambres
106.00 m²
Avec terrasse
Gif-sur-Yvette (91)
369 200 €Appartement4 pièces , 3 chambres
82.71 m²
Avec balcon
Yerres (91)
Exclusif279 000 €Appartement3 pièces , 2 chambres
64.00 m²
Bures-sur-Yvette (91)
Exclusif299 520 €Appartement4 pièces , 3 chambres
75.46 m²
Avec balcongarage/box
Étampes (91)
Exclusif139 275 €Appartement3 pièces , 2 chambres
58.54 m²
Montgeron (91)
Exclusif138 000 €Appartement1 pièce , 1 chambre
28.95 m²
- Achat appartement
- Île-de-France
- Essonne (91)
- Palaiseau (91120)
- Vente appartement 3 pièces, 66.10m², Palaiseau







