Vente appartement 3 pièces, 70.06m², Paris 12
- 70.06m²
- 3 pièces
- 2 chambres
- 1 SDB
Appartement Paris 3 pièce(s) 70m² + Balcon de 12m²
À proximité immédiate des commerces, écoles et transports, l'agence l'Adresse Wattignies Paris 12 a la plaisir de vous proposer, en exclusivité, ce superbe appartement situé au 2ème étage avec ascenseur, d'une copropriété de standing parfaitement entretenue et gardiennée.
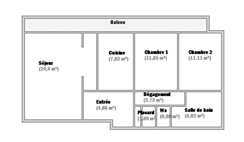
De type 3 pièces d'une surface totale pondérée de 74m² (70,06 m² Carrez et 12m² de balcon), lumineux et parfaitement agencé, il se compose d'une entrée avec placard, d'un séjour spacieux et ensoleillé ouvrant sur un balcon filant, d'une cuisine indépendante équipée (cuisine US possible), de deux chambres avec rangements donnant également accès au balcon, d'un dressing, d'une salle de bains et de WC séparés.
En sous-sol, une grande cave saine vient parfaire l'ensemble.
Un local vélo est également disponible dans l'immeuble.
Un bien rare, à découvrir sans tarder !
Contactez Elody au 06 79 66 51 76
Les informations sur les risques auxquels ce bien est exposé sont disponibles sur le site Géorisques : www.georisques.gouv.fr
2166
6Montant estimé des dépenses annuelles d'énergie pour un usage standard :
Entre 1220.00€ et 1690.00€ par an
-
Les essentiels
- 3 pièces
- 70.06 m²
- 2 chambres
- Ascenseur : Oui
- 1 salle de bain
-
Intérieur
- Cuisine IndependanteAmenageeEquipee
- Gardien : Oui
- Interphone : Oui
- Digicode : Oui
- 1 Cave
-
Extérieur
- 1 Balcon
-
Copropriété
- Bien en copropriété
- 483 lots
- Charges annuelles (ALUR) : 3160.00€
- Pas de procédure en cours
-
Autres
- Fibre : Oui
- Etage 2
- Construit en 1979
- Immeuble de 10 étages
Vous souhaitez visiter l'Appartement
l'Adresse Wattignies Paris 12
75012 PARIS
Transaction :
01 43 41 46 63
Location :
01 43 41 47 53
Nos honoraires
- l'Adresse Wattignies Paris 12
- 7 630 €
- ERAY Stéphane
- PARIS
- CPI75012016000006754
- CCI de PARIS
- GALIAN
- 120 000 €
- GALIAN 89, rue la Boétie 75008 PARIS
- Agence Nationale de Médiation 2, rue de Colmar 94300 VINCENNES Tél. : 01 46 81 20 95
Mentions légales
Les appartements similaires
Paris 17 (75)
315 000 €Appartement1 pièce
34.31 m²
Avec balcon
Paris 15 (75)
1 195 000 €Appartement4 pièces , 3 chambres
88.70 m²
Paris 11 (75)
Exclusif523 000 €Appartement3 pièces , 1 chambre
49.00 m²
Paris 10 (75)
475 000 €Appartement2 pièces , 1 chambre
45.40 m²
Paris 13 (75)
273 000 €Appartement2 pièces , 1 chambre
41.00 m²
Avec garage/box
Paris 15 (75)
Exclusif745 500 €Appartement3 pièces , 2 chambres
82.17 m²
Avec balcon
Paris 11 (75)
496 500 €Appartement2 pièces , 1 chambre
43.50 m²
Paris 13 (75)
950 000 €Appartement4 pièces , 3 chambres
98.00 m²
Avec terrassegarage/box
- Achat appartement
- Île-de-France
- Paris (75)
- Paris 12 (75012)
- Vente appartement 3 pièces, 70.06m², Paris 12
















