Vente appartement 2 pièces, 55.00m², Paris 12
- 55.00m²
- 2 pièces
- 1 chambre
- 1 SDB
Charmant 2 pièces de 55m² avec balcon - Calme absolu PARIS 12
Niché au calme absolu, au fond d'une impasse verdoyante, cet appartement traversant de 1er et dernier étage offre un cadre de vie privilégié, à deux pas des commerces et des transports.
Accessible par une entrée indépendante, il séduit par sa luminosité et ses vues dégagées sur les deux jardins de la résidence.
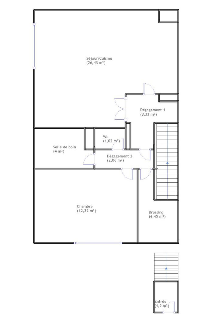
Il se compose comme suit :
. un sas d'entrée et un dégagement avec rangements,
. une cuisine ouverte, aménagée et équipée, attenante à un vaste séjour lumineux,
. une chambre confortable de 12m² donnant sur un balcon filant,
. une salle de bains,
. des WC séparés.
Une cave en sous-sol complète ce bien.
Possibilté d'acquérir un parking en sous sol pour 22 000 €.
Grâce à sa configuration et à son entrée indépendante, cet appartement peut également convenir à l'exercice d'une profession libérale.
Un bien rare dans le quartier, alliant confort, verdure et praticité.
À découvrir sans tarder !
Les informations sur les risques auxquels ce bien est exposé sont disponibles sur le site Géorisques : www.georisques.gouv.fr
32910
10Montant estimé des dépenses annuelles d'énergie pour un usage standard :
Entre 1400.00€ et 1950.00€ par an
-
Les essentiels
- 2 pièces
- 55.00 m²
- 1 chambre
- 1 salle de bain
-
Intérieur
- Cuisine Américaine Amenagée Equipée
- Interphone : Non
- 1 Cave
-
Extérieur
- 1 Balcon
- Jardin 0.00 m²
- 1 Parking
-
Copropriété
- Bien en copropriété
- 312 lots
- Charges annuelles (ALUR) : 2550.00€
- Pas de procédure en cours
-
Autres
- Fibre : Oui
- Dernier étage : Oui
- Etage 1
- Construit en 1980
- Immeuble de 1 étage
Vous souhaitez visiter l'Appartement
l'Adresse Wattignies Paris 12
75012 PARIS
Transaction :
01 43 41 46 63
Location :
01 43 41 47 53
Nos honoraires
- l'Adresse Wattignies Paris 12
- 7 630 €
- ERAY Stéphane
- PARIS
- CPI75012016000006754
- CCI de PARIS
- GALIAN
- 120 000 €
- GALIAN 89, rue la Boétie 75008 PARIS
- Agence Nationale de Médiation 2, rue de Colmar 94300 VINCENNES Tél. : 01 46 81 20 95
Mentions légales
Les appartements similaires
Paris 15 (75)
Exclusif249 000 €Appartement1 pièce
21.00 m²
Paris 11 (75)
Exclusif200 000 €Appartement2 pièces , 1 chambre
19.00 m²
Paris 13 (75)
268 000 €Appartement1 pièce
25.81 m²
Paris 07 (75)
Exclusif2 600 000 €Appartement5 pièces , 3 chambres
104.00 m²
Avec balcon
Paris 13 (75)
Exclusif998 000 €Appartement4 pièces , 3 chambres
98.00 m²
Avec terrassegarage/box
Paris 10 (75)
428 000 €Appartement2 pièces , 1 chambre
39.03 m²
Paris 13 (75)
Exclusif466 000 €Appartement3 pièces , 2 chambres
61.00 m²
Paris 13 (75)
347 000 €Appartement3 pièces , 2 chambres
60.05 m²
Avec balcon
- Achat appartement
- Île-de-France
- Paris (75)
- Paris 12 (75012)
- Vente appartement 2 pièces, 55.00m², Paris 12









