Réf. de l'annonce : 14280910 / 0272
Vente appartement 2 pièces, 62.54m², Paris 12
- 62.54m²
- 2 pièces
- 1 chambre
Grand 2 P / 1 chambre - 62.5m² - Au pied du métro PICPUS // Balcon
**~~ Visite Virtuelle DISPONIBLE ~~**
-------------------------------
PROFESSIONS LIBERALES AUTORISEES
-------------------------------
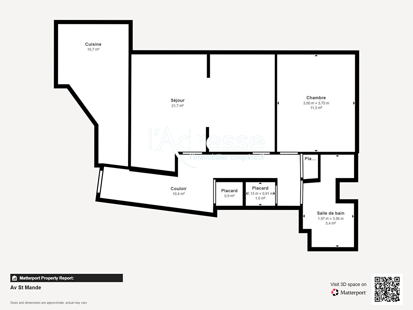
L'Adresse Paris 12 vous propose cet appartement actuellement configuré en 2P/1 chambre, de 62.5m² , situé dans le 12ème arrondissement, à proximité immédiate de notre agence, et à 2 pas de la rue du rendez-vous.
Il se trouve dans une très belle copropriété semi-récente recherchée, très bien entretenue et avec gardien.
Vous pourrez également profiter d'un grand local à vélo sécurisé au rez-de-chaussée, spécialement prévu à cet effet.
Situé au 2ème étage avec ascenseur, cet appartement donne sur la terrasse végétalisée de la copropriété.
En très bon état général, mais nécessitant une rénovation complète, il est composé de :
- 1 entrée
- 1 chambre
- 1 grande cuisine d'environ 12m², ouvrable sur le séjour
- 1 double séjour d'environ 22m², qu'il est possible de refermer pour créer une 2ème vraie chambre
- 1 salle de bains + WC
- plusieurs placards
Toutes les fenêtres sont en double vitrage à isolation renforcée, et ont été changées récemment.
Celle de la cuisine est en + équipée d'un volet roulant électrique.
Cerise sur le gâteau : un petit balcon pour déguster votre café du matin.
Travaux de rénovation à prévoir pour réagencer les pièces et redécorer les espaces selon vos goûts.
Provisions pour charges courantes : environ 3.460€/an , incluant eauc
Taxe foncière 2025 : 1.293€
Honoraires à la charge du vendeur
Pas de procédure en cours.
A VISITER RAPIDEMENT !
Pour plus d'informations, contactez votre conseillère l'Adresse : Jessica ATLANI Agent commercial (EI) immatriculée au RSAC de CRETEIL sous le numéro 898 815 089, au 07.85.74.17.95
Les informations sur les risques auxquels ce bien est exposé sont disponibles sur le site Géorisques : www.georisques.gouv.fr
33471
71Montant estimé des dépenses annuelles d'énergie pour un usage standard :
Entre 1740.00€ et 2370.00€ par an
-
Les essentiels
- 2 pièces
- 62.54 m²
- 1 chambre
- Ascenseur : Oui
- Accès PMR : Oui
-
Intérieur
- Gardien : Oui
- Interphone : Oui
- Digicode : Oui
-
Extérieur
- 1 Balcon
-
Copropriété
- Bien en copropriété
- 153 lots
- Charges annuelles (ALUR) : 3462.00€
- Pas de procédure en cours
-
Autres
- Fibre : Oui
- Etage 2
- Construit en 1966
- Immeuble de 12 étages
Vous souhaitez visiter l'Appartement
l'Adresse Paris 12
75012 PARIS
01 45 84 42 87
Nos honoraires
- l'Adresse Paris 12
- 5 000 €
- NIZARD Jonathan
- RCS Paris 887 948 446
- CPI 7501 2020 000 045 522
- CCI de Paris IDF
- GALIAN
- 120000
Mentions légales
Nous tenons à vous informer que l'annonce immobilière que vous avez consultée n'est malheureusement plus disponible pour les visites.
Nous comprenons que cela puisse être décevant, mais nous vous encourageons à continuer à explorer nos autres annonces disponibles. Notre équipe est à votre disposition pour vous aider à trouver la propriété qui correspond à vos besoins et à votre budget.
N'hésitez pas à nous contacter pour toute question ou pour planifier des visites pour d'autres biens. Nous sommes déterminés à vous accompagner dans votre recherche et à vous aider à trouver votre nouveau chez-vous.
Merci pour votre compréhension et votre intérêt.
Les appartements similaires
Paris 12 (75)
Exclusif204 000 €Appartement1 pièce
23.67 m²
Paris 19 (75)
304 500 €Appartement2 pièces , 1 chambre
32.61 m²
Paris 19 (75)
Exclusif360 000 €Appartement2 pièces , 1 chambre
44.56 m²
Avec jardin
Paris 20 (75)
Exclusif300 000 €Appartement2 pièces , 1 chambre
25.53 m²
Paris 12 (75)
596 500 €Appartement2 pièces , 1 chambre
62.54 m²
Avec balcon
Paris 13 (75)
Exclusif446 000 €Appartement3 pièces , 2 chambres
55.00 m²
Avec terrasse
Paris 12 (75)
378 000 €Appartement2 pièces , 1 chambre
49.00 m²
Paris 09 (75)
55 000 €Appartement1 pièce
6.00 m²
- Achat appartement
- Île-de-France
- Paris (75)
- Paris 12 (75012)
- Vente appartement 2 pièces, 62.54m², Paris 12













