Vente appartement 2 pièces, 19.02m², Paris 20
- 19.02m²
- 2 pièces
- 1 chambre
- 1 SDB
Appartement lumineux au coeur de Ménilmontant
Charme et luminosité ? Deux-pièces au dernier étage à Ménilmontant
Idéalement situé à deux pas du métro Ménilmontant, au coeur d'un quartier parisien vivant et recherché, ce deux-pièces prend place au 5ème et dernier étage d'un immeuble ancien bien entretenu (sans ascenseur).
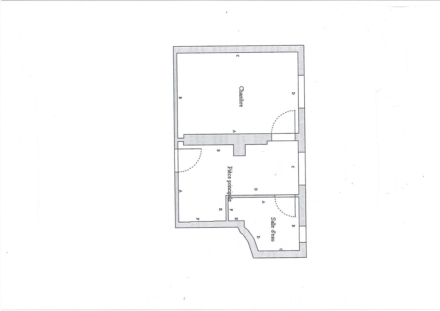
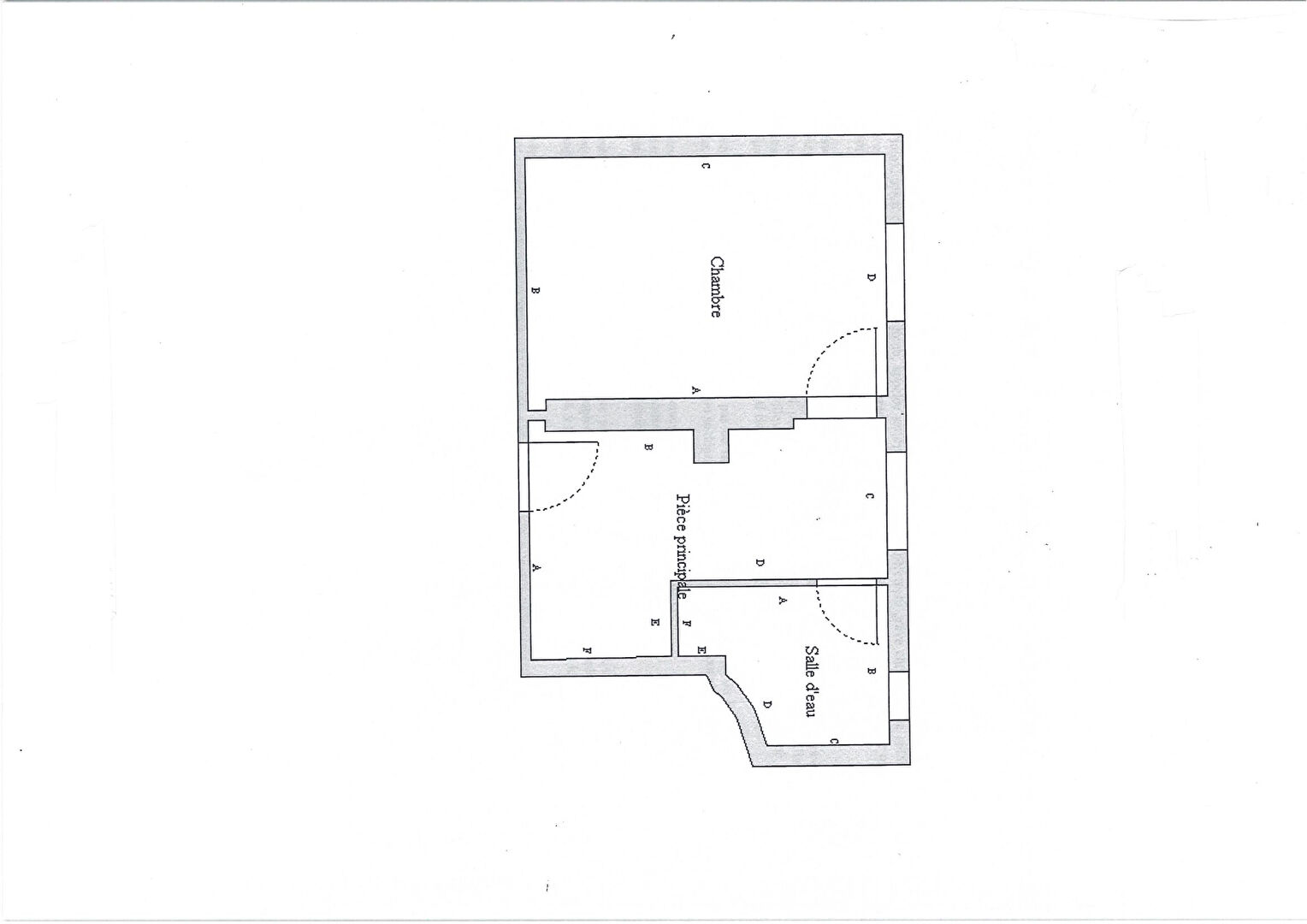
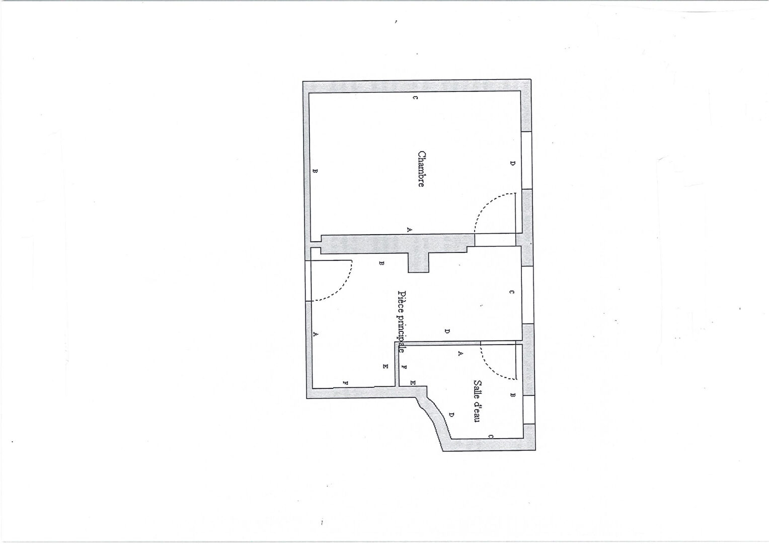
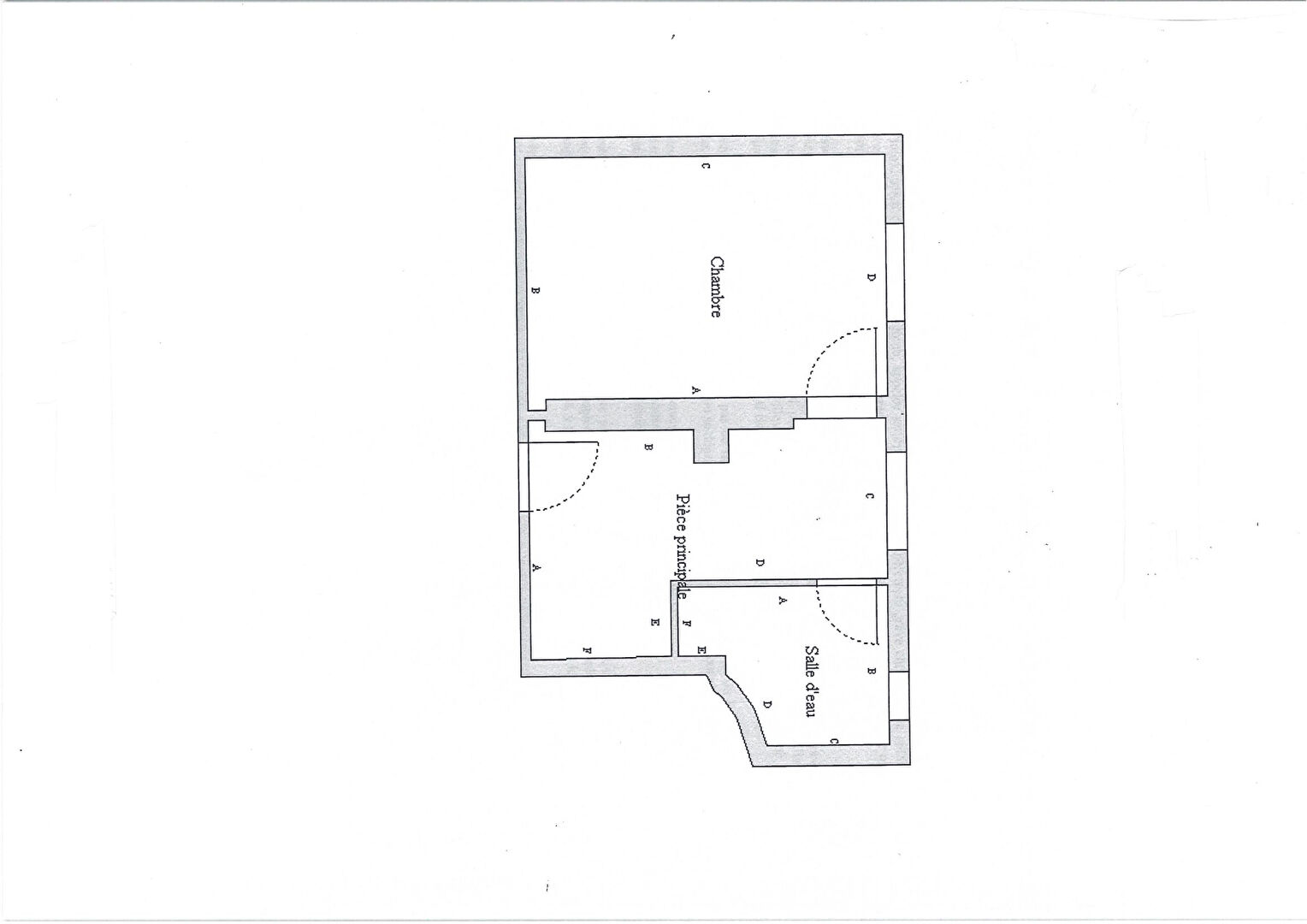
D'une surface de 19,02 m² loi Carrez, l'appartement bénéficie d'un agencement optimisé et se compose d'un séjour lumineux avec cuisine ouverte, d'une chambre exposée plein sud, ainsi que d'une salle d'eau avec WC.
La belle luminosité, l'exposition favorable et la distribution fonctionnelle confèrent à ce bien un réel potentiel de valorisation. Des travaux de rafraîchissement sont à prévoir, offrant l'opportunité de repenser les espaces et de révéler tout le charme de l'appartement.
Dans une perspective d'amélioration de la performance énergétique, il est notamment recommandé d'envisager le remplacement des fenêtres par du double vitrage à isolation renforcée ainsi que l'installation d'une VMC hygroréglable de type A. Situé dans une rue prisée, à proximité immédiate des commerces, transports et commodités, ce bien constitue une opportunité rare sur le secteur. Il conviendra parfaitement à un primo-accédant, en pied-à-terre parisien ou dans le cadre d'un investissement locatif.
DPE : Classe G ? 626 kWh/m²/an
Un appartement de caractère, niché dans un environnement dynamique, qui séduira les amateurs d'authenticité et de vie de quartier parisienne.
Les informations sur les risques auxquels ce bien est exposé sont disponibles sur le site Géorisques : www.georisques.gouv.fr
75824
24-
Les essentiels
- 2 pièces
- 19.02 m²
- 1 chambre
- 1 salle d'eau
-
Intérieur
- Gardien : Non
- Interphone : Non
- Digicode : Oui
-
Copropriété
- Bien en copropriété
- 58 lots
- Charges annuelles (ALUR) : 786.00€
- Pas de procédure en cours
-
Autres
- Etat général : Bon Etat
- Fibre : Oui
- Dernier étage : Oui
- Etage 5
- Construit en 1900
- Immeuble de 5 étages
Vous souhaitez visiter l'Appartement
l'Adresse Paris 11 Voltaire
75011 Paris
Transaction :
01 40 09 52 90
Location :
01 55 28 94 10
Nos honoraires
- l'Adresse Paris 11 Voltaire
- 18 000 euros
- David BERRIH
- RCS Paris : B 418 388 047
- CCI PARIS
- CPI 7501 2016 000 014 308
- 27 Av. de Friedland, 75008 Paris
- SOCAF
- Nom du médiateur : AME CONSO Adresse postale du médiateur : 11 Place Dauphine 75001 PARIS Site internet du médiateur : www.mediationconso-ame.com
Mentions légales
Les appartements similaires
Paris 08 (75)
429 000 €Appartement2 pièces , 1 chambre
32.20 m²
Avec garage/box
Paris 16 (75)
Exclusif105 000 €Appartement1 pièce
8.28 m²
Paris 10 (75)
434 000 €Appartement2 pièces , 1 chambre
33.67 m²
Paris 12 (75)
596 500 €Appartement2 pièces , 1 chambre
62.54 m²
Avec balcon
Paris 12 (75)
419 000 €Appartement3 pièces , 2 chambres
40.04 m²
Paris 13 (75)
800 000 €Appartement4 pièces , 2 chambres
81.24 m²
Avec balcon
Paris 12 (75)
Exclusif885 000 €Appartement4 pièces , 3 chambres
82.76 m²
Avec balcon
Paris 11 (75)
Exclusif295 000 €Appartement2 pièces , 1 chambre
47.09 m²
- Achat appartement
- Île-de-France
- Paris (75)
- Paris 20 (75020)
- Vente appartement 2 pièces, 19.02m², Paris 20











